ARCHITECTS
Phi+Architects
LEAD ARCHITECT
Rinë Zogiani, Bernard Nushi
PLASTERBOARD
Keani Construction / Knauf
FURNITURE
Natuzzi
MICROCEMENT
Keani Construction
MANUFACTURERS
Dage, Knauf, NATUZZI, Petridis, Samsung Electric
LIGHTS
Petridis
PHOTOGRAPHS
Dea Zogiani
AREA
310 m²
YEAR
2025
LOCATION
Pristina, Kosovo
CATEGORY
Showroom
English description provided by the architects.
Erosion is a fashion showroom designed by PHI+ Architects, located in a central commercial area of Pristina, Kosovo.
The project reflects a deliberate architectural gesture, a stripping away of superficial design to reveal the raw, structural core of the space.
The key concept draws inspiration from the natural process of erosion, a slow, transformative force that exposes the essence beneath the surface.
This idea materializes through fractured walls and glass surfaces, where controlled cracks become intentional architectural statements.
These ruptures symbolize the intersection between architecture and fashion, a dialogue of permanence versus ephemerality, structure versus expression.
CHALLENGES & DEVELOPMENT
From the outset, the challenge was to reimagine the typical retail space as an immersive, conceptual environment.
Given the existing structure's rigid geometry, introducing organic fractures and material honesty required both technical precision and architectural discipline.
The integration of structural glass panels with CNC-precise fractures was particularly complex, demanding careful coordination between design and fabrication teams.
MATERIALITY & CONSTRUCTION
The project employs a restrained palette of exposed concrete, untreated steel, raw plaster, and clear glass.
All finishes are left deliberately imperfect, embracing the natural textures and irregularities of each material.
Structural glass panels, fractured with precision technology, reinforce the architectural language of exposure, fragmentation, and material honesty.
Custom-designed furniture, display units, and lighting fixtures seamlessly integrate with the space, reflecting the bespoke character of both the architectural intervention and the high-end fashion collections on display.
SPATIAL CONFIGURATION
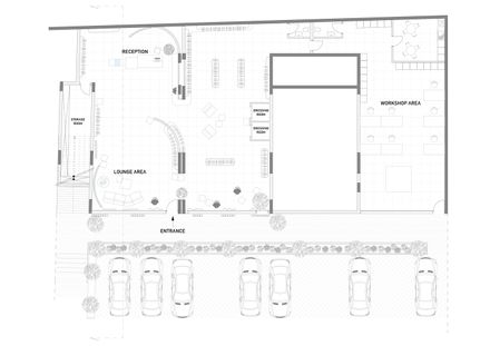
Covering 310 square meters, the showroom is conceived as a fluid, open space for private appointments and curated exhibitions.
The fractured architectural elements guide movement and frame display zones, ensuring a balance between functionality and experiential design.
Natural light filters through the cracked glass façade, casting evolving shadows that accentuate material textures and enhance spatial depth.
A minimal artificial lighting system complements the raw aesthetic without overpowering the space.
FACADE & URBAN INTEGRATION
The minimalist glass façade, fractured with surgical precision, dissolves the boundary between interior and exterior.
Set within Pristina's dense urban fabric, the quiet, raw presence of the showroom stands in sharp contrast to its surroundings, inviting curiosity while maintaining architectural restraint.
CONCLUSION
Erosion is not simply a showroom; it is a spatial exploration of material authenticity and architectural reduction.
Through controlled fractures, raw textures, and conceptual clarity, PHI+ Architects deliver a space that reflects the evolving identity of contemporary fashion and the raw, urban character of Pristina.






























