House of Borrowed Scenery
ARCHITECTS
Atelier JingJing
LEAD ARCHITECT
jingjing
PHOTOGRAPHS
Weiqi Jin
AREA
130 m²
YEAR
2024
LOCATION
China
CATEGORY
Houses, Renovation
English description provided by the architects.
This project is located in a hutong neighborhood of Beijing's old city, occupying an area of approximately 97 square meters, surrounded by a dense residential courtyard.
Before this renovation, the space had undergone a previous transformation by another team, making this project a second optimization (re-renovation).
CURRENT CHALLENGES
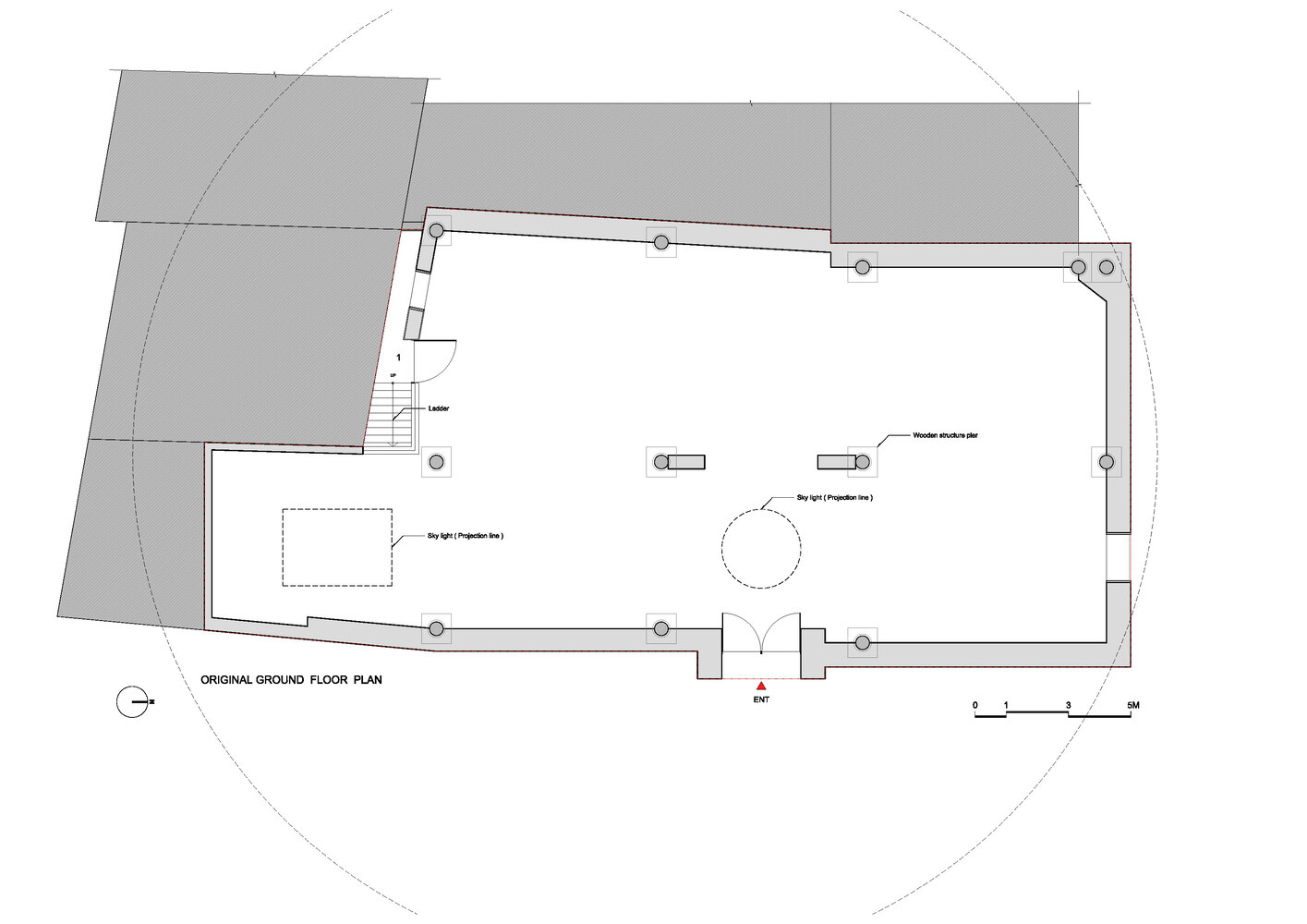
The existing space presented several issues. The north building features a street-facing window, while the first and second floors each have two skylights — a square skylight in the corner of the south room and a circular skylight in the center.
However, due to insufficient lighting and the constraints of the courtyard, the space feels oppressive, akin to being at the bottom of a well.
The narrow and elongated dimensions, combined with the high ceiling, exacerbate the echo effect, significantly reducing overall comfort.
MERGING TRADITION AND MODERNITY
The site comprises a traditional north building with sound structural integrity, which is preserved and modified appropriately.
In contrast, the south building, constructed using imitation ancient methods with a modern wooden framework, has less structural value; except for its foundational walls, most of it will be demolished.
During the site survey, a protected ancient tree, approximately 21 meters tall, was discovered in a neighboring courtyard 32 meters to the south. This tree became a focal highlight of the design.
In traditional Beijing courtyard houses and communal yards, the courtyard serves as the heart of the design. In this project, the ancient tree provides a borrowed view, compensating for the lack of an internal courtyard.
The design adopts the concept of "borrowed scenery" by meticulously adjusting roof levels, addressing issues of light and spatial depth.
The use of traditional elements such as gray bricks, curved roof tiles, and wooden structures, paired with natural elements like the ancient tree and bamboo, evokes a sense of "time's imprint."
Through layered integration, the space gains cultural resonance and contemporary relevance.
LIGHT, LAYOUT, AND ROOF DESIGN
This renovation systematically addresses the original space's problems.
The two large central pillars divide the room into two halves, lacking an entryway and clear spatial definition.
The northwest corner's small courtyard, accessed via an outdoor ladder, suffers from limited lighting and restricted spatial flow.
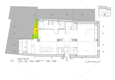
To improve these issues: -The northwest courtyard was slightly expanded, the ladder removed, and it was converted into a landscaped garden, enhancing natural lighting and visual continuity.
-A new entryway was added to the ground floor, improving privacy and providing storage for strollers, bicycles, and shoes.
The open-plan layout integrates the kitchen, entryway, and wet-dry areas, leaving the remaining space as a multi-functional activity area for the young couple and their child.
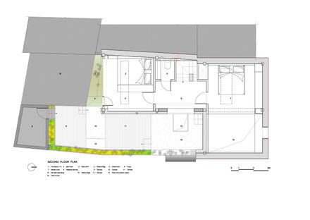
-The second-floor master bedroom now includes a separate sleeping area and a walk-in closet, linked to the rooftop platform via a fluid circulation design.
-The mezzanine level houses two bedrooms and a bathroom, with strip windows along the staircase landing, offering views of Beijing's Bell Tower and the ancient tree's interplay with light and shadow.
Throughout the space, furniture is minimized to essentials such as beds and chairs, while optimized storage solutions meet practical needs.
Natural light is skillfully utilized, with direct, reflected, and diffused lighting changing with the seasons, blending seamlessly with traditional materials like gray bricks, roof tiles, and wood to capture the "marks of time."
DESIGN PHILOSOPHY
This project demonstrates that the essence of spatial design lies not in mere transformation but in the integration of design and life.
The aim is to optimize the space to suit the residents' lifestyles, enabling them to feel comfortable and free, and to truly enjoy a home that is uniquely theirs.-




































