ARCHITECTS
Peninsula Arquitetura
LEAD ARCHITECT
Gabriel Cesar e Santos, José Guilherme Carceles, Eugenio Amodio Conte
PROJECT TEAM
Amanda Moreira, Gaia Savastano
TECHNICAL TEAM
Flavio De Senço, Dalmo Faria
ENGINEERING & CONSULTING > STRUCTURAL
Pedro Negri
ENGINEERING & CONSULTING > CIVIL
Engefrança
MANUFACTURERS
GRAPHISOFT, Assoalhos Murata, Casa Franceza, Fernando Jaeger, Marcenaria da Fazenda
COORDINATION
Lizzy Dreifus
PHOTOGRAPHS
Maira Acayaba
AREA
280 m²
YEAR
2025
LOCATION
São Paulo, Brazil
CATEGORY
Residential Architecture, Houses
Upon taking on the project and construction of the Village House, we encountered a building formed by the joining of two semi-detached houses, "regularized" by a superficial intervention that did not address the essential issues of the space.
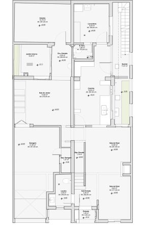
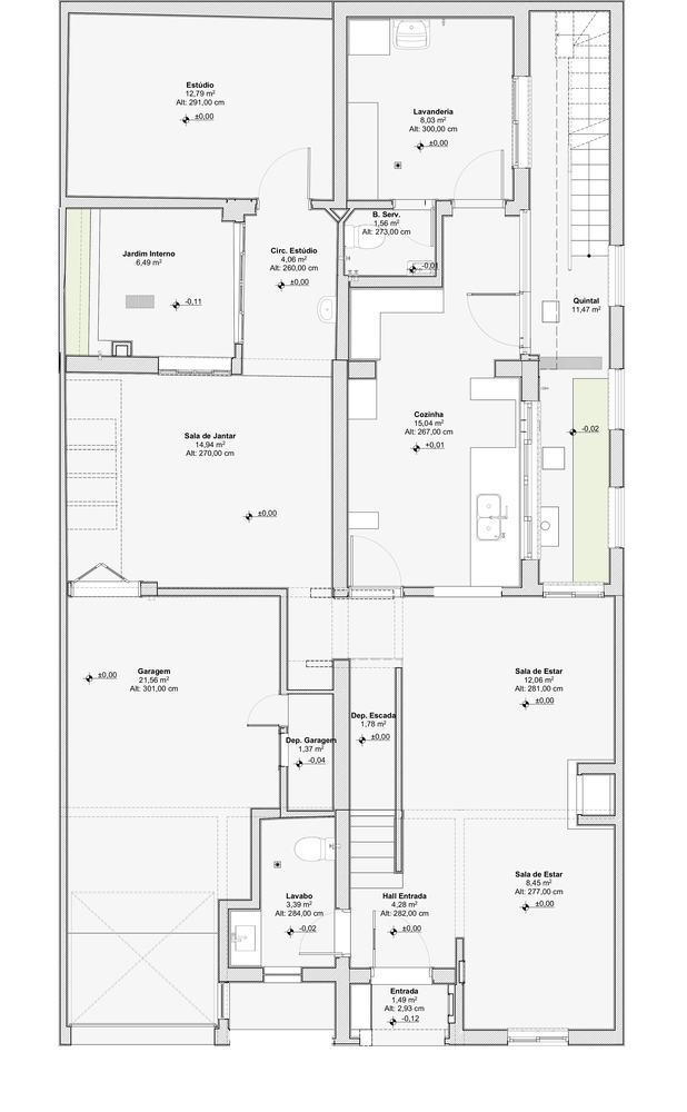
The initial diagnosis revealed a fragmented configuration, with compartments lacking a clear purpose, underutilized areas, and a staircase adapted to reach the upper floor, highlighting the lack of continuity between the parts.
There were overlapping uses, unclear passages, and timid natural light that entered, unable to structure daily life. Our starting point was to restore logic and meaning to the whole, transforming two disconnected halves into a single organism.
The adopted strategy prioritized refinement and stitching, rather than addition. Instead of multiplying gestures, we removed unnecessary barriers, reorganized the program, and requalified the pathways.
The social areas were brought closer together to encourage gatherings, while the service and support environments gained clarity and efficiency.
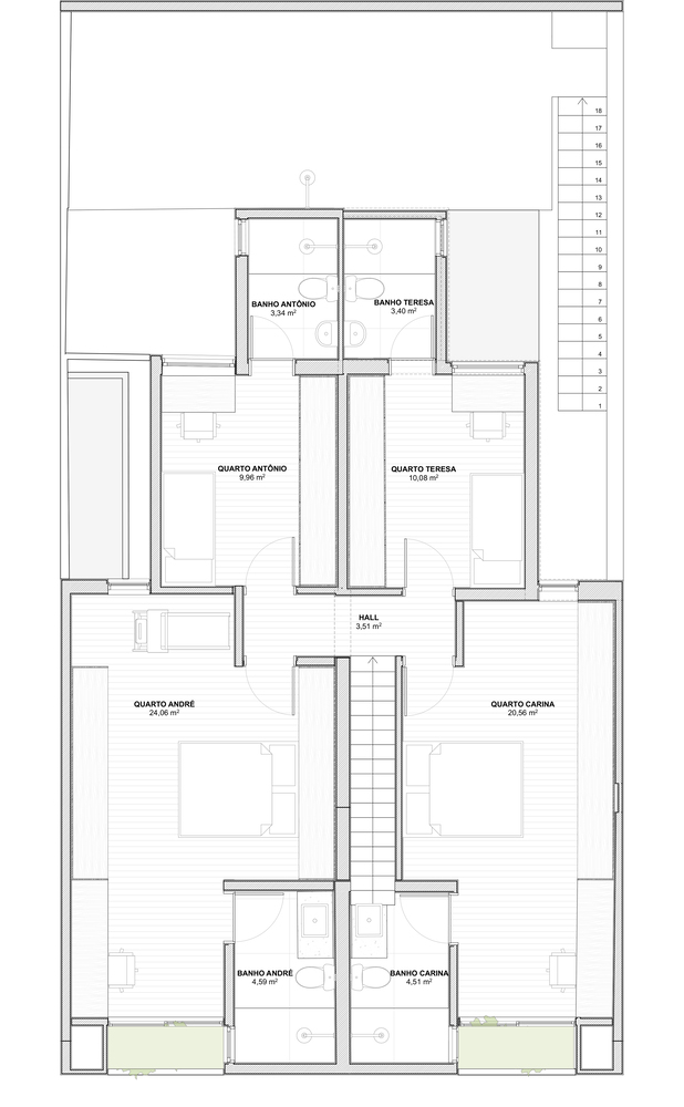
The vertical circulation was rationalized to become a column of orientation, reducing idle movements and freeing up usable space.
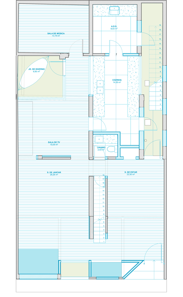
Natural light began to play an active role: we opened visual relationships, extended axes, and designed openings so that light could flow through the spaces, marking uses, rhythms, and durations.
The ceilings, especially in the social area and the studio/playroom, ceased to be mere finishes and began to define the space.
With variations in height and precise junctions with cabinetry and other elements, they organize and reveal the spaces, ordering flows without resorting to additional walls.
This decision allowed us to control acoustics, conceal infrastructure, and at the same time, create a continuous horizon that guides the gaze. The materiality was constructed with a synthetic palette capable of integrating the old parts of the house without erasing their layers of memory.
We maintained what made sense: textures, proportions, certain alignments, and repositioned the rest to achieve formal and functional continuity.
In the playroom, the "little house" became a point of affection and reference. Above it, the new terrace with a garden and planter brings greenery closer to daily use, transforms the care for plants into a habit, and reintroduces a calmer pace into the family's routine.
This terrace also expands the outdoor living area, creates quality shading, and brings cross-ventilation to the adjacent spaces, reducing the need for artificial conditioning for much of the year.
The result is a unified and coherent house, where form, function, and memory walk together.
The connections between the environments are now legible, the vertical circulation is precise, and natural light stitches together everyday life.
Without strident gestures, the intervention supports the essential: a clear architecture in use, generous in light, and faithful to the stories that precede it.

























