
Mazatlan 160 Building
ARCHITECTS
Francisco Pardo Arquitecto
LEAD ARCHITECT
Francisco Pardo
LEAD TEAM
Wilfrido Estrada, Karen Burkart
TECHNICAL TEAM
Rosa Medrano, Jesús Gustavo Vázquez
ARCHITECTURE OFFICES
Gumaro Lizarraga Mendez
LANDSCAPE ARCHITECTURE
Olimpia Frangos
DESIGN TEAM
María Fernanda González Vega,tiberio Wallentin, Benjamín Mercado, Priscila Aguilar, Isabella Arzani, Renee Darwich
PROJECT MANAGEMENT
Glm
PHOTOGRAPHS
Ana paula Alvarez
AREA
620 m²
YEAR
2025
LOCATION
Ciudad de México, Mexico
CATEGORY
Mixed Use Architecture
Mazatlán 160 is a mixed-use building —residential, hospitality, and commercial— located in the Condesa neighborhood of Mexico City.
The architectural proposal embraces a contemporary language, building its identity through the honesty of materials and a rigorous proportional logic.
The project achieves coherence through a symmetrical composition, the expressive use of natural finishes, and the clear integration of each architectural component.
From the façade, the structure is revealed as a three-dimensional grid measuring 3.40 × 3.40 × 3.40 meters.
This modular system is explored through various combinations in both plan and volume, defining and containing the habitable spaces.
Along the two lateral property lines, the building is set back 1.00 meter to accommodate services and circulation —bathrooms and staircases— organizing the layout through the structure and ensuring a continuous dialogue between interior and exterior architecture.
This strategy articulates spaces that naturally respond to daylight, the urban context, and the everyday movement of users.
Materials are expressed with authenticity: they expose the structure, reveal the program, and establish a clear distinction between living areas, service cores, and circulation.
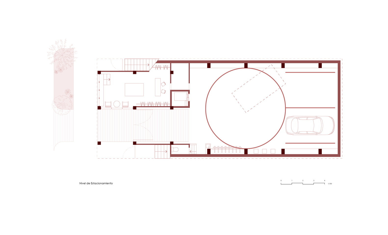
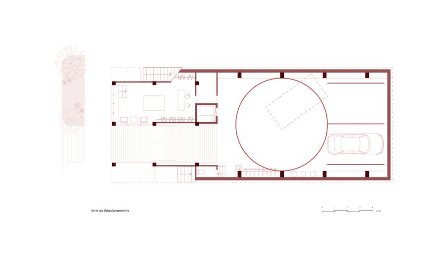
The ground floor houses the commercial program. Above it, two levels are dedicated to hospitality units, while the uppermost floor features a three-bedroom residence with privileged views toward the city.


































