
BlueBottle Coffee Legoland
ARCHITECTS
Atelier Xy
LEAD ARCHITECT
Xiaofeng Qi, Yuyang Wang
DESIGN TEAM
Xuemei Zong
PHOTOGRAPHS
Wen Studio
AREA
180 m²
YEAR
2025
LOCATION
Shanghai, China
CATEGORY
Coffee Shop Interiors
English description provided by the architects.
Every Blue Bottle Coffee store that encourages the idea of "dreaming" is unique, designed to seamlessly merge with its surrounding community and architecture.
This new Blue Bottle Coffee, adjacent to the Shanghai LEGOLAND Resort, echoes the colorful, block-themed nature of the park and extends the LEGO elements that inspire creativity and imagination.
Based on such distinctive background and the target customers who are mostly families and children visiting LEGOLAND, Atelier xy tries to create a fun, memorable space that extends the LEGO experience.
The challenge was twofold: How to visualize the rich, changeable nature of block-play within the minimalist aesthetic of a coffee space?
And how to craft a comfortable, relaxing "dream-building" experience for Blue Bottle's customers? The architect reacted to these challenges with a smart solution.
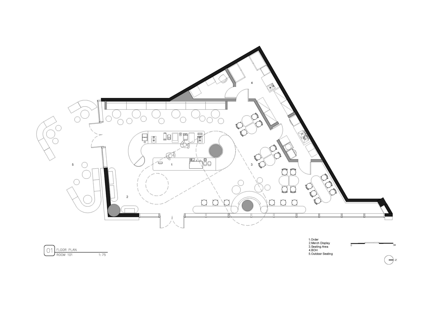
ORDERING YOUR COFFEE ON A LEGO BRICK
LEGO bricks come in a variety of shapes, and the LEGO Technic series, in particular, has a strong relevance to architecture.
Its intricate structure and assembly logic became the inspiration for the space concept of the coffee shop.
The architect took the typical brick as the basic component build up the installation as a coffee bar, employing a visually striking combination of blue and white.
The white "brick" at the base became the coffee counter, while the blue "brick" created the suspended ceiling structure in the middle.
The white "brick" on top t is angled towards the store entrance, extending outward from the glass curtain wall.
This prominent protrusion serves as an eye-catching element on the facade and became a perfect spot for the logo of Blue Bottle.
Inside the store, core elements inspired from the Technic series, including the beam, connector, and axle, have been smartly incorporated into the coffee tables, the merchandising display, and the suspended ceiling.
Such approach not only responds to Blue Bottle's minimalist aesthetic but also aligns with the playful and relaxing atmosphere of the neighborhood.
MODULARITY WITHIN SPACES
"LEGO's growth has always been rooted in architecture, those little plastic blocks are, after all, building bricks."
LEGO also features a famous sub-theme, LEGO Architecture, which aims to use the blocks to "embody the past, present, and future of architecture." Modularity and stacking are the most signature language of LEGO.
The architect used concrete bricks and plastic as the fundamental material, echoing the assembly logic of the blocks, to create an engaging dialogue between the space of Blue Bottle and LEGO Land close by.
The interior walls also inherited the stacking approach with different shapes of bricks. The stacking creates a coffee space that is visually organized and appealing.
Once entered, an adult can suddenly become a LEGO minifigure, returning to the happy memories of building with blocks in childhood, and indulged themselves dreaming in this playground for everyone.

















