ARCHITECTS
Trung tran Studio
LEAD ARCHITECT
Trung Tran
DESIGN TEAM
Trung Tran Studio
PHOTOGRAPHS
Trieu Chien
AREA
270 m²
YEAR
2025
LOCATION
Hanoi, Vietnam
CATEGORY
Houses
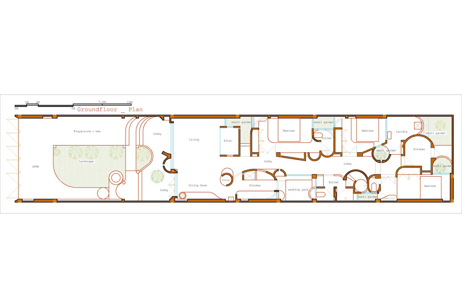
Nang House is a small house, built in the rural suburbs of Hanoi, where urbanization is taking place more and more rapidly, gradually breaking down the traditional rural structure.
The house is designed for a typical three-generation family in rural Vietnam, including elderly parents, a young couple, and young children.
The house is built on a garden with many existing large trees; the design keeps all the existing trees intact.
The main living space is set back, making room for the garden and garage, along with a tea drinking area in the front.
The main living space includes a living room, a worship room, and a dining room in the center of the land, connected to 4 bedrooms and ancillary space in the back.






























