
Lmood Flagship Store
ARCHITECTS
Oftn Studio
LEAD ARCHITECT
Jinsoo Kim, Suji Kim, Hongkyu Park, Seunggyun Baek, Ayoung Yoon, Boyeon Kim
LEAD TEAM
Jinsoo Kim
PHOTOGRAPHS
Yongjoon Choi
AREA
495 m²
YEAR
2025
LOCATION
Seoul, South Korea
CATEGORY
Retail
LMOOD is a contemporary brand that embodies modern sensibility through the foundation of minimalism and practicality.
Under the slogan "Form and Function are One," the brand seeks harmony between aesthetic clarity and functional purpose.
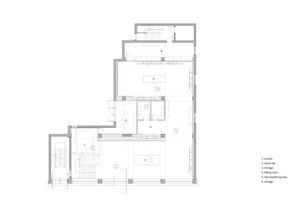
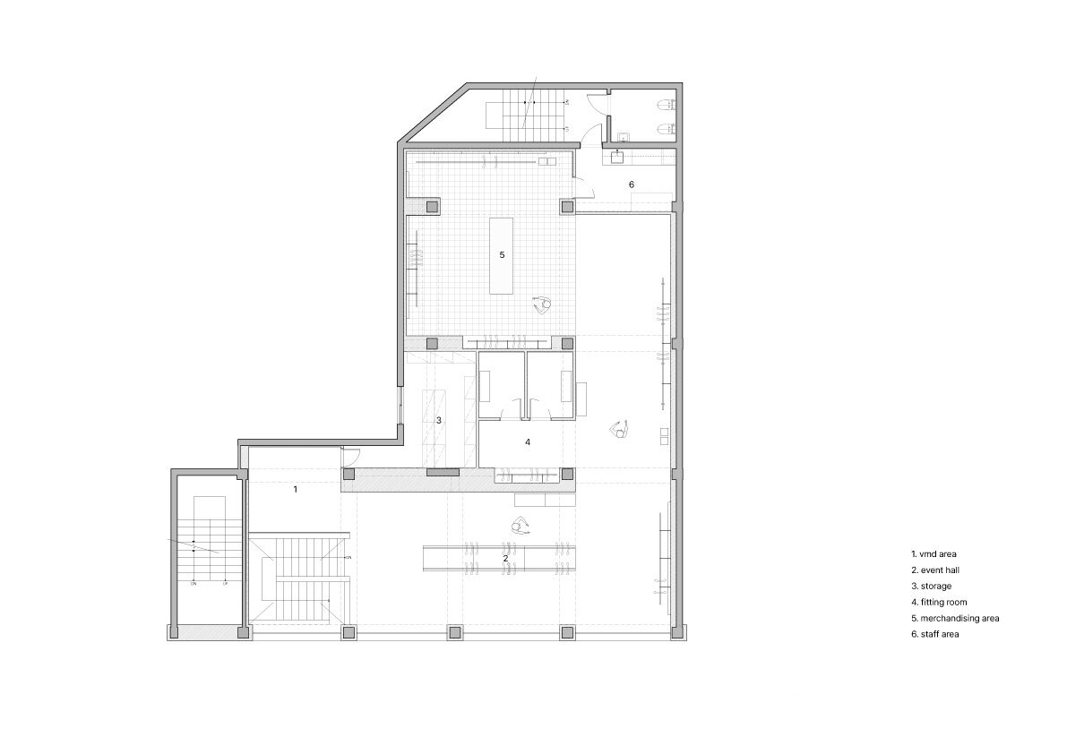
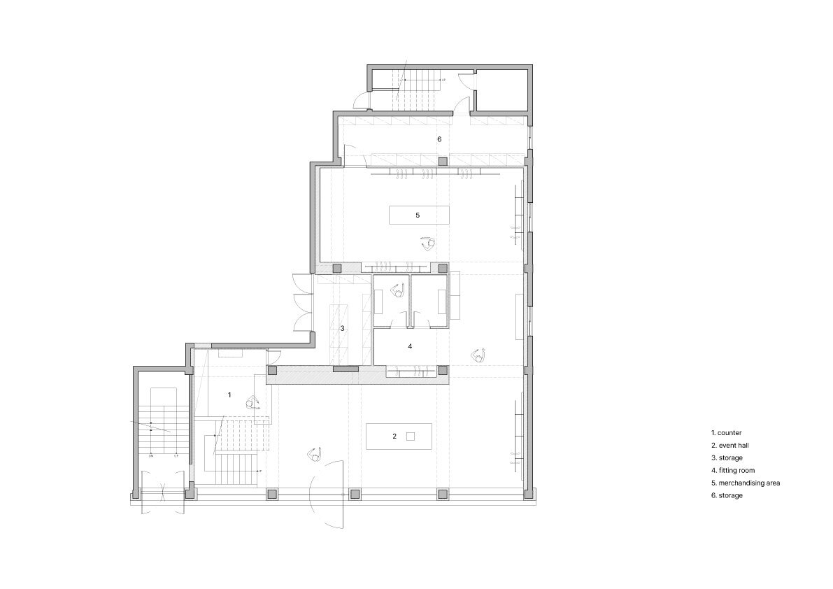
Its first flagship store, located in Seongsu-dong, Seoul, extends over two floors with a total area of 195 sqm, serving as a physical expression of the brand's philosophy and emotional tone.
The guiding keywords for the project were Minimal, Refine, and Mood. Rather than relying on overt ornamentation or visual excess, the design conveys a quiet sense of luxury—a refined simplicity that heightens aesthetic perception through restraint.
The essence of LMOOD's philosophy is captured in the idea of mood itself: an intangible atmosphere formed through proportion, balance, and the weight of materials. The project sought to visualize this philosophy spatially and conceptually.
This central idea was developed into the term "Moodmass," representing the brand's visual and structural identity—the physical manifestation of balance, gravity, and composure.
The store's structure was designed to express not only circulation and function but also the form of LMOOD's brand philosophy.
The composition is anchored by three primary architectural gestures: the staircase, the black mass, and the acrylic wall. Together, these elements embody both solidity and clarity, demonstrating the material and emotional strength of the brand.
The floating counter and central speaker act as sculptural anchors within the space, emphasizing lightness and suspension.
These subtle gestures introduce an extraordinary tension within an otherwise minimal environment, reinforcing the brand's sense of quiet intensity.
As visitors move through the space, the lighting sequence orchestrates rhythm and immersion, transitioning from openness to warmth and intimacy as one progresses deeper into the store.
Material transitions play a significant role in shaping this experiential journey. The polished concrete flooring at the entrance gradually transforms into smaller-scale concrete tiles toward the interior, creating a tactile sense of depth.
Similarly, the metal panels, large in scale near the entrance, become finer and more intricate closer to the display fixtures.
This gradual modulation of material scale, lighting intensity, and tactile rhythm fosters an immersive narrative of exploration—each change representing a subtle shift in emotional tone.
The materials themselves—hand-finished acrylics and brushed metals—embody LMOOD's refined craftsmanship.
Their subdued reflection and muted sheen reveal the intrinsic power of materiality without ostentation.
These elements, carefully processed and finished by hand, become the material language of the brand, representing calm confidence and restraint rather than visual spectacle.
From the exterior, the clean façade and translucent white glass were intentionally designed to frame the store's internal sculptural structures as objects within a display case.
Seen from the street, the composition becomes a quiet statement of identity—a transparent yet solid form that reveals the spatial essence of LMOOD's philosophy.
Ultimately, the LMOOD flagship store is not merely a retail space but a spatial interpretation of the brand's ethos—a place where clarity, balance, and depth converge into a distinct mood.
It stands as a reflection of LMOOD's belief that true modernity lies not in excess or display, but in the weight of stillness, the precision of form, and the purity of intention.

































