Coor Seongsu Flagship Store
ARCHITECTS
Atelier Khj
LEAD ARCHITECT
Hyunjong Kim
DESIGN TEAM
Chaewon Kang, Jihyeong Lee
PHOTOGRAPHS
Sun Kim(ATELIER KHJ)
AREA
521 m²
YEAR
2023
LOCATION
Seoul, South Korea
CATEGORY
Renovation, Retail Interiors
English description provided by the architects.
When planning a commercial space, it is not easy to sacrifice usable space.
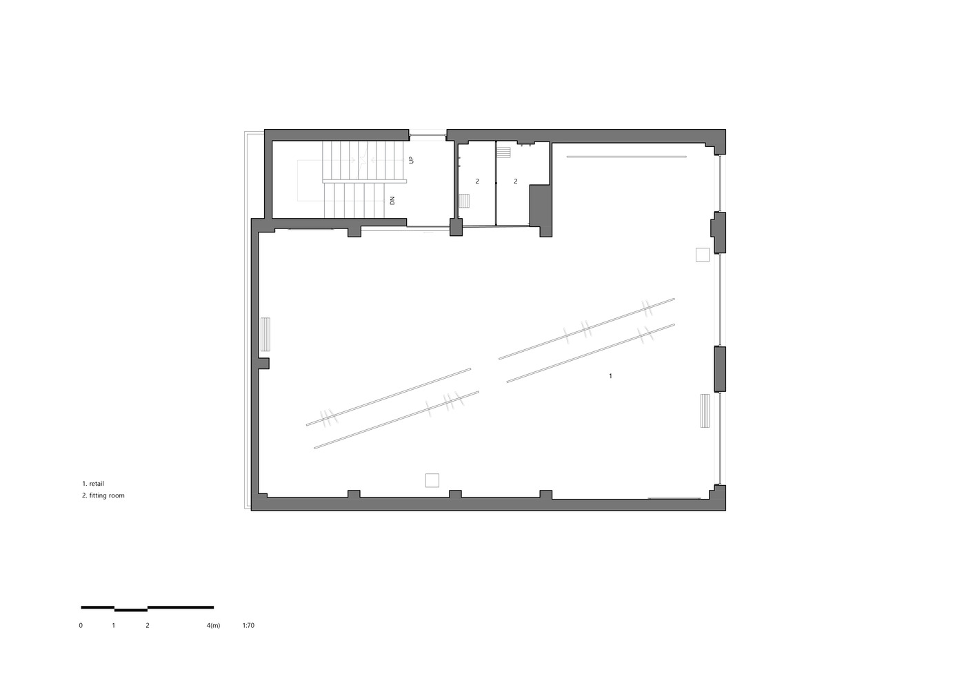
This is especially true in areas with high unit prices, where most prefer to maximize the display space by ensuring more circulation space in narrow areas.
However, the Coor Seongsu Flagship Store took a different approach, going against this trend.
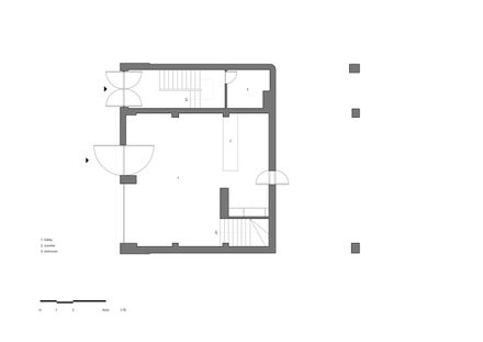
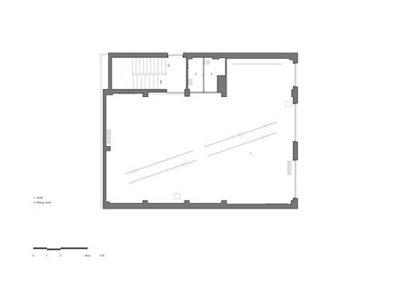
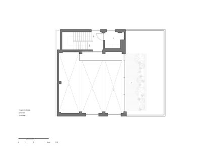
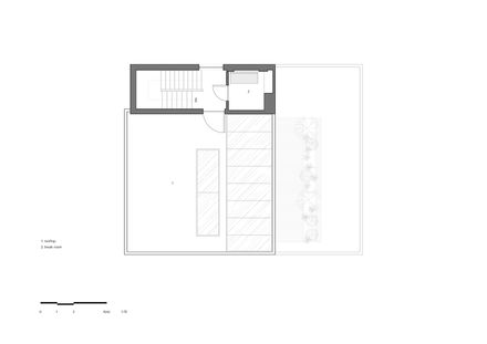
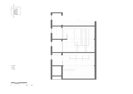
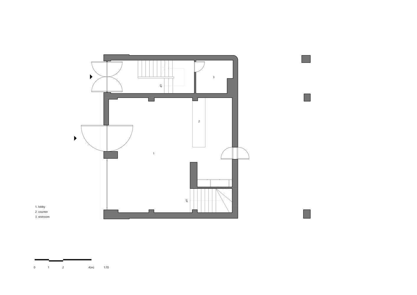
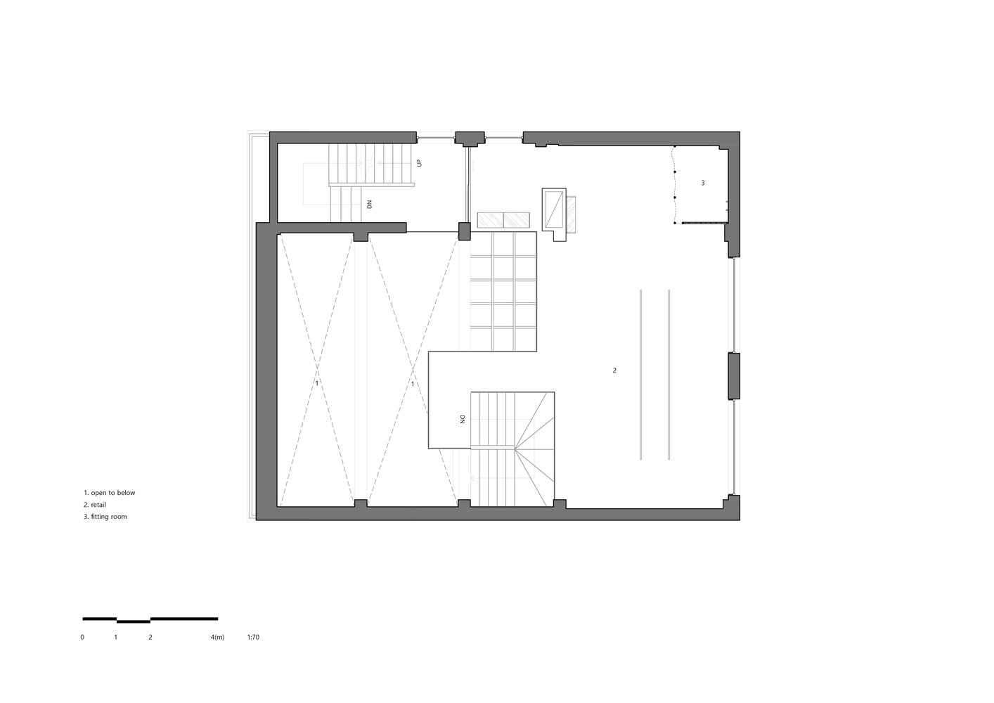
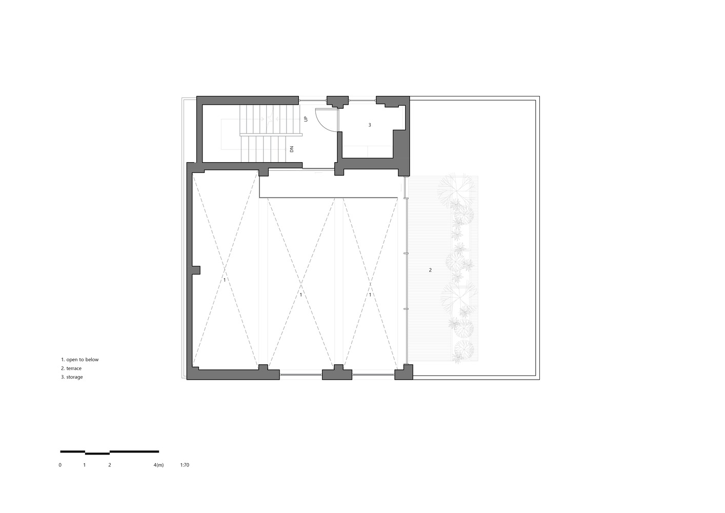
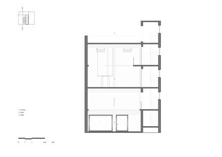
Half of the second-floor slab and two-thirds of the fourth-floor slab were removed, transforming the building into a two-story structure with the height of a four-story building.
After much contemplation on how to guide visitors to naturally and unconsciously ascend to the upper floors, the solution found was: First, to convey a sense of comfort through intuitive circulation;
second, to consider the most comfortable dimensions for the space width and stair height; and third, to provide an enjoyable experience as visitors reach the final floor.
The challenge was deciding what would "float" in the varying slab areas with different dimensions on each floor.
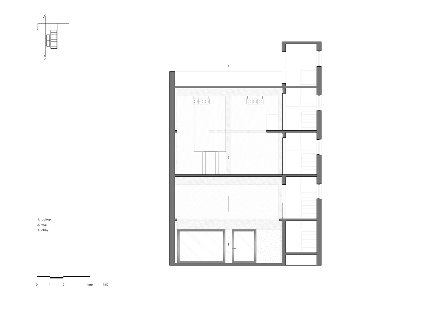
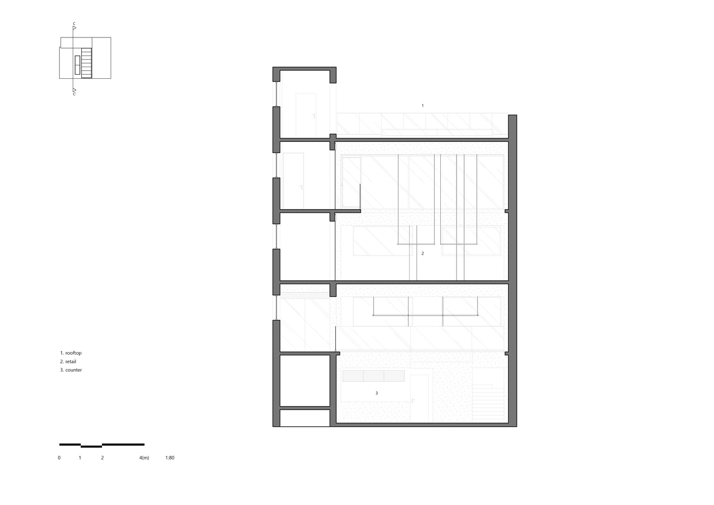
The first and second floors were combined to allow light and air to mix, while the traces of the slabs, beams, and columns were left exposed.
In between these elements, people would intermingle.
Imagining clothes hanging on racks, seemingly floating, with the ceilings of the second and third floors visible above.
By sharing the vertical space, a new world was created. This is probably what "consuming space" feels like.
































