Xuperman Table Tennis Gym
ARCHITECTS
Metrics Architecture Studio
LEAD DESIGN AND TEAM
Pey Lung, Yasong Zhou,qiao Feng, Ye Xu
PHOTOGRAPHS
Studio MAX
YEAR
2025
LOCATION
Shanghai, China
CATEGORY
Mixed Use Architecture, Recreation & Training, Sports Interiors
English description provided by the architects.
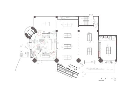
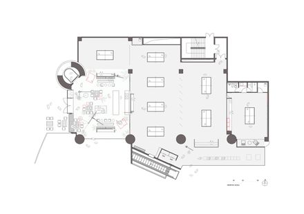
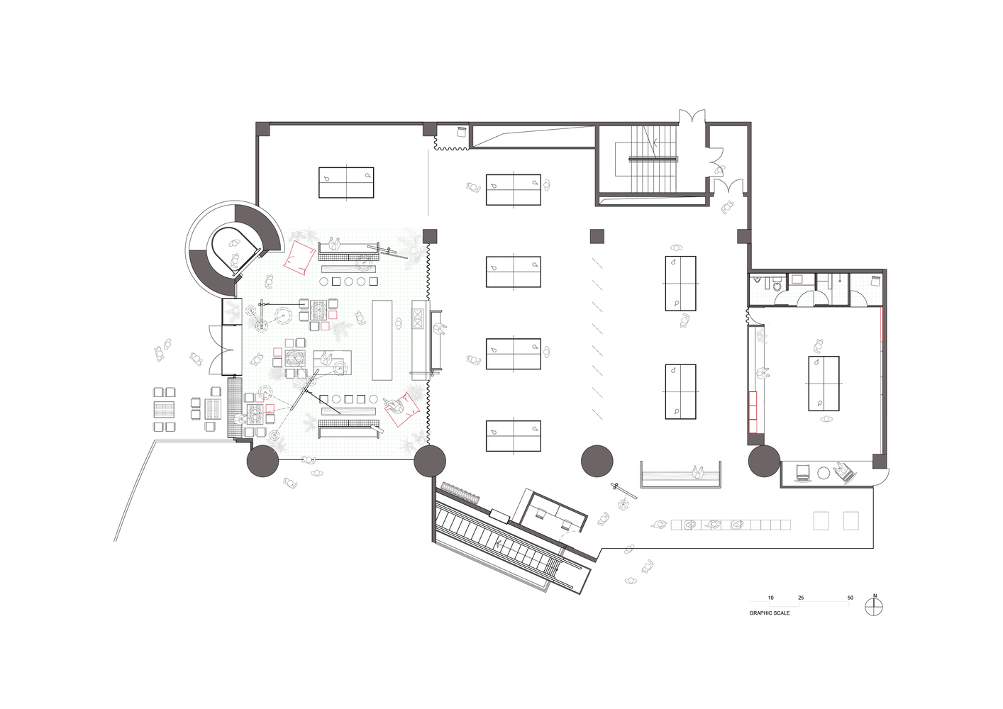
Nestled in the heart of Shanghai, this project reimagines a conventional mall space as a leisure table tennis gym.
The design centers on the concept of "mixing patches," creating a dialogue between new and old, using these reclaimed elements as an aesthetic motif to craft a fresh identity for the popular sport.
We emphasized a natural, flowing movement throughout, while playing with material and atmospheric juxtapositions.
Beyond the functional sports hall, a dedicated coffee area offers a respite—a quiet, slow-paced nook inspired by the feeling of a mountain shelter.
This creates a deliberate contrast to both the urban frenzy outside and the gym's own energetic pace.
The strategy involved creating a sequence of new pillars from the recycled trusses of old demolished houses.
These pillars anchor the design, reconfiguring the circulation to resolve the challenges posed by the building's complex context, which includes a mix of offices, retail, and a food court.

























