ARCHITECTS
Studio Mcw
STRUCTURAL ENGINEER
Walder Sharp
MANUFACTURERS
Farrow and Ball, McClark Joinery, Perla, Perla
MAIN CONTRACTOR
Rimi Renovations
PHOTOGRAPHS
Lorenzo Zandri
AREA
183 m²
YEAR
2024
LOCATION
London, United Kingdom
CATEGORY
Houses, Renovation
English description provided by the architects.
Threshold House makes room for extended hospitality.
Studio McW has extended and redesigned the lower ground floor of Threshold House, a semi-detached, split-level Victorian home in the leafy De Beauvoir neighbourhood of London.
The clients, a busy couple, wanted a highly functional home that balances its softer, more private spaces with those for exuberant entertaining.
The previously renovated upper levels of the property feature a reception room and spare bedroom, and the primary bedroom with ensuite above, so the lower ground floor needed to mediate this balance.
The brief called for a layout that created a moment of discovery for visitors descending from the upper ground floor, where the lower ground floor opens up and unfolds towards the garden.
Both practical and beautifully resolved, Studio McW's design conceals a clever arrangement of rooms forming the primary entertaining space while carving out additional private areas and improving connection to the rear garden and its two mature, protected palm trees.
Recognising that the home would benefit from more intimate living spaces, the clients called for one room on the lower ground floor to be retained as a flexible space, functioning as a home office or an additional guest bedroom when required.
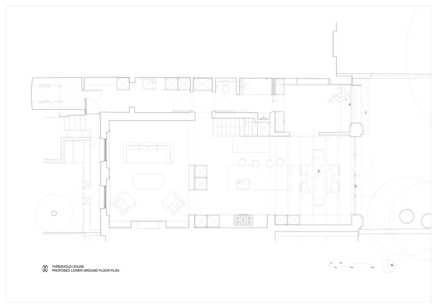
Studio McW designed an extension that reaches as far as planning restrictions would allow. The increased footprint now accommodates a generous kitchen-dining area with adjoining living room, utility room, dual-access bathroom, and the versatile study/spare bedroom.
Studio McW crafted a layered appearance to the facade, retaining visual depth and balancing the proportions of the existing Victorian house.
Connected by a thick, monolithic brick wall the addition is divided as two complementary faces that articulate the relationship between the internal social spaces on the left from the more private rooms to the right.
The larger of the two faces bookends the kitchen-dining area, framing a view through to the living room beyond. Tiered brickwork extends outward from the full-height Crittall-style doors, creating depth and a sense of solidity.
To the right, in line with the existing outrigger above, the composition shifts: steel elements colour-matched to the metal doors contrast with the weight and texture of the brickwork.
Initially conceived as a fully brick elevation, the introduction of metalwork was developed by Studio McW to prevent the extension from feeling too imposing when viewed from the garden, and to future-proof the structure for a potential upper ground floor extension that could accommodate an additional bedroom
A low maintenance green roof on the extension camouflages the building within the garden, reducing any visual bulk when viewed from the upper ground floor reception rooms.
The project required a careful composition of rooms at the lower ground floor. From the upper level, the stairs descend into the open kitchen-dining area, above the dining table a large rooflight set behind rich exposed timber beams further illuminates the space.
Positioned below street level at the front of the property, the living room is accessible through two enlarged openings off the kitchen, maintaining a strong visual and spatial connection between the living areas.
At the centre of the plan, the kitchen anchors a circular route through to the more private rooms.
A dual-access bathroom and a sliding pocket door from the study to the dining area enable easy movement throughout the floor, particularly useful for the homeowners when they are hosting a larger group of guests.
The bathroom needed to be both private and versatile, functioning as an ensuite when the study serves as a guest bedroom, yet remain accessible to guests during social gatherings and parties.
Leaving the bathroom doors open introduces additional light and breathing space, drawing daylight from the utility room and study into the centre of the plan.
Privacy can be easily established when the study is used as a bedroom, ensuring the layout remains both functional and adaptable to the clients' lifestyle.
The completed lower ground floor of Threshold House demonstrates Studio McW's ability to combine practicality with refined architectural expression.
Through a careful balance of materials, spatial organisation, and thoughtful detailing, the design transforms the intricate layout of rooms into a cohesive, intuitive plan that enhances the home's daily functionality.
The result is a house that is simultaneously generous, flexible and connected to its garden setting, reflecting both the clients' lifestyle and the studio's considered approach to contemporary residential design.















