
Nab 3 Parramatta Square & Nab 2 Carrington St. Offices
ARCHITECTS
Woods Bagot
LANDSCAPE DESIGNER
360 Degrees
BUILDER
Built
STRUCTURAL ENGINEER
Bg&e
ACOUSTIC ENGINEERS
Stantec
SERVICES ENGINEERS
Ndy
ESD
Ndy
TRANSPORTATION ENGINEER
Arup
CLIENT
National Australia Bank
PROJECT MANAGER
Savills Project Management
LIGHTING DESIGNER
Ndylight, Ndy Light
PROJECT LEAD & DIRECTORS
Lisa James, Adriana Pelle, Nik Karalis, Amanda Stanaway, Domenic Alvaro, Ian Lomas, Petra Bonamy, Mazdak Goudarzi, Chris Savva, John Norman, Alissandra Johnston, Tershia Habbitts, Leonie Weiss, Holly Whyatt, Audrey Marquant, Julia Solomon, Chris Field, John Caldwell
MANUFACTURERS
UniFor, Wilkhahn, Fisher & Paykel, Interface, Academy Tiles, Armstrong, Artek, Artifort, Aspect Furniture, Bosch, Breville, Caesarstone, Caon Studio, Caroma, Clark, Cult, District, Dorma, Dowel Jones, Dulux, +43
QUANTITY SURVEYOR
Wt Partnership
PHOTOGRAPHS
Nicole England, Trevor Mein
YEAR
2022
LOCATION
Parramatta, Australia
CATEGORY
Public Architecture, Office Buildings
A Tale of Two NABs. In Sydney, there's a red staircase that connects two workplaces located 24 kilometers apart. NAB 3 Parramatta Square (3PS) and NAB 2 Carrington St (2CS) are Woods Bagot's fraternal twin workplace tenancies.
Known by NAB as their "Sydney campus", together these buildings accommodate over 6,000 desks, providing a rare opportunity to boldly transform the bank's workplace experience in locations highly connected to both its established and emerging customer base.
"It was a two-hand approach – with both tenancies designed and delivered in parallel, leveraging intelligence from the transformational NAB 700 Bourke Street project in Melbourne," says Amanda Stanaway, Woods Bagot's global workplace leader.
"We first had to distill NAB's DNA and carry it across both sites, whilst also defining the identity for each, influenced by their unique locational attributes and demographic."
The design response for the NAB 3PS project was informed by an 'emerging' project persona, with the project becoming a keystone for the establishment of Parramatta as Sydney's Central City.
In contrast, the heritage surrounding and well-tread CDB business hub at NAB 2CS brought forth an 'established' persona.
These conceptual approaches informed all aspects of workplace design, including the programmatic arrangement of space, geometry, movement, connectivity, and materiality.
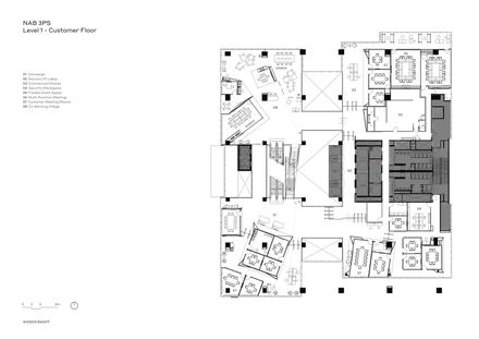
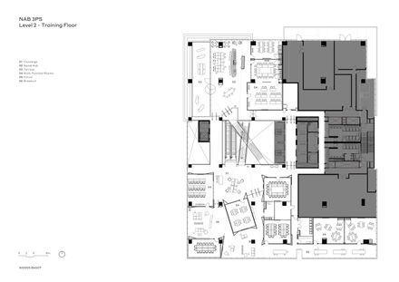
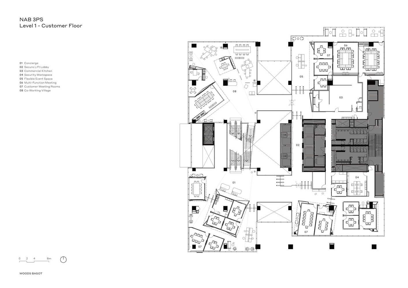
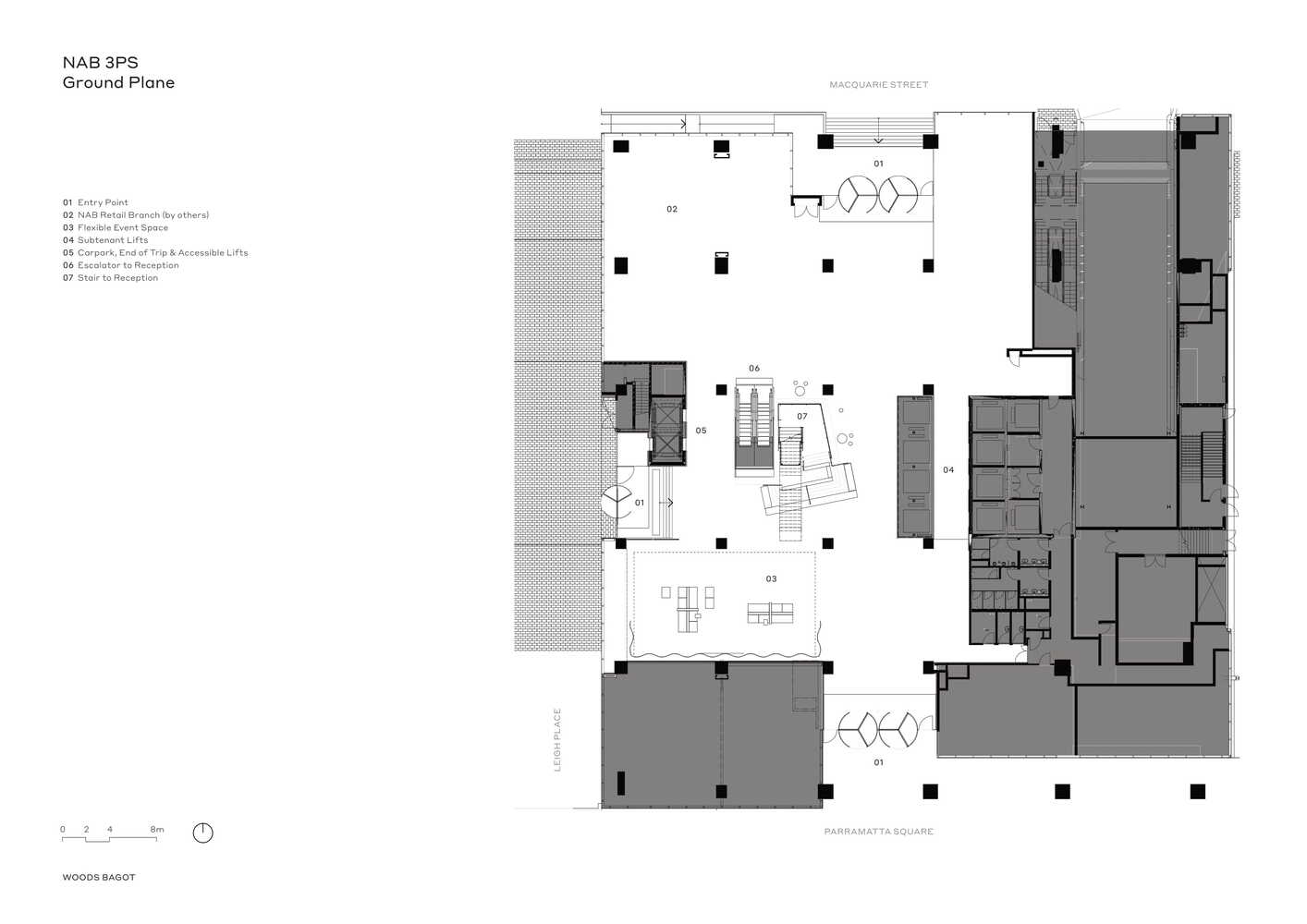
Emerging Persona. NAB 3PS is a 13-level, 35,000sqm adaptable workplace located in the heart of greater Sydney, central to one of Australia's largest urban renewal projects, the Parramatta Square precinct.
The project's 'emerging' theme focused on creating a raw, surprising, authentic aesthetic, representative of the greater Sydney context and a culturally diverse demographic. Movement, spatial distribution, and forms within the interior create a bold and interactive experience by intersecting and layering space.
The lower levels of the building encourage engagement with the public realm, deliberately 'lifting the curtain' on the inner workings of the bank by drawing the customer and community inward and providing a range of immersive spaces to enable connection and co-creation, as well as an accessible amenity for staff.
Established Persona. At NAB 2CS, an 'established' notion of identity is translated into a refined aesthetic.
The 12-level, 29,000 sqm adaptable workplace occupies all commercial levels of the heritage-listed Shell House, as well as a new commercial tower adjacent, with a central atrium connecting the two.
Overlooking Wynyard Park, this rare park side address is harnessed with framed pockets of views across the treetops and down Wynyard Lane.
The workplace is designed as a highly flexible extension of this public realm, with the first four levels publicly accessible, incorporating a Micro Branch & Café.
A sculptural entry ribbon forms a centerpiece, launching the circulation journey through the building, and transporting customers and colleagues to an elevated concierge experience.
On the upper levels, the workplace design evolves the existing NAB workplace strategy by providing a diversified suite of spaces for connection and collaboration, including an amphitheater, two outdoor terraces, and a vast dealing floor, all punctuated with a superior level of amenity for the bank's support staff.
"A unified experience is created across 3PS and 2CS, both physically and visually, through the introduction of meaningful interventions to the base building," says Woods Bagot Principal Ian Lomas.
"An innovative stair and void strategy are woven across both tenancies. The 'red-thread' stair not only creates movement and connection across the tenancy, but is also a key mechanism for the translation of brand to the environment, and unifies the spirit of the two locations."
The two tenancies are the culmination of over a decade of collaboration between NAB and Woods Bagot, offering a new vitality to the workplace at a time when its value has never been more in question.
"It's a relationship that's had time to evolve," says Stanaway. 'We're as close to NAB's DNA as we've ever been, its aspirations for the future of its workplace environments, and existing brand and design identity established by landmark projects such as 700 Bourke Street in Melbourne."
"Our collaboration has resulted in some of the most progressive workplace design solutions delivered by our team."
For one workplace to achieve this success, a uniquely reciprocal conversation between the client and the design team is needed.
Two delivered concurrently can only be the result of a sustained, collaborative partnership – a dynamic that's of rarefied air.



























