ARCHITECTS
Toob Studio
CONSTRUCTION
Splus
PHOTOGRAPHS
Triệu Chiến
YEAR
2025
LOCATION
Hanoi, Vietnam
CATEGORY
Houses
B.Red House is situated within an urban development governed by fixed planning regulations, where the latitude for architectural self-expression is narrowed by the imperative to maintain a unified overall appearance.
The extended sameness across successive building masses has, perhaps inevitably, produced a sense of order bordering on monotony—an environment in which individual houses appear to share a common formal vocabulary.
Within such a context, the pursuit of self-definition becomes challenging, as each building must sustain its own internal logic while still operating within the predetermined limits of an established urban typology.
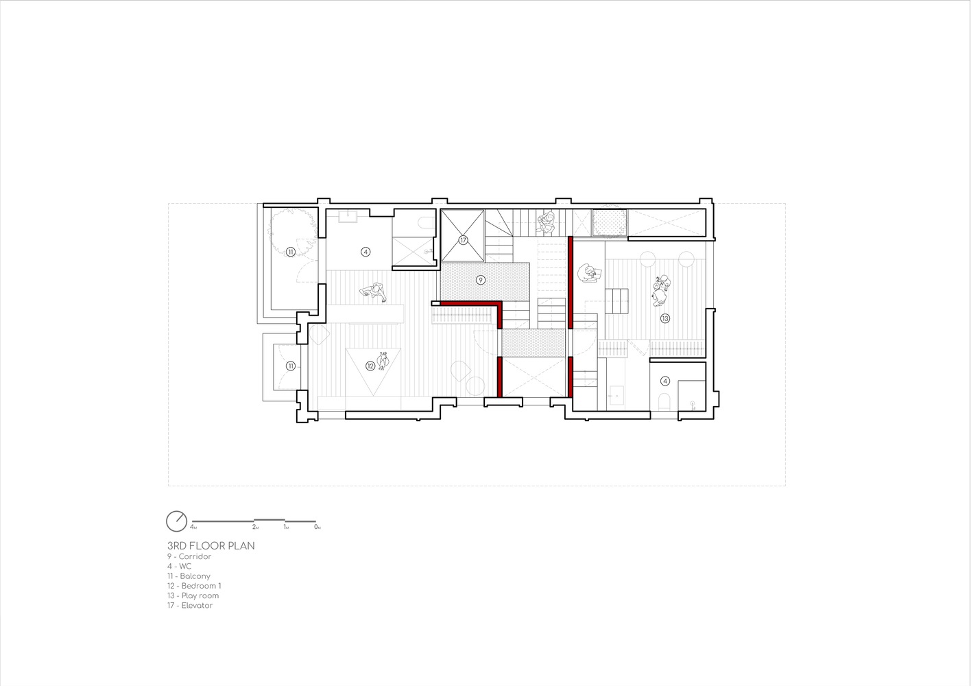
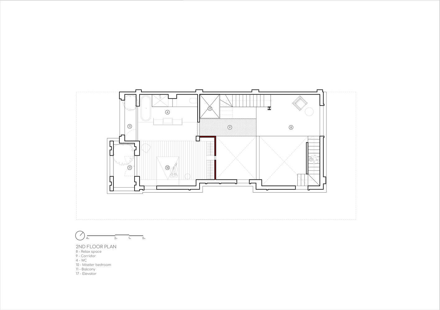
The original house model of B.Red House is a typical type within the area, organized around a central staircase that divides the plan longitudinally into two primary functional blocks.
This configuration recalls the urban townhouse typologies of the early 2000s, a period when reinforced concrete construction was widely adopted.
Although uniform floor levels ensured functional clarity and ease of construction, they also contributed to spatial monotony.
The resulting enclosed "functional cells" often limited interaction, reduced flexibility, and constrained the personalization of daily living.
B.Red House is conceived as an experiment in regenerating architectural life from within—an intervention that unfolds quietly but decisively, without altering the outward appearance of the urban fabric.
The design team restructures the interior through a system of varied floor levels, creating layered transitions between functional spaces.
Internal circulation is articulated as a dynamic framework, flexibly connecting staggered floor planes, thereby establishing spatial continuity and introducing a renewed visual flow throughout the house.
The dialogue between the natural material surfaces—fired brick, steel, timber, and exposed concrete—and the modulation of light transforms the domestic interior into a field of equilibrium, where material tactility and inner stillness coexist.








































