ARCHITECTS
Pau Architects
LEAD ARCHITECT
Trung Nguyen, Huyen Nguyen
LEAD TEAM
Trung Nguyen, Huyen Nguyen
DESIGN TEAM
Thi Cao
MANUFACTURERS
vicostone
PHOTOGRAPHS
Quang Dam
AREA
70 m²
YEAR
2023
LOCATION
Ho Chi Minh City, Vietnam
CATEGORY
Houses
English description provided by the architects.
A.K House is a compact townhouse project located in a quiet residential neighborhood with lush greenery.
Situated on a modest 70m² plot with an angled layout deviating from the main street, the design challenge was to optimize the living space under spatial constraints — ensuring privacy while maximizing access to natural light and ventilation.
URBAN CONTEXT & DESIGN INTENT
The homeowner envisioned a modest yet characterful home — a place to return to, blending quietly into the neighborhood's rhythm.
Working with the irregular site geometry, the design team created a setback façade composed of staggered planes, using diagonal lines as a key visual language.
The building mass retreats progressively inward, forming an urban buffer and allowing daylight to gently filter into the interiors.
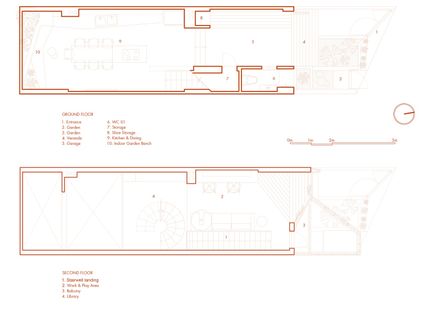
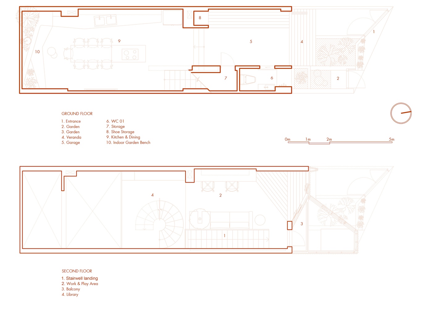
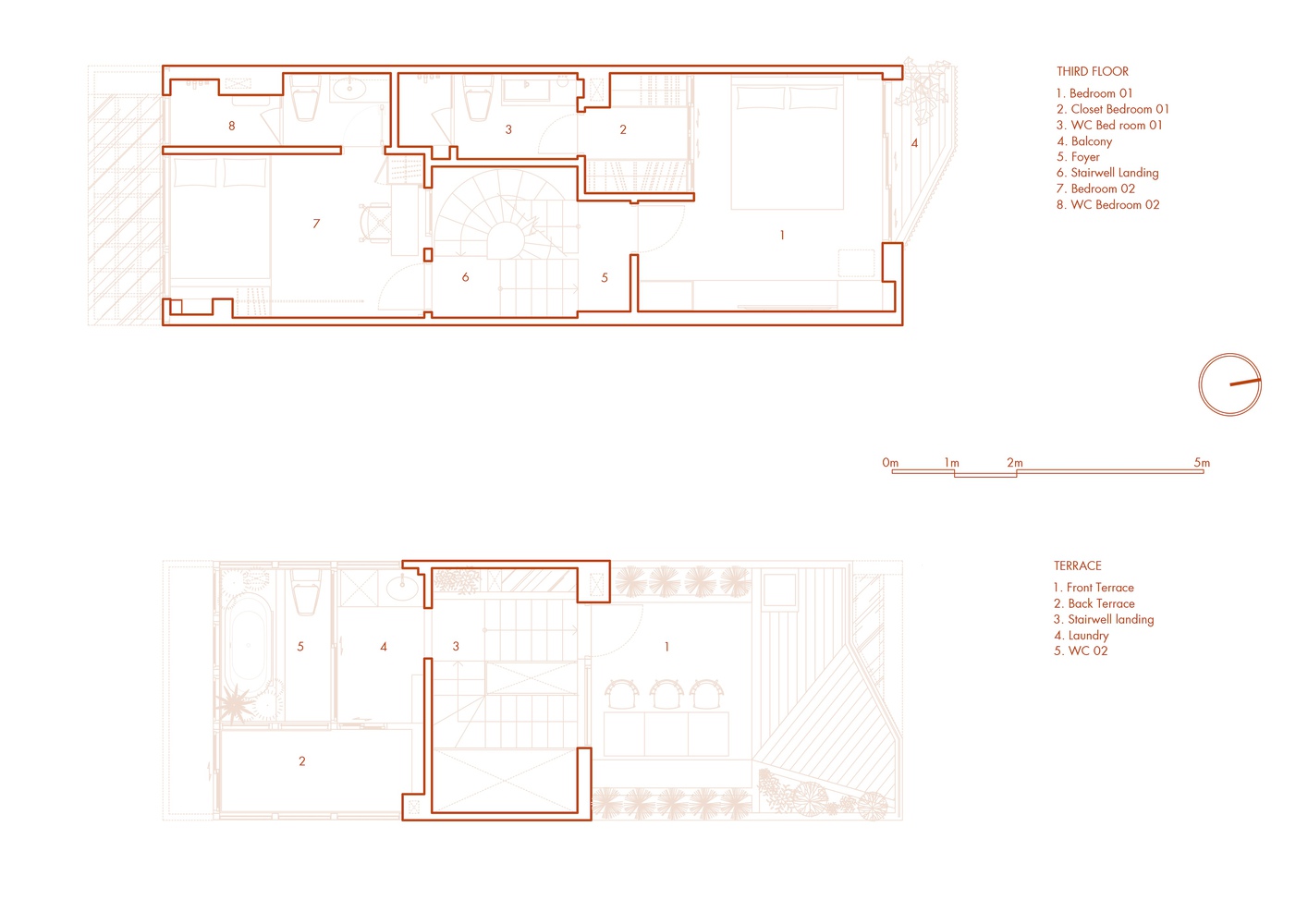
SPATIAL ORGANIZATION
The house follows a split-level configuration, enabling spatial fluidity and enhancing natural ventilation and illumination.
The ground floor is reserved for the kitchen, dining area, and parking. The rear of the house opens up into a green buffer zone that brings natural light and airflow deep into the cooking space — not only as a place to dine but also as a daily retreat for recharging.
Mezzanine hosts the living room and is connected by a curved staircase — a compact solution that introduces soft movement into the space.
Thanks to the flexible lifestyle of the occupants, the compact mezzanine becomes a dynamic, shared environment rather than a segmented one.
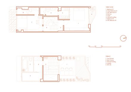
The first floor includes two bedrooms, each with private bathrooms and access to daylight.
The master bedroom leverages the stepped-back façade to channel light from above deep into the room, even illuminating the bathroom through skylight openings — offering both privacy and natural ventilation.
Rooftop is a space of retreat, featuring a semi-outdoor bathing area and generous planting zones that reflect the homeowner's passion for foliage plants.
CLIMATE STRATEGIES & NATURAL VENTILATION
Despite the limited footprint and skewed layout, the design incorporates a range of passive climate strategies: The split-level configuration encourages vertical and horizontal air circulation;
A rear setback functions as a horizontal lightwell, improving cross-ventilation; Openings are strategically placed to balance daylight and privacy; Green pockets are interwoven across all levels to regulate heat and humidity, adapting the home to its tropical setting.
FAÇADE & BUILDING ENVELOPE
The front façade is wrapped in a layered steel mesh — simultaneously acting as a privacy screen in the densely built context and as an aesthetic element that balances the asymmetry of the plot.
This skin mitigates direct views from the opposite house and softens solar exposure onto the front yard, creating optimal conditions for the growth of the homeowner's favorite foliage plants.
A.K House is a nuanced response to small-scale urban living — where every detail is carefully considered to balance spatial functionality with personal expression.
Through the interplay of light, air, greenery, and multi-level planning, the house offers a warm and inspiring living experience rooted in both intimacy and openness.
























