House Écorce
ARCHITECTS
Benoit Rotteleur Architecte
LEAD TEAM
Benoit Rotteleur
MANUFACTURERS
Reynaers Aluminium, Bouyer-leroux, Filtersun, Kenzaï
DESIGN TEAM
Benoit Rotteleur Architecte
PHOTOGRAPHS
Antoine Seguin
AREA
100 m²
YEAR
2023
LOCATION
Paris, France
CATEGORY
Residential Architecture, Houses
English description provided by the architects.
In a charming alley in Malakoff, where small workers' houses harmoniously coexist with former workshops and apartment buildings surrounded by greenery, a family with two children has found their refuge.
It is at the heart of this warm and bucolic atmosphere that they chose to settle.
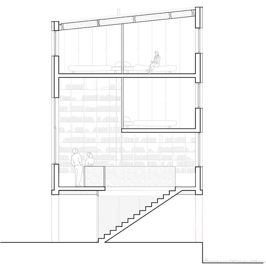
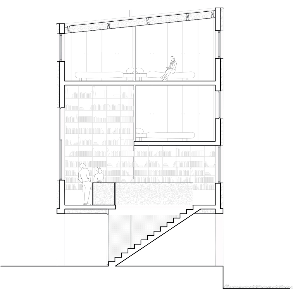
The project is located on a narrow plot, offering limited buildable space. To optimize every square meter, we opted for a bold vertical approach.
Entirely clad in cork, this contemporary cabin, suspended above the street, rises over three levels, offering a unique living environment.
Elevated above the street, the living space rests on an elegant concrete portico, creating a fluid dialogue between the house and its urban environment.
As you climb the floors, the spaces become more intimate. The first level of the house is dedicated to the family living area.
This open space, bathed in light thanks to the double height, is marked by a sculptural staircase that subtly delineates the kitchen and living room areas.
The stairs leading to the upper bedroom levels are cleverly concealed within the furniture.
On the ground floor, this portico, a true bridge between the interior and exterior, allows for complete transparency towards the garden, extending the living space beyond the walls.
The main staircase, raw and concrete, enclosed in glass partitions, stands at the heart of this open space, symbolizing the transition between the street and the intimacy of the home.
Designed from the outset to be eco-friendly, this house minimizes its carbon footprint while offering unparalleled comfort.
Suspended over three levels, its shell is entirely wrapped in cork, a natural bio-sourced insulator that ensures perfect waterproofing and maintains moisture levels.
Heated by a wood stove strategically placed beneath the double-height ceiling, heat naturally disperses through the floors, creating a cozy and warm atmosphere.
The cork panels, treated to become hydrophobic, ensure optimal insulation while offering exceptional acoustic and thermal performance.
This choice of natural materials gives the house a raw and authentic aesthetic while meeting contemporary sustainability standards.











