Atelier Jeumeu
ARCHITECTS
Cov Studio
LEAD ARCHITECT
Minkoo Cha, Boram Kim, Jongbae Park, Soee Jeon
LEAD TEAM
Minkoo Cha, Boram Kim
TECHNICAL TEAM
Jongbae Park
DESIGN TEAM
Soee Jeon
PHOTOGRAPHS
Yongjoon Choi
AREA
141 m²
YEAR
2024
LOCATION
Gangneung, South Korea
CATEGORY
Residential Architecture
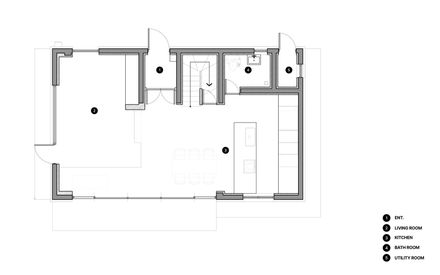
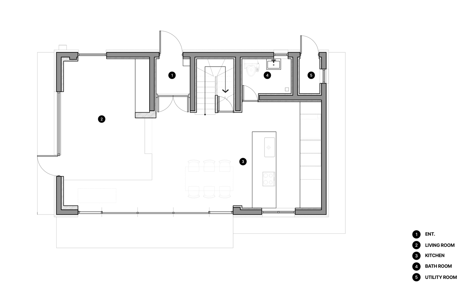
Atelier Jeumeu is a stay project located in Jeumeu Village in Gangneung, whose name means "the village where the sun sets."
Conceived as a refuge from the city, the project invites visitors to step away from urban speed and embrace a moment of stillness.
The architecture offers a gentle structure that supports the rhythm of daily life, where light and texture slowly reveal the passage of time.
Natural light, material tactility, and carefully crafted furniture merge into one sensory experience, creating harmony between interior and landscape.
Atelier Jeumeu presents a serene refuge where time moves quietly, and simplicity becomes a form of rest.



































