ARCHITECTS
Gon Architects
LEAD ARCHITECT
Gonzalo Pardo
MANUFACTURERS
BANDALUX
DESIGN TEAM
Carol Linares, María Cecilia Cordero, Cristina Ramírez, Kostís Toulgaridis, Despoina Papadopoulou
PHOTOGRAPHS
Imagen Subliminal
CONSTRUCTION
Redo Construcción
AREA
151 m²
YEAR
2023
LOCATION
Madrid, Spain
CATEGORY
Apartments, Renovation, Apartment Interiors
English description provided by the architects.
'French family looking for an apartment to settle in Madrid for an indefinite period of time'.
With this headline, Marion and Paul Franck, a couple with three young children - Leo, Romeo and Zöe - who until then had lived, due to his work in the aeronautical industry, five years in Toulouse, another two in Reunion Island, one in Washington and the last four in London, presented themselves in the studio at the end of 2022.
The difference with previous destinations is that Madrid now appears to be the place they have chosen to settle permanently. And they do so by acquiring a 151 m2 dwelling located on the top floor of a residential building constructed at the beginning of the 20th century in the Justicia neighborhood, near Gran Vía and Chueca, in the center of Madrid.
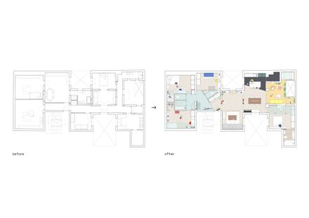
With a marked longitudinal character and a floor plan organized around three courtyards, paradoxically, despite being a penthouse, the dwelling does not establish notable links with the surrounding urban profile. Rather, as if it were the shell of an armadillo, it is closed and protected from the outside.
For this purpose, it has an extensive roof: a 200 m2 surface of undulating and opaque tiles, made up of 7 roofs of different slopes and lengths and consisting of a framework of wooden beams, many of them darkened, in poor condition and hidden behind a false ceiling.
Far from being a drawback, this condition is enhanced and becomes an opportunity, starting to design, so to speak, the house through the roof.
The alterations to the house are projected from the spatial and structural understanding of this particular cover in order to return to each of the spaces of the house, without exception, the prominence they had lost.
And this is done, first, by restoring it with metal reinforcements, and then practicing a series of strategically placed perforations to introduce natural light and ventilation in order to experience more deeply the reflections of the air, that is, ultimately, the passage of time.
The restructuring undertaken under the roof replaces a dark space compartmentalized in small rooms and corridors with a more luminous and fluid one; an exterior that defines an interior; a new landscape and domestic volume that is revealed through variable heights and changing light, and that overturns and relates each and every one of the rooms with the unique Velázquez sky of Madrid.
The interior of the house, which runs lightly under that great roof of sloping planes, wooden beams and skylights, is projected and defined as a continuous space with loosely defined, indeterminate limits between public and private.
Only the changes in flooring, from wood to ceramic, mark both the program and the use of space in each room.
The domesticity is articulated and designed considering the coexistence and different simultaneities in the day to day, as a set of large rooms where the daily actions of each of the members of the household, both individual and collective, take place.
The terrace, 15 m2 and located at the end of the 21 linear meters of the house, is, together with the skylights, the most direct source that floods the entire interior with light, and that, in addition to being a meeting space, also contains a jacuzzi for winter, and summer days.
The scale of the furniture that occupies the house is an echo of the different lives in the different places where Marion and Paul Franck have lived; a system of objects acquired here and there in which some as old as some chairs of the nineteenth century are intermingled with classic designs of the twentieth century or with others from IKEA.
CIEL is a renovation that responds to a singular and common urban situation, where the house does not interact in a decisive way with the city, but with its skies; a house that is a large technologically designed roof;
a shadow after all, capable of hosting, under a climate-controlled environment, a domestic program organized in a flexible way where a family can live a stretch, a few years or a lifetime, enjoying the passage of time and its fluctuations under the hypnotic cobalt blue ranges of the unique skies of Madrid.









































