Nómada Chiado Restaurant
ARCHITECTS
Spacegram
MANUFACTURERS
Reggiani, Artworks, Four Contract, Ian Yurisch, Mattiazzi, Mosa, MtWoods
PHOTOGRAPHS
Francisco Nogueira
AREA
150 m²
YEAR
2020
LOCATION
Lisboa, Portugal
CATEGORY
Restaurant
Nómada Chiado is the latest experimental destination to be inducted into Lisbon’s vibrant food scene.
Known for their innovative fusion food, Nómada’s restaurant owners approached Spacegram for a second collaboration with a desire to create an experiential and uniquely immersive space.
Their brief involved the transformation of a barren, vault-like interior characterised by domed structures into an enveloping, warm and sophisticated dining atmosphere.
Our response was to create three distinct yet complementary spaces through material articulation, textural richness and bold sculptural landmarks. The spaces are united by a set of overall drivers: a feeling of warmth and welcome; a priority for comfort; and a discrete brand of luxury influenced by Japanese minimalist design.
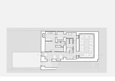
The first main space, which is taken up by the restaurant’s entrance and bar, draws visitors in through a tunnel, revealing a soft glow of muted light, simulating the ambience of a summer night. The tunnel leads to a cocktail bar and spiral staircase, each built from bespoke metal structures, with the staircase leading visitors to a lower dining level.
A naturally-lit, dramatically vaulted sushi bar defines the second eating area. Four tables occupy the linear space, in direct view of the restaurant’s sushi kitchen.
A custom-designed and built neon light fixture hangs from the ceiling – an installation conceived as a collaboration between Spacegram and Ian Yurisch.
After sunset, its luminescent rods – as a nomadic boat wire-frame evoking the nomadic experience of travelling – emit a warm amber hue across the intimate room.
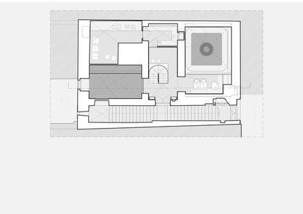
The restaurant’s signature space, known as the ‘cocoon room’, immerses visitors in an undulating, internal landscape of rippling forms and natural textures. he room is panelled throughout with woodwork produced by MtWoods.
The panels have been designed using a generative pattern – their mechanically carved ripples having been inspired by aquatic and ethereal elements occurring in nature.
Panelled corners articulate as double-curved segments, each having been delicately veneered by hand. Curved sofas accentuate the character of panelling, providing comfortable seating whilst adding to the intimate ambience.
Collectively, the panels coalesce to form an opening that frames a third space – one which holds an artwork representing nomadic travel by water across the globe.
The sculpture – a vortex ceiling piece produced by Artworks – emulates a constant, spiralling motion, capturing light and shadow as it moves in space.
Finally, a fourth room forms a cavernous, cosy private dining area with sight-lines into the larger cocoon room.
Echoing the textural and chromatic richness of the restaurant’s adjacent spaces, this room provides a comfortable, secluded zone for groups and special tasting events.
Throughout its interiors, Nómada Chiado is defined by its rusty-red hues – inspired by the Japanese shade known as aka, which denotes protection and celebration.
Natural materials including wood and marble proliferate throughout the spaces, with existing pine floor boards having been painted in a similar rust-red colour.
Rojo Alicante stone complements this minimal palette, its marmoreal stone combining earthy reds with white and grey veins.
The restaurant’s round tables and minimalist chairs have been custom designed by Spacegram, the latter using velvet upholstery in a vintage gold colour.
The variety of texture across the distinct spaces is reflected in strategically positioned mirrors, each punctuating and elongating the restaurant’s unique internal journey.

























