
Household Practice
ARCHITECTS
Felt Architecture & Design
DESIGN TEAM
Felt Architecture & Design
LEAD TEAM
Jasper Stevens, Karel Verstraeten
MANUFACTURERS
AGROB BUCHTAL, Wienerberger, Eternit, Fermacell, Firmax, Sapa Building System International NV, Sicis
PHOTOGRAPHS
Stijn Bollaert
AREA
345 m²
YEAR
2022
LOCATION
Ghent, Belgium
CATEGORY
Mixed Use Architecture, Residential Architecture
English description provided by the architects.
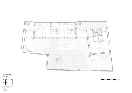
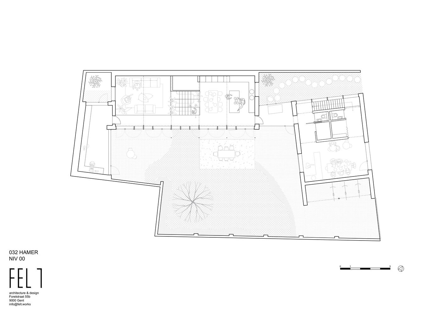
In a densely populated district, a narrow alleyway leads to an irregularly contoured parcel of land in the heart of the city block.
Once occupied by thirteen nondescript garage boxes, this space has undergone a transformative metamorphosis, giving rise to a contemporary ensemble - a single-family dwelling harmoniously integrated with a yoga studio and a cozy café.
Crafted with discerning foresight, the architectural composition elegantly positions two distinct volumes along the periphery of the plot, deftly maximizing the utilization of preexisting lofty partition walls. Delicate glass appendages interlink these volumes, enveloping a verdant city garden nestled within the plot's core.
This spatial configuration capitalizes on the plot's orientation, strategically framing captivating vistas while ensuring seclusion. Entrancing glimpses of the garden beckon from the alley, while discrete entrances delineate the studio and residential domains, preserving the holistic unity of the structure.
Both the residential and studio volumes boast dual levels of occupancy. Notably, the segment housing the café and yoga sanctum enjoys direct street access, serving as a buffer between the dwelling and its private sanctuary. Expansive windows offer unexpected panoramas, fostering a symbiotic relationship with the surrounding neighborhood.
The private dwelling seamlessly melds with the garden, thanks to a vast glass facade facing south, dissolving the boundaries between inside and out.
A cascading staircase, nestled within an airy void, serves as a link between floors, subtly defining living spaces. Pierced with square apertures, the flanking facades frame glimpses of verdant patios, infusing the interior with a sense of lush tranquility.
Employing prefabricated wooden components, the structure exudes a robust charm, with wooden ceilings and terracotta flooring imparting a cozy ambiance within. Externally, the chippered beige brick façade imbues the main volumes with a monolithic allure, seamlessly melding with the surrounding architectural tapestry.


























