Rathnelly House
ARCHITECTS
Studio Vaaro
DESIGN TEAM
Shengjie Qiu, Liam Hall
OFFICE LEAD ARCHITECTS
Aleris Rodgers, Francesco Valente-gorjup
ENGINEERING & CONSULTING > STRUCTURAL
Kieffer Structural Engineering
GENERAL CONTRACTOR
Whitaker Construction
ENGINEERING & CONSULTING > MECHANICAL
Rdz Engineers
MANUFACTURERS
Artemide, Fantini, Flos, FontanaArte, Forbes & Lomax, UD-vinduer
PHOTOGRAPHS
Félix Michaud
AREA
340 m²
YEAR
2024
LOCATION
Toronto, Canada
CATEGORY
Residential Architecture, Houses, Interior Design
Studio VAARO's Rathnelly House is a comprehensive and formally expressive renovation of an Edwardian-era semi-detached house in midtown Toronto.
The project not only enhances functionality and spatial fluidity but also expands the home significantly from within while respecting its existing footprint.
The clients, a professional couple with a young child, sought both a pragmatic and aesthetic transformation: to increase usable floor area, raise ceiling heights, and expand storage, all within a welcoming and distinctive design mediating between openness and seclusion.
Extensive structural interventions enabled a fundamental reordering of space. The result is an expansive plan that adds 140 m² (1,500 ft²), increasing the functional area of the home by almost 60%.
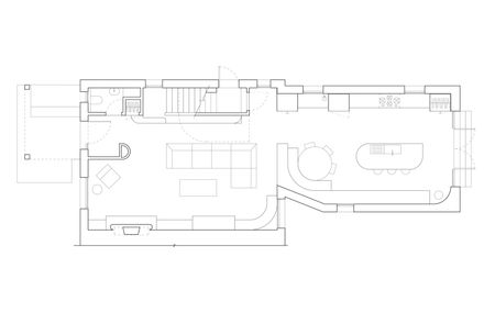
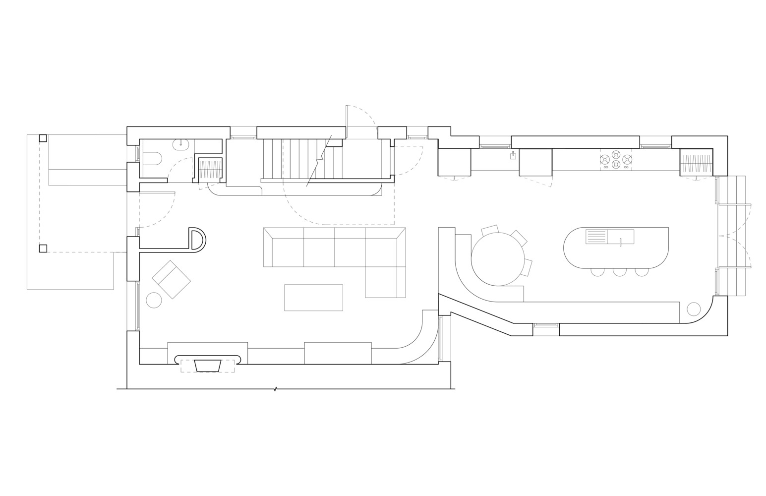
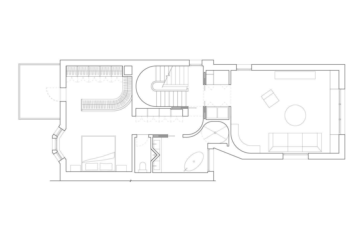
Designed for entertaining, the ground floor unfolds as a series of fluid yet discrete zones. A tactile palette of concrete, wood, stone, and plaster unifies the spaces, while sight lines, angles, and curves carve volumes, reflect light, and shape movement.
Bespoke details foster intimacy: built-in millwork seating curves around the living room, a closet door is cut to hug a rounded cast-in-concrete step as it opens, and custom oak knobs and pulls are stained to match the millwork, giving the impression that they are one with the surface.
The cast-in-place concrete floor forms a base from which sculptural elements rise, a curved dining booth nestled in kitchen millwork, a stair landing with integrated seating, a media console, and the fireplace hearth.
The dining booth replaces a traditional dining room, creating an intimate, informal gathering space. The tops of the concrete console and fireplace hearth align with the home's original ground floor level, subtly linking past and present.
Geometric interventions often serve multiple roles. A curved partition wall divides the living and kitchen areas, conceals ductwork, backs the dining booth, and integrates with cabinetry as a serving surface.
A large white column frames the vestibule, allows light to filter in through the front door sidelight, provides privacy, and conceals a niche for sitting and slipping on shoes.
Tall walnut-toned millwork along the east wall offers storage and material continuity from the foyer to the kitchen, where a monolithic pill-shaped island in matching wood anchors the space.
A custom oversized blackened-brass sink, designed to patinate over time, enriches the island's materiality.
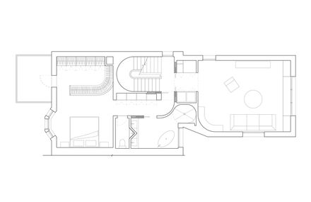
At the center of the home, the feature stairwell evolves as it ascends. On the ground floor, a monolithic wood guardrail emerges from its concrete base, integrating with the surrounding millwork.
A rounded ceiling cut hints at the staircase's transformation above, where it becomes a light, curvaceous form drawing daylight from an east-facing third-floor window.
The second floor houses a forest-green library with custom millwork and a built-in bench. In the primary bedroom, a monumental freestanding walk-in closet, crafted entirely from wood and designed to stop short of the ceiling, acts as a sculptural room divider.
The ensuite bathroom and powder room engage in an interlocking geometric dialogue: a triangular flush-mounted sink in the powder room finds its counterpart in a triangular column dividing the vanity in the ensuite.
The ensuite's pill-shaped shower and vanity are finished in plaster, integrating seamlessly with the rest of the bathroom.
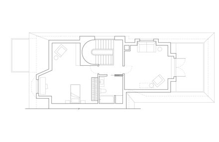
The rebuilt and extended third floor converts a cramped attic into a second bedroom, guest room, and bathroom, adding 32 m² (350 ft²) and ceiling heights approaching 3 meters (10 feet).
Additional height was gained on the lower floors by redistributing floorplates and lowering the basement slab by 1.2 meters (4 feet), while the ground floor was dropped to sit just one step above grade, improving accessibility and creating a more fluid indoor–outdoor threshold.
The formerly unfinished basement now combines recreational and utilitarian programs: a spa, lounge, and extensive storage for sports gear.
An oversized open shower lined in deep blue mosaic tile doubles as a mountain-bike cleaning station, complete with a hose bib and industrial drain. Radiant-heated polished concrete floors mirror those on the main level.
Exterior work maintains the home's connection to the neighborhood: the front roofline remains, and the façade is restored.
A new balcony and angled dormer expand the upper floors, while a new porch with integrated storage and seating defines the main entrance. Color, form, and material choices unify new and restored elements into a cohesive whole.

































