Insoil Showroom
ARCHITECTS
KKOL Studio
DESIGN TEAM
Euisun Yoon, Hyeji Bae, Sungwook Song, Hongbeom Ahn
PHOTOGRAPHS
Donggyu Kim
AREA
69 m²
YEAR
2025
LOCATION
Seodaemun-gu, South Korea
CATEGORY
Showroom, Detail
English description provided by the architects.
In The Interpretation of Dreams, a book that offers insights into the relationship between dreams and the subconscious, Austrian psychologist Sigmund Freud discussed the concepts of "manifest dreams" and "latent dreams."
Assuming the dreams we remember after we wake up are manifest dreams, the subconscious that acts as those dreams' original forms — or, in other words, our inner worlds — are latent dreams.
Our true objects of desire always remain latent rather than being manifested. The space devoted to Insoil, a ceramics brand, passes through the domain of the latent.
It visualizes invisible consciousnesses, such as the brand identity Insoil pursues or the desires of the two artists for a good life.
"The trivial yet not insignificant," "The delicate yet firm," "The orderly yet not overly artificial," "The dim yet luminous,""The mundane yet unfamiliar."
These five phrases were derived from peering into the domain of the latent and were leveraged as benchmarks for the spatial design of Insoil's first showroom.
What distinguishes attractive, easily absorbable, yet finely detailed writing that draws one's attention is subtle differences in vocabulary; translating this mechanism to the space was the main challenge.
The dynamics and rhythm communicated by the space feel cozy from the customer's perspective, but were designed to induce something more nuanced than simple comfort.
Instead, the space offers an ambiguous emotional distance, like a shallow dream that toes the line between reality and illusion.
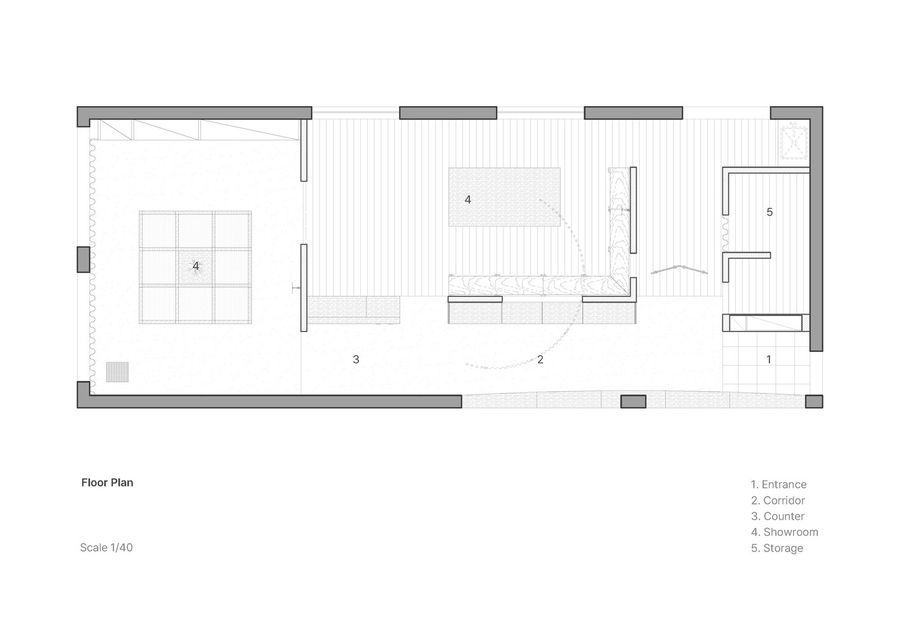
Upon first entering the space, a slightly bent shelf to the left of the entryway and a curved, metallic light fixture made of stainless steel hanging from the ceiling draw one's attention. These objects provide a tender, welcoming energy, fostering excitement about each of the disjointed areas despite being contained within a small space and encouraging movement.
The lighting is dim, but its softness was styled to flatter the space's natural light, creating beautiful lighting overall.
The space's main materials are birch lumber and plywood. To create a familiar yet strange scenery, the birch was colored with three types of oil stains, transforming an otherwise mundane material.
This was inspired by the variability in texture and color seen in "soil" — referenced in the name Insoil — depending on geographic area and climate.
During the early stages of design, we noticed that Insoil's brand messaging frequently used expressions like "the roots of life" or "to take root."
We wanted to embody this visually through a stand deeply rooted in soil, yet uncomplicated and simplistic, much like the honesty and humility of latent dreams as opposed to their distorted expressions in manifest dreams.
The stand with thick roots was constructed using a simple but durable binding method. The top was decorated with Insoil's handmade ceramic tiles.
This tabletop can be switched at any time, designed to be styled accordingly with seasonal changes. Similarly, the stand with thin roots was created using a simple binding method that was best suited for neatness and durability.































