Forn Lleva't Bakery
ARCHITECTS
Quim Olea · Estudi D'arquitectura
PHOTOGRAPHS
Pol Viladoms
AREA
70 m²
YEAR
2025
LOCATION
Avinyonet de Puigventós, Spain
CATEGORY
Renovation
English description provided by the architects.
Forn Lleva't is the transformation of an old warehouse on Carrer dels Fossos, in the historic center of Avinyonet de Puigventós, into an artisanal bakery that revives the town's bread-making tradition and restores its social and cultural role.
More than a simple renovation, the project is conceived as a sensitive reading of place—an architecture that listens, interprets, and supports rather than imposes. The intervention treats the existing structure not as a blank canvas but as a living material archive, where memory, texture, and craftsmanship shape the spatial and sensory experience.
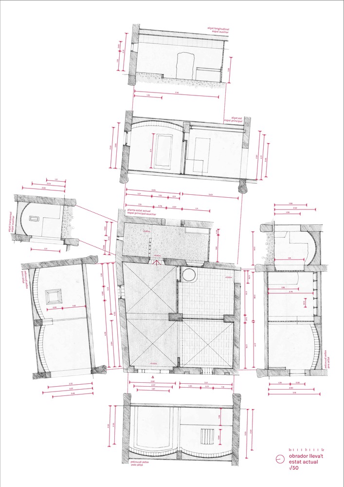
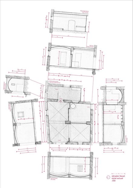
The first and main area, located at the corner between Carrer dels Fossos and Carrer Bellaire, is a large open volume supported by a single central column and covered by three ceramic vaults combined with a concrete beam-and-slab ceiling.
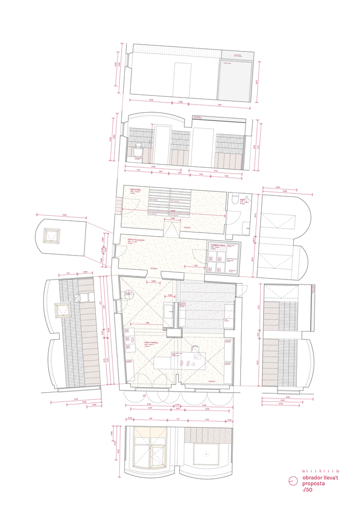
The design unfolds as a sequence of three interconnected spaces, each with its own scale, construction system, and atmosphere, yet all composing a coherent and continuous spatial narrative.
This generous space forms both the physical and symbolic heart of the bakery. It accommodates the essential activities—kneading, shaping, and baking—while maintaining an open and undivided geometry that makes the craft process visible from the street.
The space thus becomes a stage for the act of breadmaking, turning the everyday work of artisans into a shared and transparent ritual.
From this central workshop, the project transitions into a second, narrower bay with a ceramic half-vault, containing the fermentation chamber and auxiliary work zones. The continuity of materials and proportions ensures a natural functional flow.
Finally, the sequence ends with a third, slightly wider space, accessible from Carrer Bellaire, roofed by a stone and lime-mortar half-vault. This last area accommodates storage and sanitary facilities—logistical supports that maintain the efficiency of the whole without interrupting the project's spatial rhythm.
Throughout, the intervention demonstrates deep respect for the existing structure. Original stone walls, irregular surfaces, and the patina of time are preserved and highlighted.
Rather than reconstructing, the architects clean and repoint to reveal the authentic material essence of the place. The result is an architecture that reveals instead of conceals—a quiet collaboration between old and new.
New elements are introduced through a language of constructive honesty and restraint. The continuous polished concrete floor, subtly tinted in earthy tones, provides visual unity and warmth.
The walls are articulated in two horizontal bands: a lower base of large-format ceramic pieces (up to 90 cm high) for durability and easy cleaning, and an upper band of small white glazed tiles up to two meters high that enhance brightness and elevate daily gestures.
Openings are maintained to preserve the building's relationship with the street, with new dark-stained wooden carpentry that harmonizes with the palette. The main entrance, a convertible window-door, acts both as a sales counter and as a threshold that blurs the boundary between interior and exterior.
The interior layout follows a circular logic around the central column, ensuring an intuitive workflow free of crossings. Mobile beechwood tables allow flexibility, while fixed stainless-steel elements organize cleaning and support areas.
The oven—placed beneath the concrete slab—anchors the space both functionally and symbolically, its location permitting a discreet technical ceiling while preserving the purity of the vaulted volumes.
Ultimately, Forn Lleva't is an architecture of service—one that refines rather than invents, collaborates rather than imposes. Through material sincerity, spatial clarity, and contextual empathy, it transforms a modest warehouse into a place of production, encounter, and memory.
By bringing the act of breadmaking back to the street, it reactivates collective life and reaffirms architecture's power to sustain heritage, transmit knowledge, and weave community.












