Norma Restaurant
ARCHITECTS
Hugosantoalha
LEAD ARCHITECT
Hugo Santoalha
PHOTOGRAPHS
Francisco Ascensão, Marta Machado
AREA
205 m²
YEAR
2023
LOCATION
Guimarães, Portugal
CATEGORY
Hospitality Architecture
English description provided by the architects.
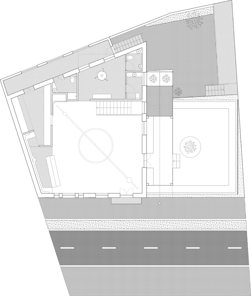
Two square rooms are essentially the same, though one sheltered, one exposed.
They feel drawn to one another, so while the first aims to expand as much as possible in every direction, almost disintegrating towards the sky, the second defines a limit in what seems to be the promise of a slender roof and a thick brick wall turned inward.
Despite these intentions, both rooms remain fundamentally as they are, even if a little closer to each other.














