Architecture Museum, Xinyi Street Of Coral Stone
ARCHITECTS
A.S.Studio
LEAD ARCHITECT
Chen Kuan Fan
DESIGN TEAM
Chen Yun Yu
PHOTOGRAPHS
OS Studio
AREA
566 m²
YEAR
2025
LOCATION
Tainan, Taiwan
CATEGORY
Cultural Architecture, Renovation
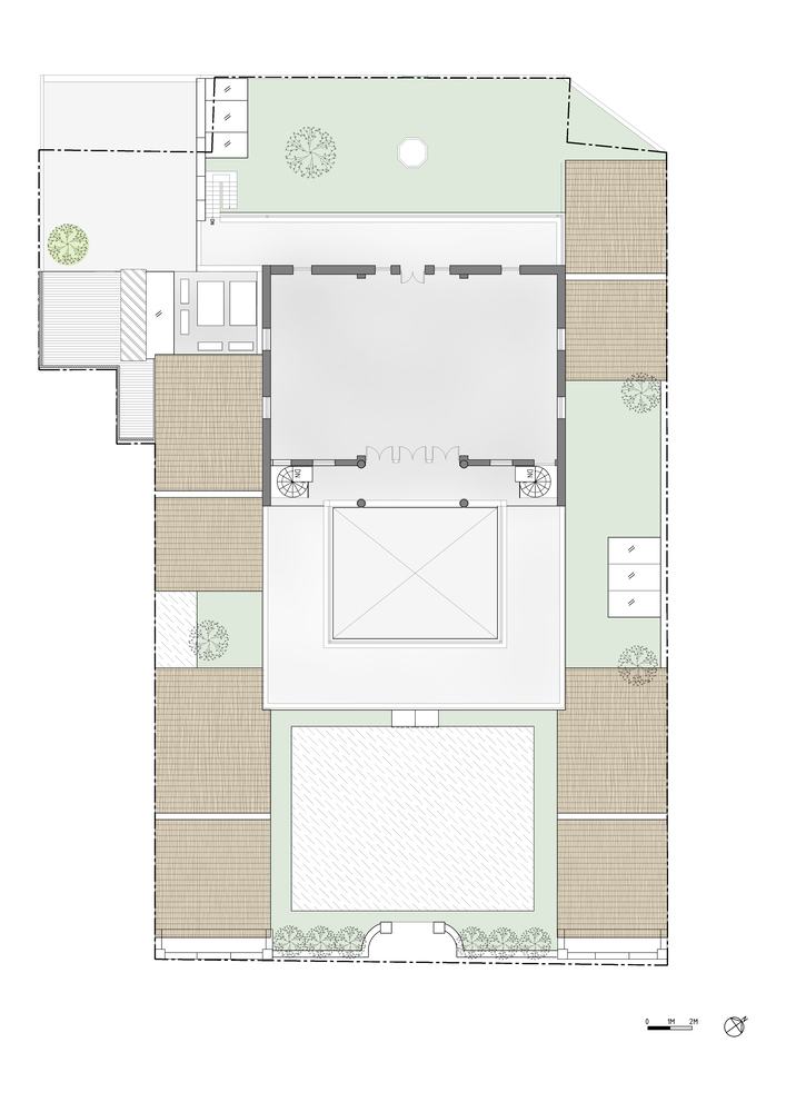
Situated in the heart of Tainan's historic Wutiaogang Cultural District, the Architecture Museum, Xinyi Street of Coral Stone—located at No. 13–17, Xinyi Street—stands near key cultural sites including Dueyue Gate, Jifu Temple, and the former Xin Fuxing Textile Factory.
Originally built as the residence of Qing military scholar Hu Cheng-Yuan, it was reconstructed in the 1930s by Huang Sun-Kuai, combining traditional southern architecture with modern-era ornamentation.
The complex features two elongated townhouses and a central courtyard in the classic siheyuan layout, highlighting axial symmetry and open spatial layering.
Years of neglect and alterations, however, left the structure in severe disrepair, requiring urgent intervention.
The revitalization follows a minimal intervention approach, reinforcing the structure while preserving its historical presence.
A new transparent façade creates a spatial threshold—where coral stone walls meet glass and white volumes—framing the aged architecture behind like a filtered memory.
Natural light, greenery, and carefully positioned voids evoke the unique sensory atmosphere of Tainan, where past and present engage in quiet dialogue.
On the upper floor, a modern wooden folded-plate roof redefines the spatial rhythm. The ridgeline, resembling a pulsing wooden heart, introduces light and breathability into the structure.
Within, old and new materials coexist in harmony, where timber grains and stone textures narrate a story of transformation and cultural continuity.
The Architecture Museum, Xinyi Street of Coral Stone, is not merely a restored building—it is a living testament to the power of sensitive regeneration. Rooted in local history and reimagined through contemporary design, it reflects Tainan's evolving identity and celebrates its architectural heritage.




















