
Earthrise Studio
ARCHITECTS
Studio Mcw
DIRECTORS
Greg Walton, David Mcgahon
CONCRETE
White And Reid
RECLAIMED TIMBER
Ted Todd Woodworks
METALWORK
Sunbeam Group
MANUFACTURERS
Clayworks, Karven Roest , Piet Boon , Tala, Watermark Collection
GENERAL CONTRACTOR
Hexagon Construction Ltd
JOINER
Hexagon Construction Ltd
PHOTOGRAPHS
Lorenzo Zandri
AREA
101 m²
YEAR
2021
LOCATION
London, United Kingdom
CATEGORY
Renovation, Offices Interiors
English description provided by the architects.
Studio McW has completed the revitalization of a converted warehouse apartment in East London for climate activists and filmmakers, Jack Harries and Alice Aedy.
Arranged over two floors, the live-work space was designed to seamlessly balance rest and relaxation with the busy operations of Harries and Aedy's media company, Earthrise.
Tucked within a historic shoe factory originally constructed in 1924, Studio McW took a light touch approach to enhance the buildings' original features including large steel windows and trusses, exposed concrete beams, and a double-height pitched roof with overhead glazing.
Harries and Aedy briefed the architects to balance the historic building fabric with a new, natural interior palette, improve spatial flow and incorporate abundant storage throughout.
The couple wanted a flexible space to host friends, dinner parties, work events, photoshoots, record podcasts, and support weekly team meetings.
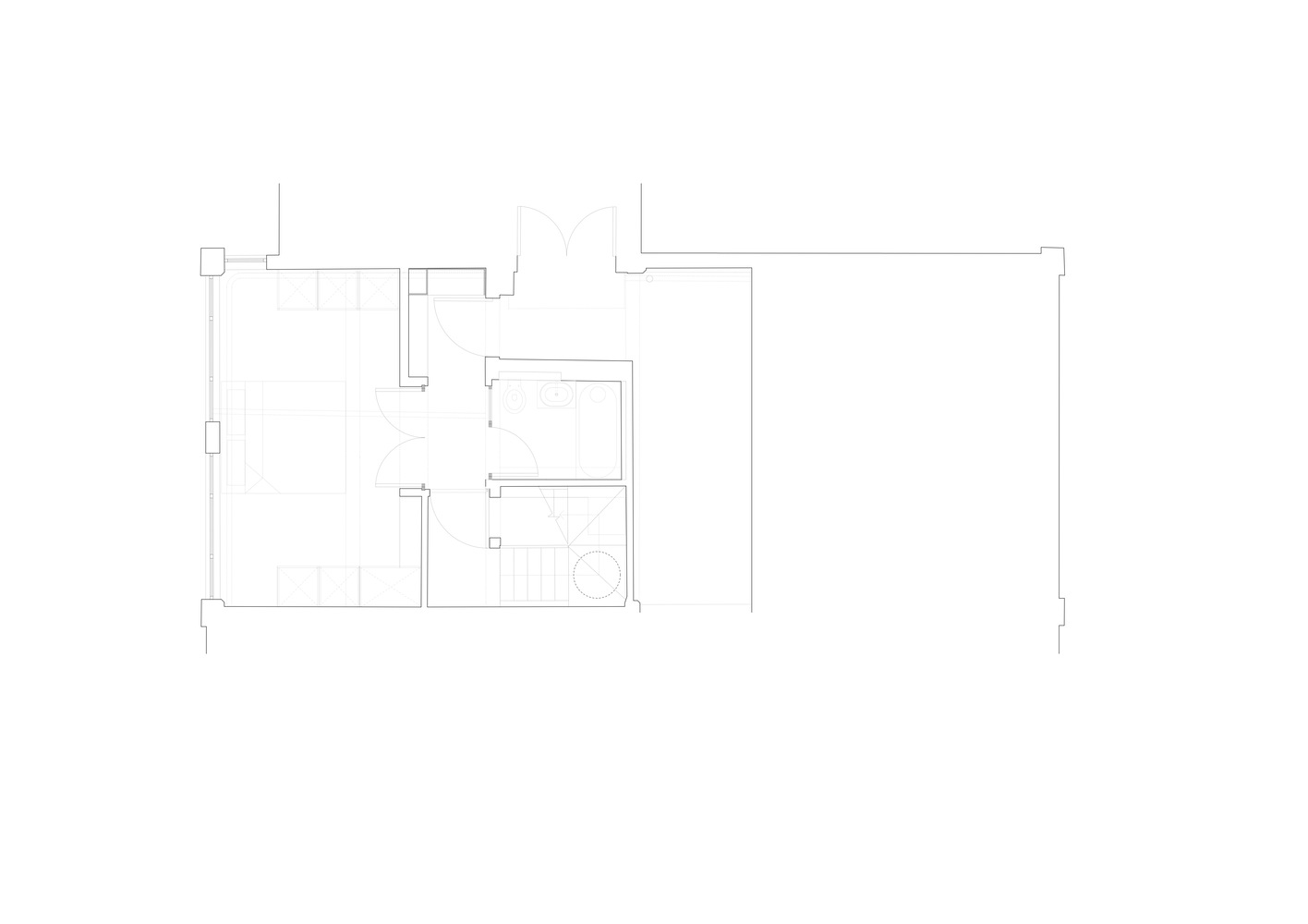
Studio McW redesigned the entrance level, opening up the existing partitioned bedroom and dressing room to create a large aperture to draw light through the new glazed internal wall to the bathroom and utility space.
Reclaimed timber stairs lead up to an open-plan living space. The architects stripped back a maze of redundant overhead services, opening up and increasing the sense of volume above.
The floor plan was constricted by a large, defunct concrete doorway that created a bottleneck opposite balustrading.
Studio McW removed this impediment and reorganized the layout, shifting the kitchen to the rear of the apartment to create flexible yet distinct zones for work, rest, and dining.
Studio McW anchored the bright neutral interiors with custom oak and concrete joinery, cast in situ. The vast concrete island stands steadfast in the kitchen, doubling as a dining bench.
A long concrete sideboard with oak cabinetry and shelving runs the full length of the southern elevation; a multi-use feature offering seating, storage, and display for Harries and Aedy's collection of art, photography, cameras, and treasures collected throughout the couple's extensive international travels.
Much of the artwork and prints decorating the interiors were created by the couples' friends, each piece imbuing the space with a strong narrative of friendship, creativity, and passion.
True to Studio McW's signature approach to craftsmanship and wellbeing, Earthrise Studio is finished with toxin-absorbing, matte clay walls which unify the two stories, and a custom black mild steel balustrade allows light to permeate the floor below.


























