House Renovation In Gracia
ARCHITECTS
Parramon + Tahull Arquitectes
MANUFACTURERS
Hansgrohe, JUNG, Duravit, Grohe, Daikin, FARO Barcelona, Franke, Irsap, Jueric, Marset, Ondarreta, Vaillant, WISA, Wow Design
PHOTOGRAPHS
Judith Casas Sayós
AREA
753 ft²
YEAR
2022
LOCATION
Barcelona, Spain
CATEGORY
Houses, Renovation
This is a house for a family of four on the top floor of a 1900's apartment building located in the center of the Gracia district in Barcelona.
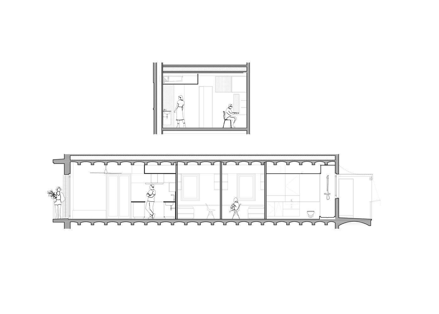
The wooden beams are the only original element (a previous refurbishment had already removed all the original woodwork, floors, and paneling). They are stripped and preserved.
A new continuous flooring, the same for the whole house, combines the color white with fired clay, small pieces to create a greater sense of spaciousness.
The three façades remain almost unchanged, but the aluminum windows are replaced by wooden ones, like the ones that originally existed.
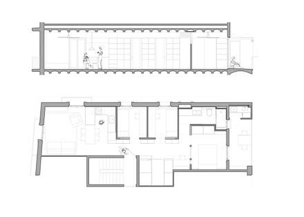
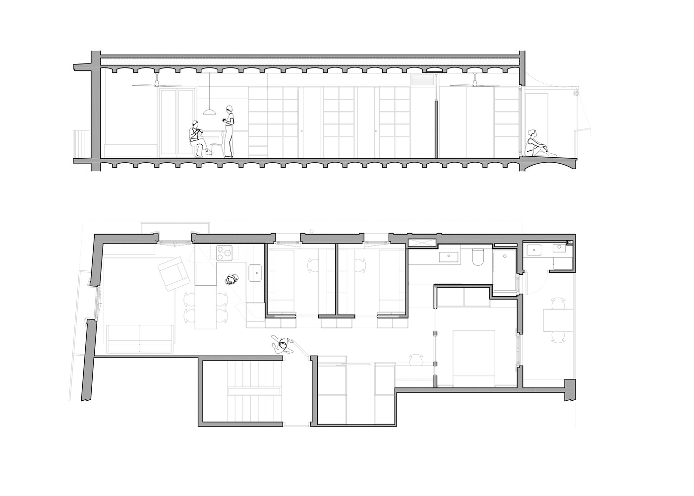
Within this perimeter (ceiling, floor, façades) a new wooden "box" is built which "outside" includes the kitchen, shelves, and storage. Inside, the bedrooms of the teenage daughters are "enclosed".
At one end of the floor is the common area (the living room and dining room). At the opposite end is the more private area (the parents' bedroom and bathroom).
Although the available surface area is reduced, each space is designed with precision to allow the interior routes to be fluid and to allow natural light to reach every corner of the house.
The large volume for storage, essential in a permanent family home, has also been designed in detail.
A large dressing room storage room occupies the center of the house and a desk corner (stolen from the corridor) is reserved for occasional teleworking.
All the furniture is bespoke, using the same range of colors and materials to give a sense of serenity and order to the whole.
Materials are natural and sustainable (marble, mosaic, wood). Thermal comfort is achieved at all times of the year with different strategies: heating with water radiators in winter, artificial air conditioning and cross ventilation in summer, and ceiling fans in between seasons.

















