Dirnbergergut Building Ensemble
ARCHITECTS
Moser Und Hager Architekten
LEAD ARCHITECT
Michael Hager, Anna Moser
MANUFACTURERS
BodenPro GmbH, HABAU, Metall Danner
PHOTOGRAPHS
Gregor Graf
AREA
522 m²
YEAR
2024
LOCATION
Austria
CATEGORY
Houses, Renovation, Sustainability
HISTORY AND TASK
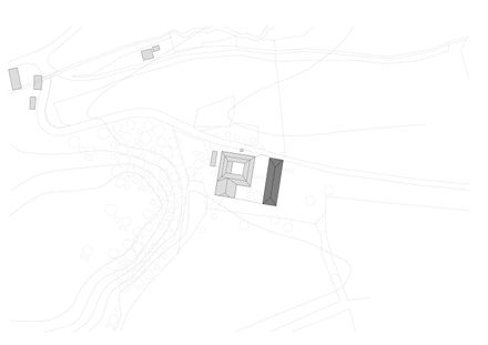
The initial situation before the conversion was a historic farmstead in the area north of the Danube.
The existing ensemble is characterized by two separate building parts: a courtyard area, which was formerly used as living space, and an inn in the house floor (now disused), and an old barn, which had initially served as a pigsty since the 1970s and later as a partially rented area.
The task was to transform the two building units into three equivalent residential units for several generations, whereby the historical structure of the barn was to be preserved and integrated into the new usage concept.
CONCEPT
The concept focused on preserving and exposing the existing structure of the former barn.
The massive brick pillars and the roof, which characterize the barn, remain as load-bearing elements and were included in the planning.
The new building is positioned within the barn in the form of an inserted structure, whereby it is positioned at a distance from the existing building.
Only the existing roof structure is integrated into the new building so that it remains visible in the interior.
The deliberate offset of old and new creates a threshold area between the interior and exterior space and opens up new perspectives, both through views of the surrounding landscape and insights into the historic construction.
The new building blends in architecturally and, in interaction with the preserved brick pillars, opens up spaces in between.
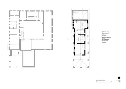
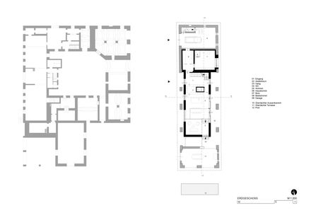
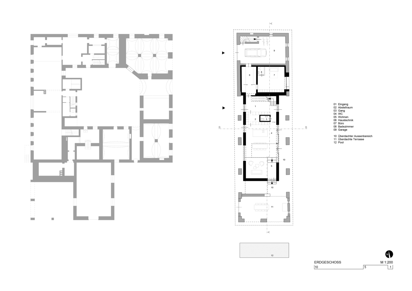
IMPLEMENTATION
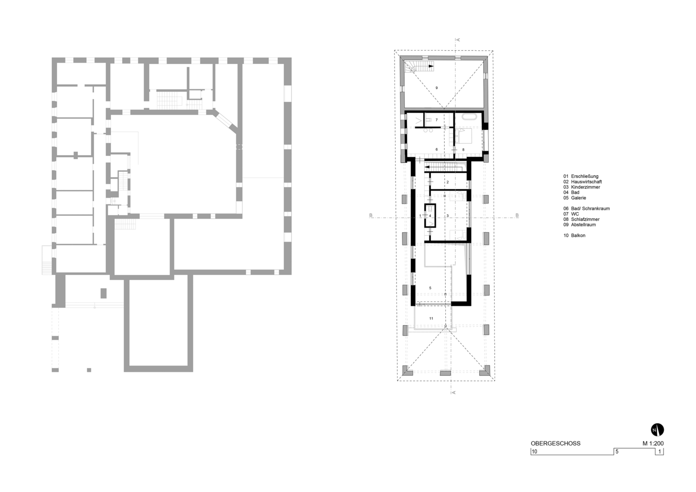
The open integration of the new building into the existing structure is also reflected in the open floor plan:
It is organized around a central infrastructure block that combines all the necessary technical installations.
The façade of the new building is deliberately kept simple in order to create a harmonious contrast to the massive brick pillars of the barn.
Covered outdoor areas extend the living space and promote the connection between indoor and outdoor spaces.
The new building impresses with its restrained, simple appearance, which interacts harmoniously with the historic brick pillar structure of the barn.



























