Renovation of Sofia's apartment
ARCHITECTS
Carolina Recondo, Pedro Ignacio Yáñez
PROGRAM
Renovation Apartment
MANUFACTURERS
Dralas Deco, Hande Estudio, Luna/Oks, Nardelli Carpinteria, Quadri
PHOTOGRAPHS
Pedro Ignacio Yáñez
AREA
753 ft²
YEAR
2024
LOCATION
Argentina
CATEGORY
Apartments, Renovation, Apartment Interiors
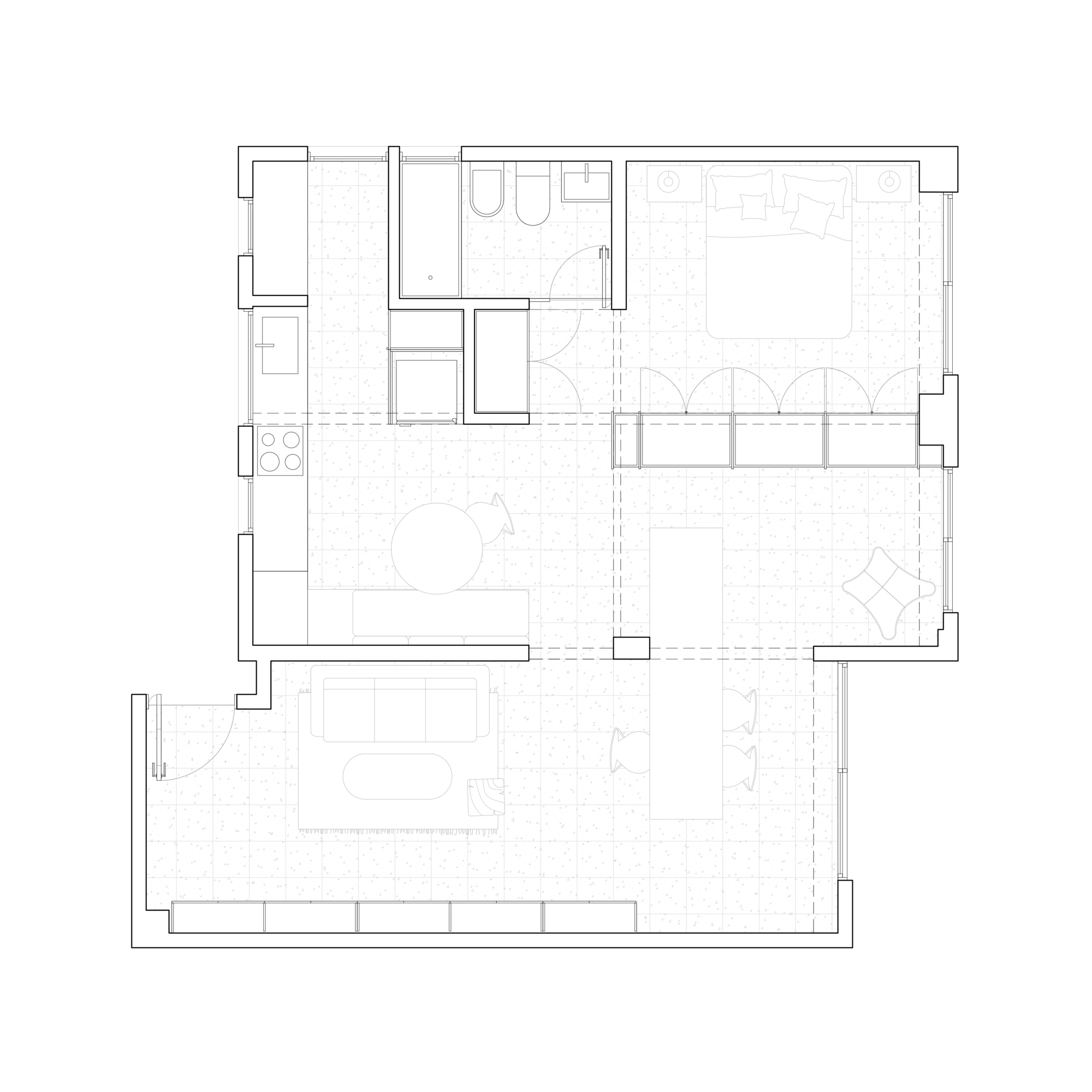
A 70m2 apartment in the City of Buenos Aires, designed to house a typical traditional family, has been inhabited for several years by a young woman who lives and works in it.
Does it make sense to maintain compartmentalized spaces without cross ventilation when the activities carried out in each of these are often the same?
Working from bed with a laptop, napping in an armchair, writing in the kitchen.
Does an apartment with a bathroom and a toilet for one person make sense? Two rooms? A door between the kitchen and the laundry room? Another to close the bedroom?
The project then focused on designing a scenario that was specific enough in relation to the owner's routine, but at the same time, generic enough to be able to adapt it in the event of a permanent or eventual and sporadic change of use, such as a visit from a family member or a celebration of a birthday.
The reform is then proposed in two directions.
On the one hand, demolish as many walls as possible, unifying the environments, providing them with greater lighting and ventilation.
Thus the department gains spatial continuity, more air and more light with these actions.
On the other hand, the material decision. a single sole, a single type of wood, a single lighting fixture that is repeated over and over again.
The emergence of the white granite mosaic, placed before the artificial materials that preceded it, almost like a declaration of principles, is completed with the operation of uncovering the reinforced concrete structure.
Three pieces of incense wood: The wardrobe, the kitchen bench and the chest of drawers, Together with an extensive modular metal bookshelf, articulate the space and provide support for Sofia's new way of living.
























