
STUDS Hair Salon
ARCHITECTS
Nevertheless / Yusuke Sagawa Architects
LEAD ARCHITECT
Yusuke Sagawa
BUILDING FUNCTION
Beauty Salon
PHOTOGRAPHS
Yosuke Harada
AREA
64 M²
YEAR
2024
LOCATION
Japan
CATEGORY
Wellbeing
Text description provided by architect.
The planned building is a three-story steel-framed structure located just a few minutes' walk from Kumagaya Station. Built approximately 60 years ago, the building has served various purposes, with the first and second floors being used as tenant spaces.
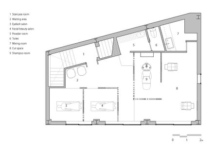
About two years ago, the owner rented the first floor and opened a beauty salon. However, as the space became too cramped, they decided to renovate the second floor. The owner's request was to create a new esthetic space on the second floor, in addition to the hair salon, to accommodate facial treatments and other beauty services.
The second floor had previously been used as a restaurant and a mahjong parlor. The existing mosaic-patterned flooring still bears cigarette burns and scratches, which create an intriguing texture reminiscent of the accumulation of time.
The steel beams also retain traces of the construction process, including the footprints of the workers and layout markings. The initial goal was to preserve as much of these existing materials as possible while creating a new space using fresh materials.
The new materials were not chosen to contrast with the existing ones but rather to harmonize with them and reflect their presence. The salon specializes in color styling, so it was important to select materials that would enhance the colorful styles and hairstyles of the customers. This led to focusing on gray and silver.
Art historian Atsushi Okada discusses the appeal of gray—a color generally considered impersonal and anonymous—by referencing historical philosophers and painters: "However, from a different perspective, gray can be seen as a color open to infinite nuances.
It possesses the potential to express subtle gradations, the play of light and shadow, and delicate variations between light and dark.
Precisely because it lacks any inherent characteristics, gray holds the latent power to take on any color." (1) Okada also states, "The positive significance of gray lies in the fact that it cannot be definitively described as one specific color.
Instead of asserting itself, it reflects and returns what it receives from others. Gray embodies individuality without personality, impersonality with character." (2)
Although these statements primarily concern gray, the concept of a reflective, non-personal existence that can take on any color could also apply to silver.
In other words, gray (or silver) can be considered a special color that does not have a fixed hue but rather reflects its environment and those around it. With this in mind, we used square studs (45 mm x 65 mm)—typically employed as wall substrates—for the partition walls in the renovation.
These studs are inexpensive and, as industrial products, have a relatively consistent quality. The galvanized steel sheets subtly reflect the surroundings, and the slight differences in the finish of the galvanization create delicate gradations.
The plan required separating the hair salon from the esthetic space. However, the owner also wanted customers visiting one area to become interested in the other.
To achieve this, we designed the partition walls like louvers: in areas where visibility needed to be blocked, the studs were densely arranged; in areas where a sense of presence was desired, they were spaced more sparsely. This design allowed the walls to function as both partitions and louvers.
For the raised floor finish, we used gray vinyl tiles. The walls were painted in two shades of gray—one slightly lighter than the floor and one almost white.
These subtle variations in tone and reflective qualities cause the space to shift gently with changes in light and human movement.
Since the use of materials and structure up to this point felt rather rigid, we incorporated acrylic panels as accents between the studs. When sunlight enters through the windows, shadows from the acrylic stretch like lines across the gray floor.
The acrylic panels are simply clamped to the studs with magnets, allowing easy removal and replacement. We envision changing the color of the acrylic according to seasonal themes.
In this project, we consciously used gray and silver materials. Including previous projects, I have employed gray and silver in many architectural works.





















