TEC Energy Office
ARCHITECTS
Mrdk
CONTRACTORS
Hu-nic Construction
MANUFACTURERS
And Lighting, Arancia Lighting, Artemide, Ctl Leather, Edison Lighting, Flos, Found, Hamster, Haworth, Jussaume, Kravet, Mutina, Unik Parquet
DESIGN TEAM
David Dworkind, Benjamin Lavoie Laroche
ARTWORK
Caravane Studio
FLORALS
Studio Sveja
PHOTOGRAPHS
Alex Lesage, David Dworkind
AREA
3330 Ft²
YEAR
2024
LOCATION
Montreal, Canada
CATEGORY
Renovation
Text description provided by architect.
Nestled within the I.M. Pei's iconic Place Ville Marie tower, TEC Energy's new offices blend the timeless charm of the 1960s aesthetic with the sleek lines of contemporary design.
This project reimagines traditional open-plan workspaces, crafting an atmosphere that is both welcoming and refined.
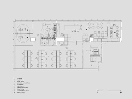
Upon entry, visitors are beckoned through a vestibule enclosed by a geometric screen wall composed of blocks inspired by the brutalist aesthetic of a nearby power station.
This nod to Montreal's architectural history serves as a distinct gateway into the workspace.
The versatile kitchen and dining area, strategically positioned to capture natural light and offer sweeping vistas of downtown Montreal, serves as a hub for meetings and collaboration.
With the urban skyline as its backdrop, this space becomes the dynamic centerpiece of the office.
Promoting collaboration and interaction, the open-plan layout incorporates various breakout areas. A secluded lounge area designed for home comforts is juxtaposed with a greenery-filled nook and adjacent seating, fostering dialogue among colleagues while delineating workspaces.
Additionally, an adjacent phone booth offers privacy and uninterrupted workflow for employees.
Acoustic considerations, vital for a conducive work environment, are seamlessly integrated throughout the space.
Suspended felt baffles, echoing the rhythm of neighboring office towers, help to dampen ambient noise and conceal the exposed ceiling structure.
Tectum acoustic panels, used as wainscoting in the open office, are broken up by 3 pieces of art by Caravan studio abstractly spelling out T.E.C.
The two private offices, nestled in the glazed corner of the suite, draw inspiration from the distinctive form and materials of the Place Ville Marie Tower.
Utilizing travertine and aluminum, these spaces exude a timeless elegance that resonates with the site's iconic identity.



























