House in Polônia Street
ARCHITECTS
Gabriel Kogan, Guilherme Pianca
LIGHTNING DESIGN
Azimute/lightsource
MANUFACTURERS
Florense, Artsteel, Belas Artes, D'frança, Dellano, Ns Brasil, Neobambu, Plancus, Mado
LEAD ARCHITECT
Gabriel Kogan, Guilherme Pianca, Clara Werneck
INTERIOR DESIGN
Susanna Crestani
LANDSCAPE
Rodrigo Oliveira
INCORPORATION
Mira Properties
CONSTRUCTION
Fairbanks & Pilnik
FURNITURE SOFA RUG COFFEE TABLE AND DINING CHAIRS
Atrium, Minotti
FURNITURE DINING TABLE ARMCHAIRS SIDE TABLE
Etel
MANAGEMENT
Fitplan
STRUCTURES
Leão & Associados
CLIMATE
Greenwatt
CONCRETE
Vertices
INSTALLATIONS
Zamaro
YEAR
2025
LOCATION
Brazil
CATEGORY
Houses
Text description provided by architect.
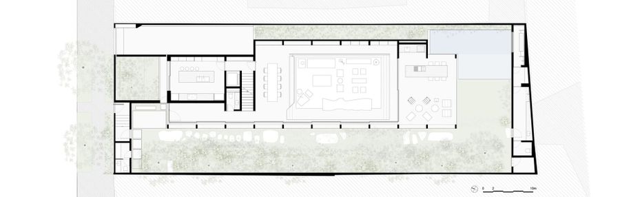
Architecture Seen from Nodal Points - Upon entering the 42-meter-deep and 15-meter-wide plot, the garden unfolds at the front, while the house stands to the left, parallel to the 5-meters-setback.
This first view of the house was designed as a nodal point for spatial perception.
From there, the journey through the house is structured as a sequence of framed views that emphasize the space’s frontality and depth, minimizing diagonal perspectives.
A SECTION OF AN INFINITE GRID
We envisioned the house as a kind of prototypical occupation that could extend across the entire territory.
Modules, each measuring 2.90 meters wide and 3.00 meters high, repeat along the concrete façade in a two-story structure.
The blind end walls at the front and back create an abrupt interruption in this continuity, signaling the possibility of infinite expansion.
Repetition is central to minimalism, but here, we propose an alternative interpretation of this concept in a more tropical and warm version.
FINISHES AS STRUCTURAL ELEMENTS
We sought to move in the opposite direction of decorative trends that seek for several layers of overlapping materials, disconnected from architectural function.
In this house, we aimed to converge function, materials, and finishes. Wooden panels serve as doors or bookshelves, for example.
The cementitious floor is simply the floor itself. The glass in the frame is the window itself. The concrete is the structure itself, and so on.
Even in spaces such as the bathrooms and kitchen, material choices prioritized ease of maintenance, cleanliness, and durability, minimizing arbitrary design decisions.
BELOW THE GARDEN LEVEL
When seated on the sofa in the living room, one can look out at the garden at ground level. This creates an unusual and surprising relationship between interior and exterior.
Additionally, by lowering the floor, we achieved a ceiling height 55 centimeters higher in the house’s social area, enhancing the sense of spaciousness—without altering the façade module or creating an overly elevated structure.
This maintains both the overall horizontal proportions of the building and the square proportions of the external modules.
THE WOODEN CEILING
Architects often establish design premises in their projects. For this house, the most complex one was undoubtedly maintaining the wooden ceiling in the living room completely uniform — without visual noise, perforations, light fixtures, or air conditioning vents.
Besides creating a unique atmosphere, this approach encourages indirect, reflected lighting, which is always more pleasant and cozy.
Air is supplied through the floor and returned via a discreet gap along the window frame. The living room becomes a pure wooden box inserted within a concrete grid.
A GARDEN OF TREES AND STONES
The living room fully faces the garden (created by the landscape designer Rodrigo Oliveira) where raw heavy stones carve paths through the tropical vegetation.
Viewed from the social area, the greenery appears to be projected inward, creating an introspective, contemplative experience.
The concrete structure establishes a relationship of both tension and harmony with the garden.
We conceived it as a controlled enclosure around the house, an architectural promenade that enables carefully curated perspectives.
A CONVERGENCE OF ARCHITECTURAL INFLUENCES
We brought our experience from previous projects and our studies of architecture from other countries, such as Japan, England, Switzerland, and Portugal.
We believe the project represents a meeting of different architectural schools — something that the new generation of Brazilian architects, not just us, has been striving to develop.
This is no longer the São Paulo School (also known as the Paulista School) as it was understood for decades, rooted in formal evolutions of modernist masters.
ONE MORE FLOOR
Above the double-layered vertical concrete grid, an additional floor was added.
We calculated sightlines to ensure this volume remains imperceptible from the garden.
The intention was to preserve the façade’s sense of horizontality, uninterrupted by this final level, which was included to meet the client’s programmatic needs. A Transposition of
STRUCTURAL SYSTEMS
The early versions of this project were designed with a wooden structure. However, due to a client request, we switched to concrete.
One could say that the initial wooden concept already embodied a logic inherent to concrete construction.
Nevertheless, some details initially conceived for wood, such as floor-detached columns, were retained in the final architectural design, as a memory of the process.
MATERIAL PALETTE
Throughout the project's development, we curated a material palette.
The façade’s concrete was mixed with a small amount of pigment, giving it a warmer tone.
From this starting point, the palette evolved into a reddish atmosphere that contrasts with the deep green exterior.
We built numerous prototypes on-site to understand how the materials would behave in the actual space, striving for a meticulous articulation of tones.









































