Cultural Centre in Bourg-la-Reine
ARCHITECTS
Ooaa (Oficios Asociados)
LEAD ARCHITECTS
Manuel Nesta, Esteban Rodriguez
MANUFACTURERS
Autodesk, Chango, Fv, Idea Iluminacion, Ingeniería Gastronómica, Ferrum
TEAM
Nicolas Calivari, Florencia Massa, Pablo Lopez
PARTNER IN CHARGE
Santiago Vaca Guzman
CONSTRUCTION
Oficios Asociados (Ooaa)
LIGHTING
Arturo Peruzzotti
PROGRAM
Restaurantes & Bares
LOCATION
Buenos Aires, Argentina
CATEGORY
Restaurant
The project is taking place in the neighborhood of Núñez in Buenos Aires, in a context of changing density and uses that often result in the repurposing of existing buildings.
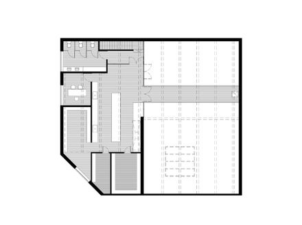
In the case of Ness, we transformed a corner warehouse used as a storage space into a restaurant, bar, and production kitchen.
On the outside, the austere character and simple volume formed by nine-meter-high walls were maintained, with some small openings on the upper floor and three shutters on the ground floor that served as access to different sectors of the warehouse.
Inside, the load-bearing walls that subdivided the ground floor were replaced with metal beams and columns, allowing for the space to be opened up and reorganized around the new service core, and through a system of metal carpentry, different usage forms were configured, redefining the relationship of these new spaces with the public.
In the large triple-height room, a series of elements are key to providing character and scale: the cooking island and its exhausts, the freight lift, the olive tree, and the zenithal light coming from the skylights, which, with their movement and color variation, contribute different scenes while establishing a particular relationship with the outside.
The design of the furniture and smaller-scale objects has a strong functional character while also aiming to contribute to the whole with their details and materiality, as if they were the smallest pieces of a larger system that gains dimension in the relationship and collaboration of the different mentioned elements.






































