ARCHITECTS
Hito.lt Studio
LEAD ARCHITECTS
Sigita Kundrotaite - Savicke
DESIGN TEAM
Hito.lt
LANDSCAPE ARCHITECTURE
Ula Maria Studio
PHOTOGRAPHS
Lukas Mykolaitis
AREA
542 M²
YEAR
2023
LOCATION
Kaunas, Lithuania
CATEGORY
Public Architecture
Vynvytis Studio is an unusual space located in the former cultural center of a paper factory in the industrial district of Kaunas, Petrašiūnai.
This project is designed for various activities – meetings, celebrations, creative workshops, and other events that require a flexible and adaptable environment.
The two-story structure allows the spaces to be used together or separately, depending on the nature of the event or the needs.
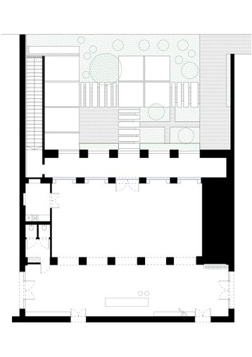
Functionality and flexibility were the key design principles, which are also reflected in the concept of the inner courtyard.
The courtyard was created as a natural extension of the interior spaces, integrating the building's history into a radically different, modern use.
The facade design subtly emphasizes the building's layers of time: architectural adjustments from different periods are highlighted by using subtly different shades of color.
The sentence is clear and well-structured, but you can make it slightly more concise and impactful. This not only reveals the building's history but also creates a harmonious and visually appealing aesthetic.
The architectural concept of the courtyard is based on the principle of contrast: strict, clean forms harmoniously blend with the lushly planted environment.
The textures of soft plants soften the strict, clean architectural character, adding warmth, naturalness, and life to the space.
The landscaping architect, Ūla Maria Studio, created an exceptional plant composition for the space. The courtyard became the core of this spatial composition.
The first floor features a large hall with high ceilings, intended for larger events.
On the ground floor, there is a bright, somewhat industrial, unfinished architectural style, less formal.
Concrete floors and a seemingly disrupted border – a wall baseboard.
On the first floor, the main feature is a massive wall, which, as an analogy to a canvas, was used by the artist Gintarė Konde to create a sculptural bas-relief depicting a party, dance, and action – symbolizing the function of the space.
The space, with its preserved and restored wooden parquet, aims to create an unobtrusive backdrop for vibrant events.




















