
SB 44 Residential Building
ARCHITECTS
Ôco Ideias E Projectos De Arquitectura
LEAD ARCHITECT
João Bucho
DESIGN TEAM
Pedro Arcângelo, Lia Delgado, Gabrielle Pimentel
LOCATION
Lisboa, Portugal
CATEGORY
Apartments
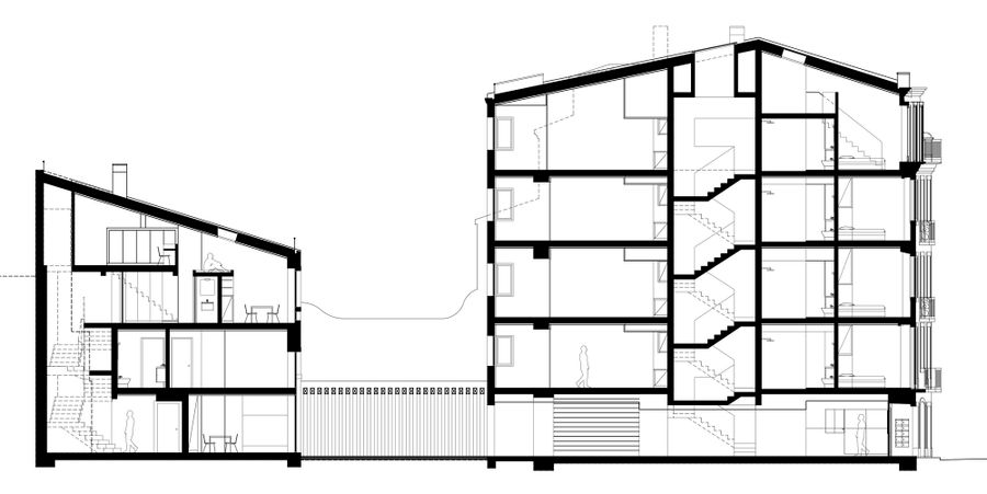
Building SB 44, located in the São Bento neighborhood, in Lisbon, Portugal, is the result of the renovation of a "Gaioleiro" city building from the end of the 19th century.
Its construction is characterized by thick perimeter walls, in mortared stone, with wooden floors, Lioz stone window frames, ceramic tile roof and a facade covered in traditional tiles.
The building consists of two volumes. At the front, the main residential volume, with 5 floors, and at the back, a two-story warehouse that served the commerce that existed on the ground floor.
The intention of preserving the identity and chronology of the building dictated that the facades were maintained and preserved, innovating in the interior.
Small apartments were created, meeting the demand at the time. Traditional materials were used, such as pine flooring, color patterned cement tiles, Lioz stone.
Atriums and corridors stood out for their contrast, with a bolder design, favoring concrete, metal and integrated lighting.
The connection between the two volumes is materialized with a wooden pergola, and a minimalist garden, with tree bark and a birch tree in the center.
























