Triplex Vila Romana
ARCHITECTS
Pietro Terlizzi Arquitetura
LEAD ARCHITECT
Pietro Terlizzi
MANUFACTURERS
Arkos, Artefacto, Colormix, Eurocuccina, Fernando Jaeger, Fogo e Art, Fogões e Shop, Isolar, King Paisagismo, Lumini, MAIS 55 DESIGN, Palimanan, Portobello, REKA, SCA MOVEIS PLANEJADOS, Sollos - Jader Almeida, Stobag, Tanah Madeiras, Tidelli, Vidros Sistemas,
AUTOMATION
Audiolab
AIR CONDITIONING
VT Com
PHOTOGRAPHS
Guilherme Pucci
AREA
250 m²
YEAR
2023
LOCATION
Vila Romana, Brazil
CATEGORY
Apartments
English Text description provided by architect.
The Vila Romana Triplex was a very special project inspired by design, art, culture and games.
To achieve the final result with a contemporary design, the 250m² apartment features modern solutions such as the integration of environments, a swimming pool with a glass edge, a staircase and a mezzanine that is hollowed out in a slender metalwork design.
On the other hand, it was a very challenging process, as the apartment is in an old building where the implementation of the solutions required a series of adaptations.
Sectoring the 3 floors of the project, on the first floor, in the Social Hall, we have a first reference (there are many) to Brasilia with a painting we made with tiles by Athos Bulcão.
Entering the apartment through the Social Entrance, we have the Dining Room, Kitchen and Laundry and the corridor to the bedrooms.
The idea was to integrate the dining room and kitchen through a cobogó wall that also brings natural light into the corridor leading to the intimate areas. The client's dream was to have a pink kitchen.
So, we used the same pink finishes for the kitchen and laundry room, which are also integrated, but with the challenge of not making them look childish, we counterbalanced the pink of the cabinets and the ceramic tiles with a Portuguese design (a link to their other house) on the floor with the graphite color of the countertop veneer, details of the freijó joinery and the cladding above the countertop in blue.
In the dining room, the organic tabletop designed byus follows the design of the room, allowing for fluid circulation around the space and the wooden floor brings the warmth of natural materials into the room. This room also features wall art by the artist Dani Shirozono, a close friend of the couple.
In addition, we created a muxarabi “box” in joinery, which surrounds the original spiral staircase, creating a sense of curiosity about what to find on the upper floors. This Muxarabi element is used at various points in the project.
In the bedrooms, another artwork by artist Dani Shirozono stands out on the headboard wall of the master suite, referring to a sunset behind the muxarabi woodwork.
And in front of the bed, a piece of reading furniture affectionately nicknamed the womb bookcase, was designed by us with an organically shaped opening where the futon creates a cozy feeling and internal lighting for the owners' daily reading time.
On the second floor, the challenge was to get the widest possible view of the pool.
To do this, we had to demolish the original pool and come up with the solution of creating a glass wall for the new pool, which is at half level with the outside area.
As a result, anyone climbing the spiral staircase from the first floor can see the entire floor of the triplex, i.e. from end to end in the longitudinal direction of the building, allowing plenty of natural light and cross ventilation to enter and a maximum feeling of spaciousness on this floor.
This multifunctional and integrated environment houses the fireplace, TV room, workbenches and games table, which is covered with Portobello tiles from the Athos Bulcão line, which was also used in the ceiling between the exposed concrete beams (originals) of this floor about Brasília, the resident's hometown.
Also, in the games area, a bookcase was designed together with the clients as a tribute to Oscar Niemeyer (another tribute to Brasília), featuring the curved lines of the stainless steel structures about Niemeyer's pillars in the Planalto Palace, which are fixed to the floor and beams, illuminated by floor spots and which structure and support the glass shelves.
Embracing this floor, the railing was changed to glass to connect the apartment with the full view of this part of the city.
Another highlight of this room is the bookcase nicknamed “Tetris”, which, as the name implies, refers to the pieces of this famous game from the 90s.
The bookcase, made of metalwork and wood, was designed together with the residents, who love games and technology and took part in all the details and the process of creating this element.
In the outdoor area, the protagonist is the glass-edge swimming pool, which was conceived with reference to a lake surrounded by a forest, so the landscaping was very elaborate in this area, with vertical garden walls that bring a sense of refuge to this rooftop in the middle of São Paulo.
This garden is 100% visible both from the second floor and from the third floor (rooftop).
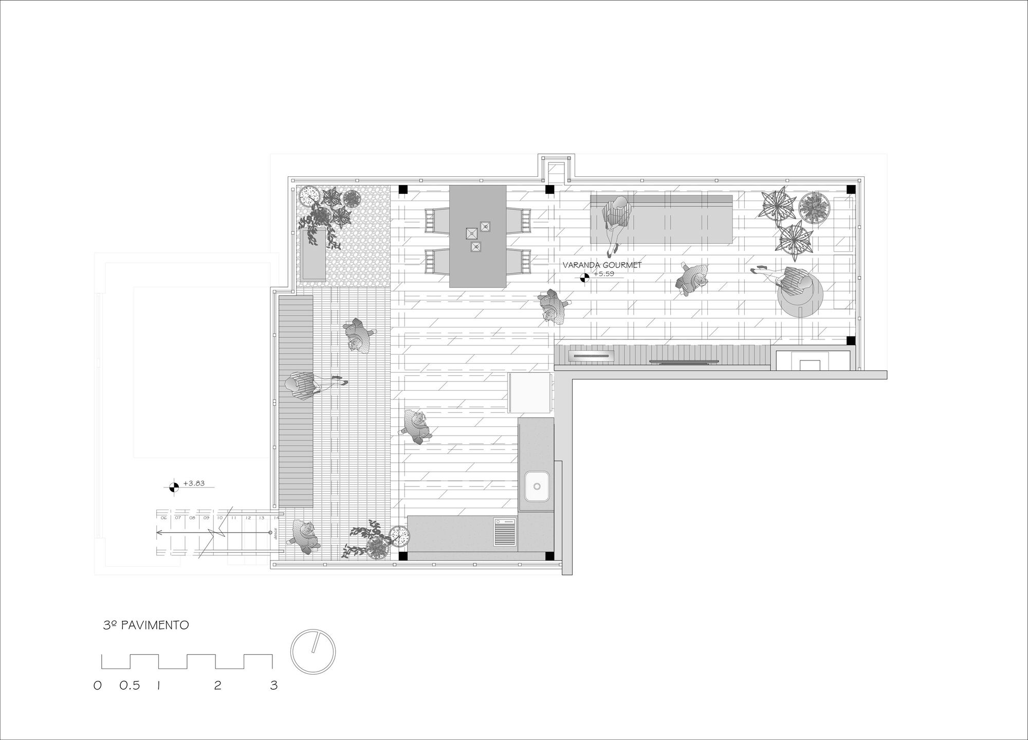
From this middle level of the pool deck, we have access to the third floor, where the staircase and upper platform have been carefully designed to be visually light... produced in metalwork, with hollow grilles, also allowing the sun and light to pass through to the pool, deck and living room.
On the third floor, this structure functions as a floating floor that expands the usable area of the third floor and creates a connection with the pool.
A retractable roof has also been installed, allowing flexibility of use and adaptation according to the weather.
This area houses the gourmet space with a gas barbecue, table and chairs for the outdoor area.
One of the highlights of the Rooftop is the cinema, which can be “open-air” with a retractable screen.
Highlights include the gas fireplace for sessions on colder days and the artwork made especially for clients by the artist Renan Santos with a reference to the book “Voyage To The Bunny Planet”, one of the client's favorite books.


































