Lekkeray Eatery
ARCHITECTS
Pfeffermint Ag
LEAD ARCHITECTS
Andrea Salathe, Britta Hagen
MANUFACTURERS
Fornace Brioni, Hay, Karoistanbul, Muuto, Spinneybeck, Xal
CREATIVE DIRECTION
Britta Hagen
SITE MANAGEMENT
Cerruti Partner Architekten Ag
YEAR
2022
LOCATION
Zug, Switzerland
CATEGORY
Restaurant
Text description provided by architect.
The Lekkeray Eatery opened in the summer 2022 on the ground floor of the Mobility Hub Zug North, a car park of the future with over 600 parking spaces and directly adjacent to the Tech Cluster Zug.
Pfeffermint won the competition for the family-owned company's first bistro in Cham and has since supported Lekkeray in the areas of interior design, branding and brand reinforcement.
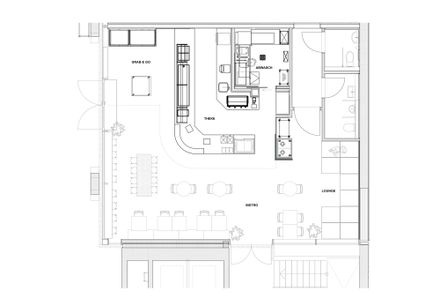
The bright and minimalist architecture of the car park continues in the bistro with generous concrete surfaces and white steel construction elements, resulting in an exciting interplay of industrial accents with the other materials chosen.
The choice of materials takes us on a journey along the Mediterranean coast: the warmth of the south is brought in with cork from Portugal, terracotta tiles from Italy frame the generous counter, terrazzo from Turkey forms the basis for an inviting group table, and all of this is framed in a green-blue that is as light and fresh as a Mediterranean breeze.
Analogous to the ingredients found in the Lekkeray Eatery's diverse product range: Natural products with lots of flavors.
Fresh bowls, mezze platters and cheese sandwiches are available at the generous lunch counter.
The small shop area comes up trumps as a pit stop with healthy treats to take away.
Outside, pfeffermint has created a small oasis with dark green furniture, hot-dip galvanized wooden slatted stools and colorful parasols.
The seating is framed by lush planting in terracotta pots. In the evening, the Lekkeray Eatery transforms into a multifunctional space of 100 square meters that can be used for events such as lectures, aperitifs and tavolatas.
The lounge can be transformed into a stage or into an aperitif area with bar tables in a few easy steps, or the tables can be pushed together to form a long table in no time at all.












