Perrier Residence
LOCATION
New Orleans, United States
CATEGORY
Residential Architecture, Houses
Text description provided by architect.
The McGuire's New Orleans shotgun was a classic case of hidden potential.
Nestled in the Touro/Bouligny neighborhood and brimming with character, the house had fallen into disrepair, deterring most potential buyers.
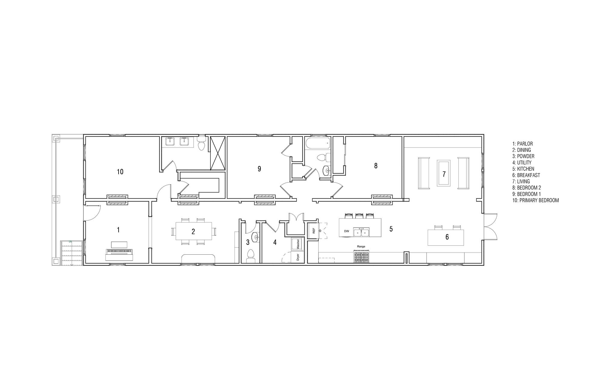
Its classic double shotgun footprint measuring 25 x 75 posed unique challenges, while a tight budget demanded creative solutions. Yet, for Seamus and Kara McGuire, this was a canvas begging for transformation.
The couple envisioned a home that was both stylish and functional, a space that reflected their family's vibrant life while respecting the home's historic character.
The challenge was to marry their design aesthetic with the shotgun's traditional layout. With one young child, and another on the way, the home needed to be practical without sacrificing design integrity.
With a love for preservation, the shotgun's core, its fireplaces, and the majority of its historic features remained untouched.
The core of the design was centered around the color story, the McGuire's opted for earth tones with one room complimenting the other, allowing the architectural details to shine.
Original heart pine floors were restored, their warm tones grounding the space. The kitchen was transformed into the heart of the home.
Custom-built cabinets maximized storage, and arched cased openings connect both the kitchen to their breakfast nook where they spend most of their time.
The living and breakfast areas also flow seamlessly into one another, creating an open and airy feel. Large historic windows allowed ample natural light to flood the space.
A carefully curated mix of vintage and modern furniture added personality and warmth. The McGuire's incorporated built-in bookshelves to maximize storage and display their book collection.
The bedrooms reflect a quaint space that is warm and inviting. Custom wallpaper with complimentary paint colors allows the children's rooms to feel fun and playful.





















