Casting Shadows
ARCHITECTS
Masato Takahashi Architects
LEAD ARCHITECT
Masato Takahashi
PHOTOGRAPHS
Shutoh Yohei
AREA
85 M²
YEAR
2023
LOCATION
Sendai, Japan
CATEGORY
Apartment Interiors
Text description provided by architect.
This is a renovation of a room in an apartment complex built half a century ago. The seven-story building faces Katahira-cho Street in Sendai City, Miyagi Prefecture, which was a feudal lord's alley in the feudal era.
The building is situated on a cliff with a difference in elevation where a river terrace directly meets the river, and offers a view of the unique landscape of Sendai formed by the Hirose River and Mount Aoba.
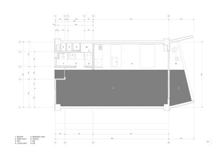
The existing floor plan is a 4K type consisting of a Japanese-style room and a Western-style room. The Japanese-style room on the south side is bright, while the bathrooms on the north side are dark, resulting in a strong contrast between light and dark.
To maximize the view, we dismantled the walls dividing the rooms into east and west sections, and the natural light concentrated on the south side was dispersed to reveal a single room filled with dark shadows cast by the existing structure.
This was due to the fact that the light, which had been emphasized by the original spatial contours such as finishes and fixtures, lost its clue when the contours were dismantled, and the diffusion of light was stopped.
As in the East, where people have long ago found a sense of the subtle in the dark, this space, with its accumulated darkness, allows us to imagine what we cannot see in our daily lives and to listen to what we cannot hear. The idea was to live in the shadows that shake the contours of the existing structure.
During the day, the backlit view from the south and north windows appears as a borrowed landscape in the shadows, and only the scenery floats in the darkness. After sunset, the room is filled with darkness, and half of the room disappears with the shadows.
The boundary wall disappears from view, giving the sensation of walking through an endless abyss. The shades of darkness change from moment to moment according to the time of day, creating depth in the everyday act. We call this place with semantic shadows "Shadows room".
The client's two major requests were to provide a spacious area that could be used with dirt floors and to compactly organize the living space, including the living room, bedroom, and water area. The living room, bedrooms, and bathrooms are arranged in a north-south direction so that the line segment tangent to the Shadows room is long.
The existing wall separating the living room from the bathrooms was deliberately extended to the edge of the floor so that the residents would always step into the Shadows room in their daily activities.
Shadows room, which is visited repeatedly, is not so much a room as a series of "openings" for access to other places, and it is also a "closing" where space is paused by shadows.
In light of the spatial configuration in which life unfolds from two contrasting places, the Shadows room, and the "living room," I was reminded of the proximity to "Mugen (ghostly spirit) Noh", where the story progresses through a dialogue between the two actors who play the roles of fiction and reality.
"Mugen Noh", the story begins when the Shite, a spiritual being, appears before the Waki, who is living in reality. If we view the Shite as the Shadows room and the waki as the living room, this room is the space between here and there, in other words, "Awai"(a room of in-between.
The floor, walls, and ceiling of the living room, which is positioned as the stage of life, are finished with hinoki plywood, and the room is paused at the boundary with the Shadows room.
The wooden edges of the living room, paused by the shadows, are shown as a finishing touch by setting the spacing of the wood stud on the assumption that they will be shown.
In other words, it is not an unintentionally exposed section, but a "paused surface" that is intentionally exposed.
The hinoki plywood finish is intended not only for practical reasons, such as durability and water resistance but also to allow natural light to illuminate the white wood surface, contrasting with the Shadows room.
The floor height was set 20 cm higher than that of the Shadows room as a clear indication of the change of space, and the ceiling height was made as low as 1.9 m to the utmost limit.
This manipulation is intended to create a background of light floating in the darkness as if life itself is cut out like a "Kagami-ita(The board with the painted pine tree is called the "Kagami-ita" (mirror board), and it is one of the Noh stage props.)" when viewed from the Shadows room.
By revealing the frame, which had been hidden from view, I maximized the volume of the space, while allowing light, wind, and action to pass through the shadows, creating a place that is both inside and outside.
The operation to increase the air volume between the shadows is also an attempt to turn the characteristics of the "Mugen Noh" into the real space, where the absolute reality of the existing frame is the falsity in the renovation process. The shadows reflected in the space between here and there. We hope you will discover a new sense of comfort in the eeriness of the darkness.


















