
Sumthin Else Coffee Shop
ARCHITECTS
Matter Of Something
LEAD ARCHITECTS
Steven Sundjaja
MANUFACTURERS
Carl Hansen And Son, Glassmart, Inax, Omah Bata, Sofia Stone, Taco, Venus Tiles
LIGHTING CONSULTANTS
Hello Good Nite
DESIGN TEAM
Oktobianto Dwi Prasetyo
PHOTOGRAPHS
Steven Sundjaja, Oktobianto Dwi Prasetyo
AREA
57 M²
YEAR
2024
LOCATION
Kecamatan Bandung Wetan, Indonesia
CATEGORY
Coffee Shop
Text description provided by architect.
The design narrative seeks to soften the boundaries between past and present through a bold and brutalist modern approach.
Bold juxtapositions and daring contrasts form the cornerstone of Sumthin Else’s aesthetic ethos, promising an immersive experience that transcends the ordinary.
By seamlessly weaving together elements of heritage building and modernity, the design of Sumthin Else aspires to its brand concept, where we aim to create a space for coffee enthusiasts with an unforgettable atmosphere that serves as a testament to its distinctive experience.
Sumthin Else is located in the Jalan Progo neighborhood of Bandung City, which is rich in city heritage. The design complies with the history of the building, resonating with Dutch colonial architectural elements.
To preserve the historicity of the building, the basalt stone is used in the same way as the position of the existing stone wall.
The continuous wood panels are meant to be seen as a part of the new structure, bringing a sense of extensive space.
The light penetrating through the gap of the wood ceiling became our primary response to the existing structure, where we valued the influx of natural light to create a bright and inviting atmosphere.
We retained the original building on the right side, allowing the old story to appear and to be appreciated.
As people enter the end segment, the building would tell the story more through the nostalgic layout and the conserved architrave.
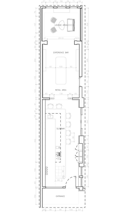
The layout of Sumthin Else has been placing the bar counter in the center of the first area when entering.
This decision was intentionally aimed at fostering the interaction between the coffee baristas and the consumers, offering the stage to discover a complete coffee experience.
The bar counter was crafted from a curved stainless-steel shape, complemented by green marble and mosaic detail on the edge.
Our design strategy emphasizes how the interplay between contrasting materials enhances the overall design narrative -- wood for warmth and natural appeal, stone for durability and a sense of earthiness, and stainless steel for its sleek and modern-brutalist aesthetic.
The combination of these materials created a dynamic space and harmonious environment that resonated with the brand's identity and vision.






















