
HYBE Headquarters Office
ARCHITECTS
Com, Fhhh Friends
LEAD ARCHITECTS
Com + Fhhh Friends
FURNITURE PRODUCTION
Fursys, Yedi Gallery
INTERIOR CONTRACTORS
Dawon Id&c
PROJECT MANAGEMENT
Hybe Cbo Office, Heejin Min, Donghoon Shin
LANDSCAPE ARCHITECTURE
Atree Landscape Design & Construction Studio
MEP ENGINEERS
Hana Consulting Engineers Co., Ltd.
STRUCTURAL ENGINEERS
Sen Structural Engineers Co.ltd
SIGNAGE
Hybe Cbo Office, Crafik & Leepublic
ACOUSTIC CONSULTANTS
Archisound
LEAD TEAM
Joowon Han, Sejoong Kim, Hanjin Yoon, Seungjae Han, Yangkyu Han, Yunju Choi, Eunjee Choe, Yoomi Shin, Jaenam Lim, Hyunseok Hong, Youngho Cho, Hyesang Park
FACADE CONSULTANTS
Front Inc.
PHOTOGRAPHS
Texture On Texture, Roh Kyung, Kim Kyoungtae
LIGHTING CONSULTANTS
Huel Design
AREA
36756 M²
YEAR
2021
LOCATION
Yongsan-gu, South Korea
CATEGORY
Offices Interiors
SEOUL, SOUTH KOREA
HYBE, the entertainment powerhouse behind internationally renowned K-pop stars, stands as an entertainment lifestyle platform company, housing various label companies under its umbrella.
The HYBE Headquarters project marks a significant milestone in the company's journey as it transitions from a singular entity to a colossal corporation known as HYBE, embodying a new direction through spatial design.
Reflecting the ever-evolving nature of an entertainment business, the project team, comprising FHHH friends, COM, and HYBE CBO Office (led by Min Hee-jin and Shin Dong-hoon), collaborated across architecture, interior design, and branding disciplines to bring the project to fruition.
"THE OFFICE THAT EMBODIES CHANGES"
The greatest challenge of the HYBE Headquarters project lay in overcoming the limitations of conventional office buildings designed for maximizing rental efficiency - a typical and constrained purpose.
With a multitude of programs operating concurrently, a fixed office layout proved inadequate in accommodating this diversity. Thus, a spatial system was devised to enable effortless and flexible modification of space according to evolving needs.
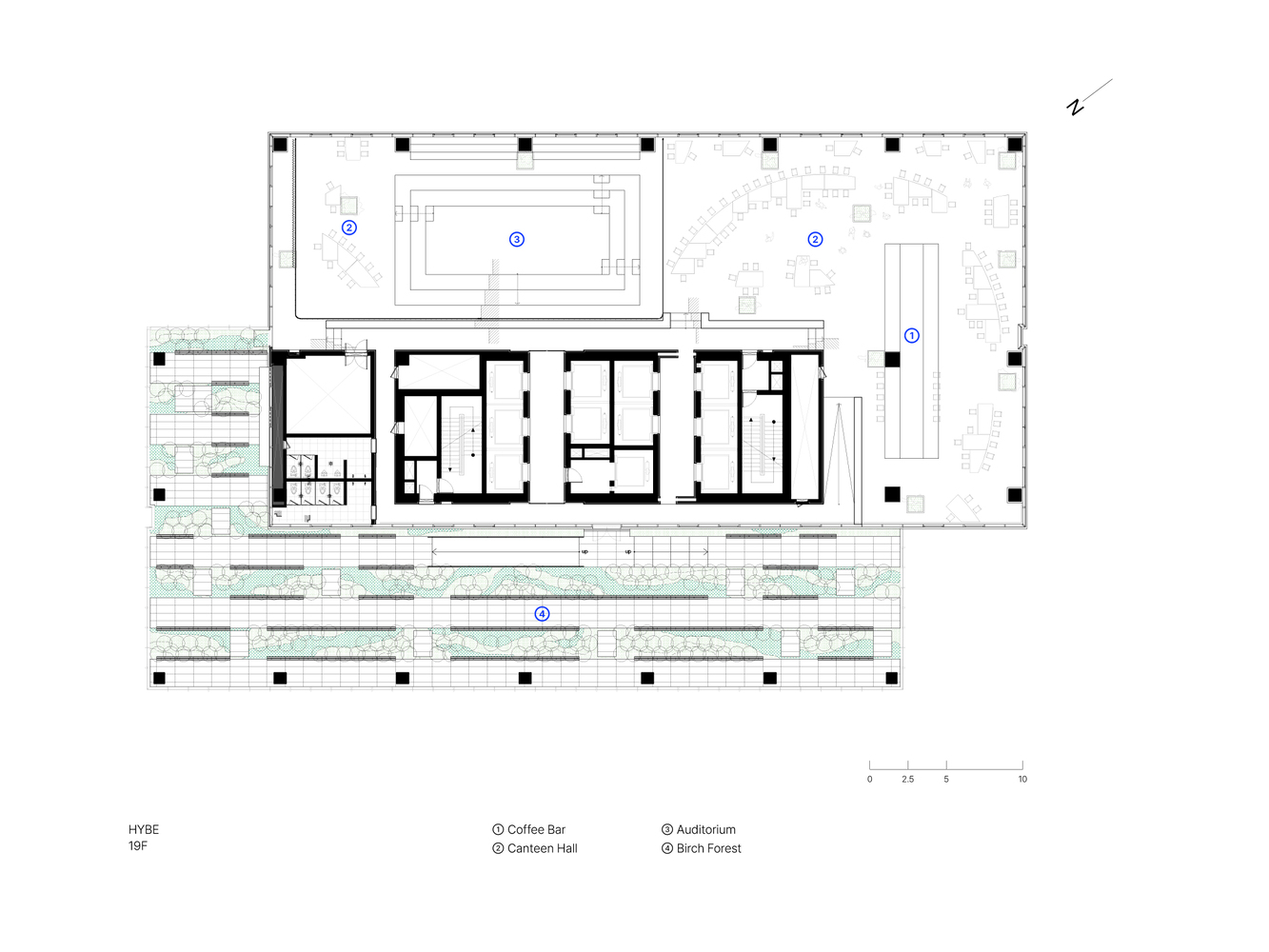
This system, realized through a grid system supplying essential infrastructure from the relatively unrestricted ceiling rather than the congested floor, empowers users to delineate office spaces based on pre-planned scenarios using adaptable mobile racks.
With each floor divided into 15 spaces, totaling 300 units throughout the building, this grid system allows for unparalleled spatial flexibility.
"FINELY WOVEN CEILINGS"
The ceiling assumes a paramount role within the grid system, serving as both a unifying element and a provider of varied atmospheres through the assembly of diverse finishes tailored to each space's function.
Arch-shaped ceilings with indirect lighting modules create a comfortable ambiance in office spaces, while sound-absorbing panels in corridor ceilings minimize noise transmission.
Integrated with various finishes, lighting trays, and fire safety features, the ceiling forms a cohesive structure.
"COM'S FURNITURE DESIGN EMBEDDED WITH SPATIAL SYSTEMS"
Adapting to diverse scenarios extends beyond spatial design to furniture design, maximizing efficiency in storage with mobile racks and compact-sized desk combinations that optimize individual occupancy distribution.
All furniture shares a common 500mm x 500mm grid system, ensuring intuitive placement regardless of location.
These designed products, fully adapted to an existing mass production system for the furniture industry, allow for continuous maintenance, catering to the long-term needs of the 2,000-strong workforce.
"GRID AS A TOOL FOR COLLABORATION"
Even in the collaboration process among teams specializing in different fields, the grid system serves as a vital language for communication.
Ideas were drawn based on the 500 x 500 grid, which is the most effective unit for dividing buildings and materials and facilitating seamless expansion from the smallest unit area to the entire building.
Additionally, two design principles—revealing the inherent properties of materials and prioritizing ease of installation and mobility—steered the teams away from conventional office interiors towards a transformative office environment.
In August 2019, the HYBE CBO Office team led by Min Hee-jin (CBO), Shin Dong-hoon (Assistant Director), architectural firm FHHH Friends, and COM collectively formed the Spatial Experience Design team for the new headquarters project.
After a year of designing period and an 8-month construction period, the new HYBE Headquarters accommodates over 2,000 individuals across five programmatic blocks: public facilities, small and large specialty spaces, archiving and office spaces, and welfare facilities comprising 19 floors with a total floor area of 36,756 m².









































