
Wonderkin Edutainment Center
MANUFACTURERS
Beautiful Furniture Company Ltd, National Industries Co., Puretree UK, Urban Play
PROJECT MANAGER
Maha Alessa
INTERIOR DESIGNER
Shenouda Talat
ARCHITECTURAL DETAILER
Ertugrul Yilmaz
MEP ENGINEER
Zamir Rira
MARKETING
Mamdouh Mohamed
ADMINISTRATION
Al-Daleel Contracting
PHOTOGRAPHS
Mohammad Ashkanani
AREA
180 m²
YEAR
2023
LOCATION
Hawally, Kuwait
CATEGORY
Recreation & Training, Other Facilities
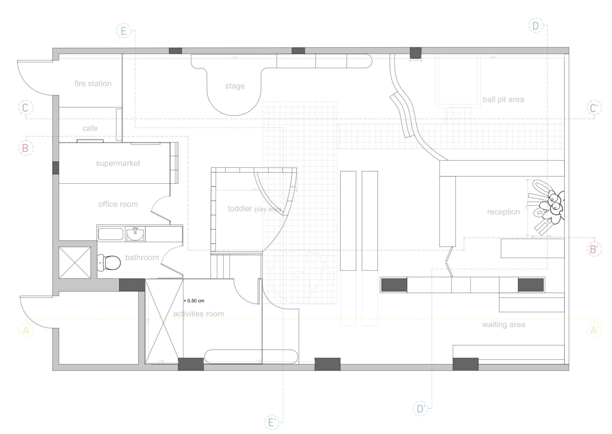
Wonderkin is a kids ‘edutainment’ playroom in Kuwait City where children from toddlers to preteens get to be active and learn new things all while they play.
The playroom sits within an outdoor complex of shops and cafes generally intended for young adults and parents, so an elegant but fun look was the aim for the facade design as well as the interior soft aesthetic, which had a ‘colorful Nordic’ theme.
From pastel leathers to natural wooden furniture and toys, the 180sqm playroom is colorful yet elegant.
It has a reception where the kids drop off their bags and take off their shoes before they go in to play, and there’s a waiting area for the parents to watch their kids.
Once they enter, they can go up the soft play jungle and ride the slides or crawl on the rope-net bridge to the other side of the playroom and go down the other slide into a ball pit.
The activity areas were divided by mini-buildings with mini-brick facades or shingled roofs where kids could play-act as shoppers, baristas, firemen, or craftsmen.
To ensure the safety of the kids, all surfaces in the soft play jungle are padded with soft leather cushioned surfaces, from steel bars to concrete columns to floors and railings. Underside this is a soft anti-bacterial cork flooring.
Fiberglass slides were custom-designed by Manmade Studio and built in Abu Dhabi to ensure color coordination with the rest of the interior.
The facade includes 2 elements from the branding: the logo and the fluffy character, Woohoo, which is the main playful indicator to outsiders that this is a kid's play area.
The base of the facade is a curved sand-lime brick, which is a modest blend of the building’s brick and the soft, playful interior.
The difficulties in this project were that the client already signed the contract on the leased space before approaching us, so the design stage was squeezed to the extent that while designing we were producing construction documents for the slides which needed the most time.
The cork flooring had to also be ordered during the design stage, the order had to be placed many months in advance due to shipping and procurement.
The softplay jungle was a steel frame structure that was constructed with wooden platforms and leather padding, the biggest construction challenge was the hanging bridge which needed site-specific structural design.
All carpentry elements used white-washed oak wood veneer or water-based paint.
The bathroom has a custom-built orange Corian sink, and the high level of the walls is clad with acoustic fabric panels disguised as waves.






























