
Genesis Headquarters Office
ARCHITECTS
COM
LEAD TEAM
Joowon Han, Yunjei Cho, Sejoong Kim, Jiwon Lim
PROJECT MANAGEMENT
GENESIS, Jihee Kim, Jeonghyun Lee
ENGINEERING & CONSULTING
Dawon Design
STRUCTURAL CONSULTANTS
JW Structure Engineering
LIGHTING CONSULTANTS
Huel Design
LOCATION
Gangnam-gu, South Korea
CATEGORY
Offices
In the wake of the COVID-19 pandemic, the importance of spaces where we reside has garnered significant attention.
The demand for improvements in large office environments accommodating over 200 individuals is as high as the interest focused on personal spaces.
Offices centered around efficiency, with desks and chairs squeezed between dense partitions, represent a mundane reality that people no longer wish to encounter.
There is a growing trend towards transforming corporate workspaces into welfare-oriented spaces for everyone's well-being, aiming to become part of the living radius of the organization's members.
COM'S CHALLENGE TOWARDS A NEW WORKSPACE
COM, known for creating spaces that drive sales through refined design quality, has recently participated in large office space projects, leading to resonance among the new generation and providing solutions that enhance work efficiency.
This challenge towards a "new workspace" sets COM apart as a distinctive case in the realm of studio-grade interior design companies. Collaborating with the Genesis Brand Space Team, COM has successfully completed the Gangnam headquarters project.
The Genesis business headquarters, akin to a startup organization where experts from all fields converge for a single brand, aspires for the new office to exude a warmth that inspires creativity among members, akin to an artisan's studio where they would want to linger.
LOFT CEILING WITH EVIDENT AND SYSTEMATIC IMPRESSION
COM removed the typical office environment's dazzling fluorescent lights and white ceiling panels to reveal high ceilings, ensuring a cool sense of openness.
Introducing pendant lighting with a grid-like pattern, they enveloped the entire office with a subtle and warm glow, creating an impression of a light but orderly ceiling.
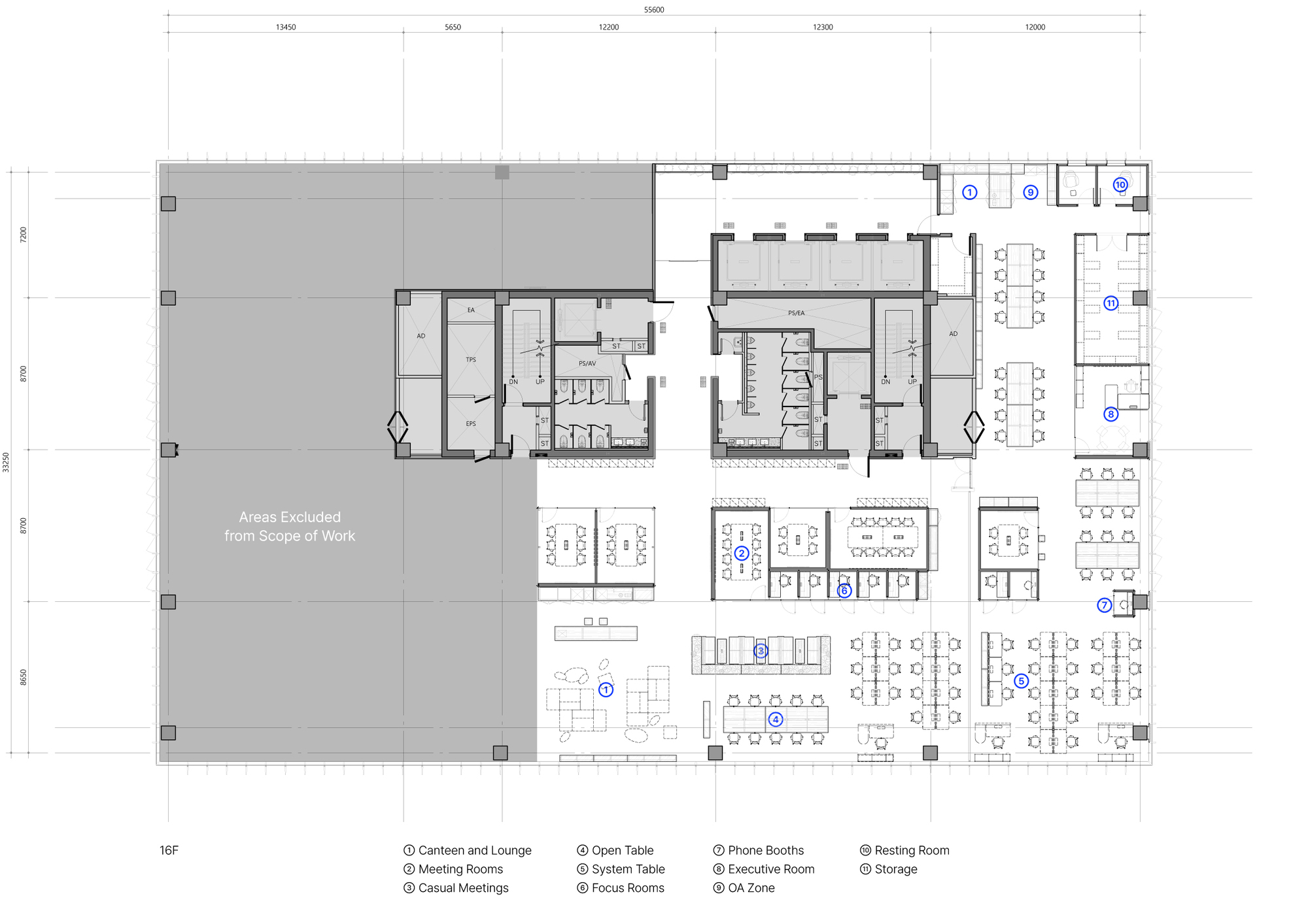
Spaces requiring functions like absorption and isolation, such as meeting rooms or executive offices, were designed as independent rooms dedicated to their specific functions, scattered like pieces in a large space.
Amidst these pieces, variously sized spaces were created to accommodate common areas like canteens, lounges, OA stations, seating areas in office spaces, and hidden pathways that connect them all seamlessly.
WARM ATMOSPHERE CREATED BY LIGHT REFLECTING ON WOODEN FURNITURE
Upon entering the office, one is greeted by a 5-meter high ceiling and 400 silver pendants adorning the expansive ceiling, creating an overwhelming first impression.
Living spaces where employees dwell and interact exude a contrasting atmosphere with the vertical-horizontal iron structure ceiling, featuring exposed wooden furniture and small rooms surrounded by wooden panels, crafting a warm and cozy ambiance.
The sunlight penetrating deeply during the daytime interacts with wooden furniture and glass shelves, creating varied shadows that bring dynamism to the space. During dusky evenings, the warm light from pendant lights reflects off wooden panels and iron structures, filling the office space with comfort and warmth.
Each office space, showcasing diverse atmospheres as the changing scenery outside the windows, offers Genesis employees using autonomous seating a daily routine filled with excitement.
Starting with the first meeting between the Genesis Brand Space Team and COM in October 2023, the Genesis office project transformed the Gangnam Scale Tower into the new headquarters of the Hyundai Motor Group, comprising a total of two floors for the Genesis office - 990m² on the 16th floor and 1640m² on the 17th floor.
After a three-month construction period, the project successfully completed the move-in on March 25, 2024, marking a significant milestone in redefining workspace aesthetics and functionality.





















