
House in Shukugawa
GENERAL CONTRACTORS
Minoru Construction Company
LANDSCAPE ARCHITECTS
Ogino Toshiya landscape design
LIGHTING CONSULTANT
Kazuhiko Hanai
ENGINEERING AND CONSULTING
Hidekatsu Takada
PHOTOGRAPHS
Yasunori Shimomura, O Kato
LIGHTING CONSULTANTS
Daiko Electric, Daiko Electric Company Limited
AREA
43 m²
YEAR
2024
LOCATION
Nishinomiya, Japan
CATEGORY
Houses
POSITIONING THE LAND
Located in Nishinomiya City, Hyogo Prefecture, the surroundings along the Shukugawa River are quiet, with abundant nature and a long-established residential area.
Due to the high value of land and the relatively high unit price per tsubo, there are many areas where land is densely subdivided into smaller lots.
The site was a compact, flagpole-shaped lot surrounded on all sides by two-story neighboring houses. These conditions were by no means good.
DESIGN CONCEPT
The site conditions made it difficult to open the house to the outside for privacy reasons, so we aimed to create an independent world within the house in line with the client's preferences.
Many of the interior images they shared with us had a European feel, and we decided to incorporate these elements into the design.
First, the footprint of the building was set as large as possible in relation to the site, and it was designed to be boxy and closed to the outside.
To allow the interior to experience nature and the four seasons, a courtyard was placed in the north corner, where it is relatively easy to secure lighting.
The hall (living and dining room), kitchen, and other active spaces are located around the courtyard.
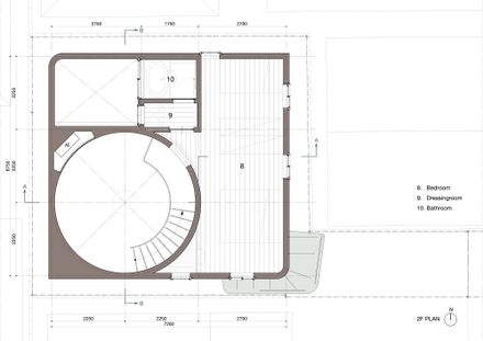
Rooms for individual rest, such as bedrooms and bathrooms, were kept to the minimum necessary size and placed on the second floor.
The hall, the most distinctive feature of this house, was intended to be a space that gently envelops time with family and close friends without feeling cramped in a house close to the outside.
The hall has a moderately centripetal plane that creates a sense of harmony and a large dome-shaped volume that ensures a cozy atmosphere even when people gather together, giving the space a sense of inclusiveness.
In contrast to the completely private space on the second floor, the first floor has a semi-public atmosphere, even though it is a house, creating a sense of change and depth within the narrow box.
The tiled floor, the dining table that resembles a terrace in an alley, the balcony-like landing that protrudes into the atrium, and the slightly austere atmosphere created by the dome and symbolic top light all work together to create the atmosphere of the ground floor.
LIGHTING
It is important not only to have brightness but also to have a sense of relative brightness.
While minimizing the openings in the hall to lower the overall illumination level, we organized the sequence of brightness so that the light falling on the courtyard would be perceived as beautiful as possible.
The walls and ceiling are finished in a uniform light reddish-brown plaster, which allows the warmth of the light to be felt while amplifying the brightness of the space.
SPATIAL MANIPULATION
The soft curvature of the outer courtyard wall corners, the seamless plastered dome ceiling, and the low ceiling height of the first floor in contrast to the dome create the illusion of distance and visual expansion in a compact space.



























