The Oreum Restaurant
ARCHITECTS
Dajoo Architect
LEAD ARCHITECTS
Byounghun Yoo
DESIGN TEAM
Jaehoon Kim, Jaehwan Yoo, Jongsoo Song, Sora Jung, Seokgon Kim
NTERIOR PARTNER
Space Dot
PHOTOGRAPHS
Jisoo Park
AREA
2629 m²
YEAR
2023
LOCATION
Goyang-si, South Korea
CATEGORY
Restaurant
Near Seooreung in Goyang City, a small walking path exists. This walking path is frequented by those who have finished a simple meal after visiting the royal tombs.
The owner of the building, situated at the starting point of the gentle walking path that people take after their meal to ascend lightly, wanted to refer to this large structure as "Oreum.'
Many people seek solace in nature when they wish to escape from the stark city and the weariness of daily life. Perhaps it's because nature constantly evolves, offering us new experiences and diverse emotions, instilling in us both reverence and comfort.
Cafe Oreum has encapsulated the desires of its clients and unraveled the brand's story, aiming not just to be a café but also a cultural space where various experiences that one can feel in nature are available.
The word "Oreum" encompasses the sense of ascending a small mountain, experiencing sensory experiences, emotions, and the changing scenery.
With the name "Oreum," we aspire to create a space that is emotional and experiential, offering a holistic experience akin to nature itself, where one can climb lightly away from the urban landscape, gaze at nature entirely, and immerse oneself in new experiences that evoke all senses, thus providing a space for complete relaxation.
We envisaged such a space and believed that these elements would be the key components to unfold the space.
The space, consisting of three floors and a rooftop, is planned to open up different sensations on each floor, intending for visitors to gradually ascend, experiencing different sensations on each level.
We thought that when everyone could empathize with the story behind this space, not only the visual aspects but also the sensory experiences within it could be maximized.
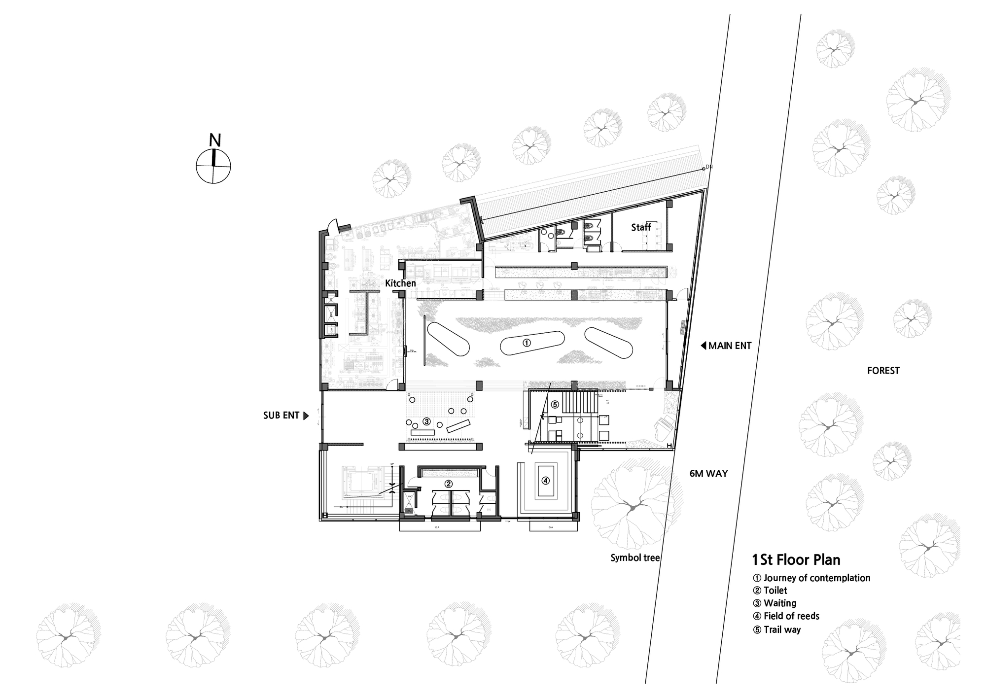
1ST FLOOR_ REEDS - JOURNEY OF CONTEMPLATION
The beginning of the first space was a reed field located on a vast field spread out before climbing the Oreum.
Feeling the soft sensation of swaying reeds with fingertips, leisurely wandering between the reed fields, the ceiling, and walls painted in colors resembling a sunset, finished with reflective materials, continuously expands the space.
Within this space enclosed in warm sensations, one can fully experience the comforting feeling amidst the scent of bread made from ingredients grown purely in nature and the sensation of reeds transmitted through fingertips.
FIELD OF REEDS
Breathing within this space surrounded by warm and gentle sensations, taking slow steps while embracing the comforting feeling carried within each breath.
Trailway - On one side stands a large central staircase that leads to the entire floor, serving as a functional element to obscure the unfinished framework and concepts of different levels.
In terms of design, it symbolically reinterprets a tall and straight forest of oak trees. Skylights installed on the ceiling capture the blue sky, clouds, and light-like frames, while the front windows capture the forest and trees in their natural state, imbuing the entire space with the wholeness of nature.
As one ascends the floor, benches installed at intervals provide opportunities to rest and contemplate nature's scenery.
Observing the freely frolicking white birds against the backdrop of nature within the "Reflections of Gaze" space, one may ponder upon the significance of their own gaze and the meaning behind where their gaze falls.
2ND FLOOR_ CAVE
Feast of water - Upon reaching the second floor, there exists a space resembling a cave within the Oreum.
The flow of water, reminiscent of a stream trickling down from somewhere within the cave entrance, welcomes us with the sound of water droplets falling and creating ripples, evoking a sense of welcome and enchantment.
DANCE OF MIST
After passing through the narrow path where water flows (Reflections of Water), one arrives at a space where mist constantly billows up from the ground.
The steps on the floor, varying in height like caves, are designed not to interfere with each other's view of the natural scenery in front.
Within the dance of moving mist, one feels the flowing mist dance, akin to exploring caves of differing heights.
Entering amidst the dimness, witnessing the large gray stones and the lush green moss intertwined with light, one encounters a faintly shimmering ambiance.
Feast of forest - On the opposite side, tree branches and leaves from outside seem within reach. The lush leaves of the trees and the leaves on the ceiling infinitely repeat, expanding the space as if it were an outdoor area.
Here, people are treated to a special reception from the forest, resting in a comfortable atmosphere under the light filtering through the leaves falling from the trees in the middle of the forest.
3RD FLOOR_CLOUD - REALIZE OF THE GARDEN
Upon ascending to the third floor, a space of pure white unfolds. Rows of white fabric, akin to the vast expanse of clouds spread over the sea on a mountain, sway in the wind, creating a scene reminiscent of billowing white clouds.
Within this white space, the fabrics between each seat become faint silhouettes, providing guests with private rooms instead of stifling walls. Media Gallery: Roslyn - This space is where media art pieces abstractly depict the essence of nature.
The entire space is mirrored, reflecting the concept of Oreum in an infinite space, showcasing modern interpretations of light, temperature, and the flow of nature's seasons. It aims to evoke changes in nature and simultaneously represent organic organisms that repeat generation and extinction.
Through unexpected color combinations and structures, the artworks provoke continuous transformation, creating numerous phenomena and prompting us to reconsider the diverse forms and possibilities of nature.
SWIMMING OF GARDEN
Entering along the corridor reveals a space resembling clouds. White benches and tables fill the room, while 100,000 cloud-shaped objects on the ceiling are positioned at varying heights, creating an illusion of drifting clouds.
These pearl-like cloud objects sway in the wind, producing a refreshing rustling sound. The moss on the floor, resembling small mountains, is abundant, and the mist emanating from the small crevices blends harmoniously with the vibrant green, akin to white clouds and mist merging in a space where clouds drift.
Immersed in this environment, one can relax while gazing at the mountains and trees in front, as if sitting on drifting clouds, breathing slowly, and engaging in conversations of various sensations.
THE OREUM
The oreum aimed to convey stories through a space resembling a small mountain, reminiscent of the beginning of branding, where various sensory and dramatic experiences and emotions could be felt.
Unlike the somewhat superficial experiences mentioned above, another nature, familiar with the gray city, exists here.
Through various sensory experiences, Diorum hopes to provide a space that allows people accustomed to the hectic and complex daily life to find complete rest and comfort by experiencing pure nature through the hill.













































