House With Indoor Garden
House with Indoor Garden
Hiroshi Kinoshita and Associates
ARCHITECTS
Hiroshi Kinoshita and Associates
LEAD ARCHITECT
Hiroshi Kinoshita
MANUFACTURERS
Ashford Japan Inc, Daiko
AREA
58 M²
YEAR
2023
LOCATION
Tottori, Japan
CATEGORY
Houses
Tottori Prefecture, where the site is situated, experiences twice as many rainy days and snowfalls as the San-yo region, making it less conducive to an outdoor garden.
Consequently, our proposal involves integrating the garden, typically an outdoor element, into the interior design, seamlessly intertwining rooms with an indoor garden.
The site is situated near a park, and the layout has been meticulously planned to maximize proximity to the park side, allowing for an inviting view of the park and facilitating the flow of refreshing breezes.
To ensure privacy, especially given the road between the site and the park frequented by neighbors, we minimized the number of openings.
The building is also located in a semi-fire zone, so other windows face the courtyard of the welfare facility on the south side, and under-windows are provided in shaded areas.
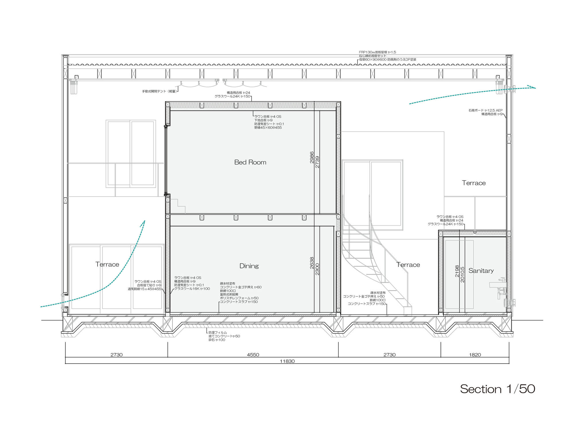
The roof is entirely translucent, allowing abundant sunlight to fill the indoor garden. The degree of solar radiation is adjustable through the movement of a tent, which can be opened or closed.
Additionally, temperature control is achieved by regulating the exhaust air volume of the ventilation fan installed in the attic.
In practical terms, the indoor garden is furnished with sofas, a study desk, bookshelves, and a hammock.
This space serves as a cozy area for people to read and play with their children in the natural sunlight.
The exterior walls surrounding the indoor garden are sealed with airtight sheets and insulated to minimize air convection within the walls.
The nested rooms have well-defined thermal boundaries with strong airtightness and insulation. A 24-hour ventilation system is implemented to circulate air within the rooms, ensuring a comfortable environment.
When considering the comfort of a space, one approach is to enhance the volume by expanding the area, raising the ceiling, or increasing overall openness.
However, in regions with challenging climates, such as the San-in region, larger space volumes can compromise air conditioning efficiency, necessitating more substantial air conditioners and heaters.
In this house, the core living spaces are condensed into a smaller volume, with each area individually air-conditioned using smaller room air conditioners. The air is circulated within the living spaces.
The rooms are interwoven with a large-volume indoor garden so that the house is small during the hot and cold seasons, and the sashes are open and spacious during the more pleasant seasons. The design was inspired by the unique San-in region's climate.


















