
Jack Le Coq Restaurant
ARCHITECTS
XY Contemporary Interior Design Office
LEAD ARCHITECTS
René Tringali
GENERAL CONTRACTING
Groupe Manovra
DESIGN
Genevieve Ghaleb, Bella Astor
MANUFACTURERS
Benjamin Moore, Daltile, Eralux, Fórmica, Proma
PROJECT MANAGER
Katherine Martin
CREATIVE DIRECTION
Jack Gaspo (restaurant chain owner)
LOCATION
Laval, Canada
CATEGORY
Restaurant, Detail, Decoration & Ornament
For the Quebec Fast Food Chain “Jack Le Coq” (French for “Jack the Rooster”), the Interior Design Firm XY CONTEMPORARY took inspiration from the restaurant’s owner, Jack Gaspo.
Jack’s creative direction for the design team at XY Contemporary was to draw inspiration from typical 50s diners and infuse it with modern decor elements, not typically attributed to color.
An adult CANDYLAND experience for its diners created a fun family dynamic. Post Covid Pandemic, the owner was hopeful to bring joy to its diners after what he described as a “dark time.”
The design team wanted standout features amongst a strip mall filled with existing restaurants. “We wanted both the folks walking by the facade windows to enjoy the experience as much as the diners in the space. The experience was meant to be shared with everyone.”
The challenge for XY was breaking the feeling of a restaurant chain.
While maintaining design elements in each individual restaurant was important, the design team wanted to show individuality to each new location, balancing both creativity and the Jack Le Coq brand.
Custom light fixtures, playful volumes, and color furniture change from location to location to ensure the individuality of the space.
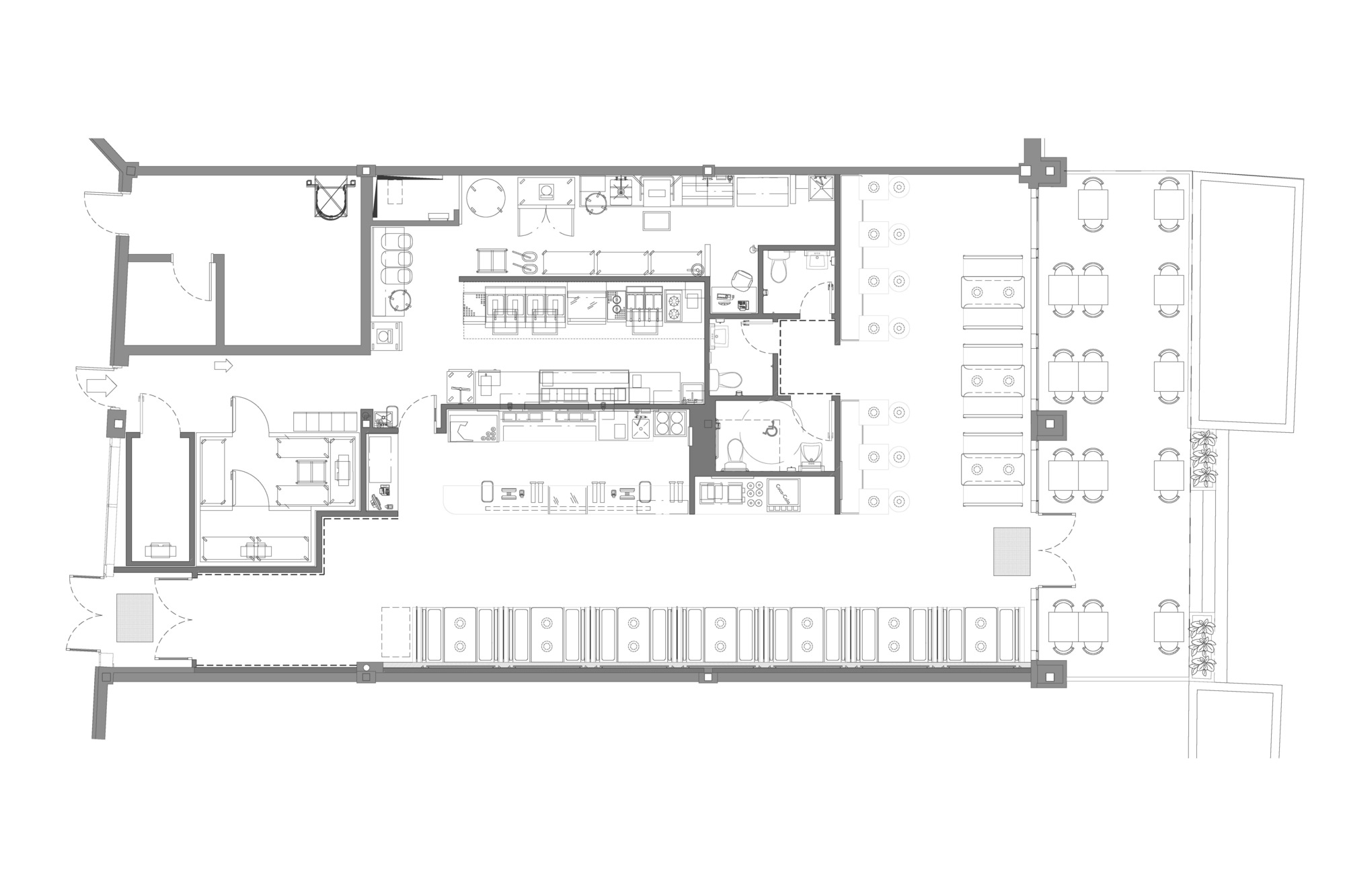
The floor plan was made easier for working staff to see awkward corners with the clever use of retro-looking custom mirrors; not a single piece in the space was left unthought of.
All corners were studied for both ergonomics and consumer enjoyment.
















