ARCHITECTS
FujiwaraMuro Architects
LEAD ARCHITECTS
Shintaro Fujiwara, Yoshio Muro
YEAR
2023
LOCATION
Japan
CATEGORY
Houses
FLEXIBLE BOARD is an important element in this project. The project switches materials for each zoning.
The flexible board was selected as the product that symbolizes the pathway and as a matte material that matches the wall surface with a texture similar to the concrete of the approach.
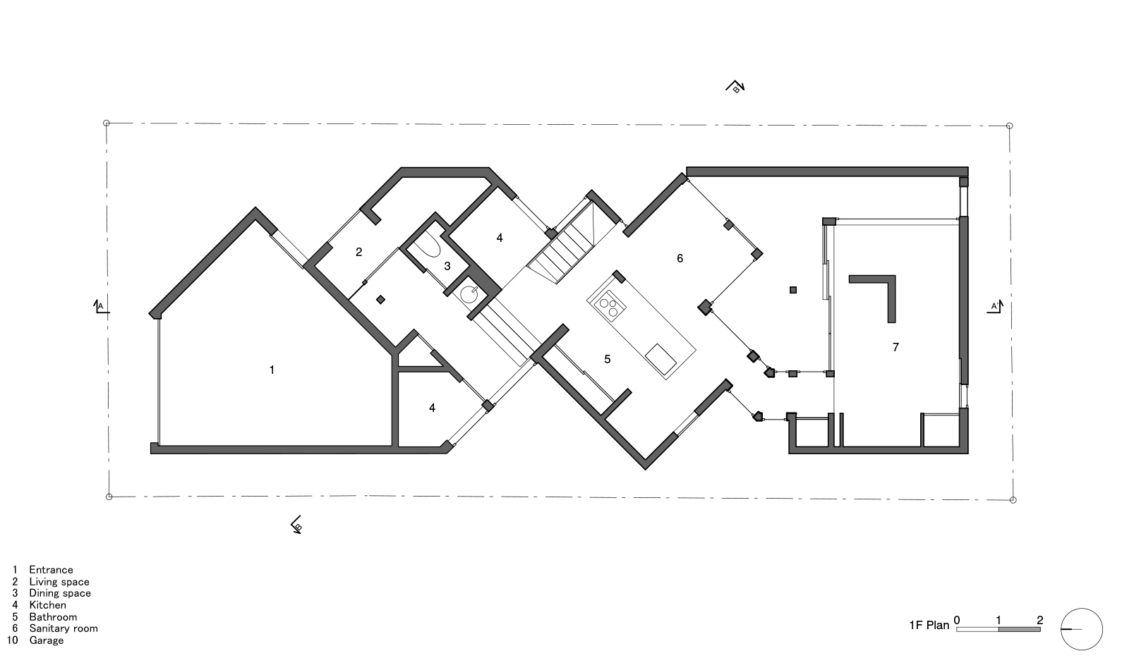
This house is for a family of four, a couple and their two children. The site is a long and narrow-shaped lot split from a sizable lot previously occupied by a large building.
Taking advantage of this site's unique characteristics, we arranged a new building in a zig-zag pattern to create a sense of distance within its confines and, as a result, spaces for respective family members to concentrate and relax.
The building is connected by an alley-like corridor from the approach to the rear, and individual spaces are arranged around it.
The first floor includes an entrance, garage, study, workspace, kitchen, dining room, and living room.
Places for the family members to spend time in various ways are located around the corridor, allowing them to move about as they see fit and maintain a reasonable distance from each other.
Spaces between each area and the site boundary were designed to let in light, wind, and views of the garden.
Like the first floor, the second floor has rooms on both sides of the corridor.
This house facilitates spontaneous communication between the family members while maintaining a comfortable distance between them, whether interacting with each other, enjoying time alone, or working as needed.



























