ARCHITECTS
MISA ARCHITECTS
STRUCTURE DESIGN
Intrinstruct Design, Manthan Radadia
MANUFACTURERS
Saint-gobain, Green Ply Plywood, Trivedi Corp. Pvt. Ltd., Cera
STRUCTURAL CONTRACTOR
Rajiv Builders, Rajiv Patel
CARPENTER
Hike Furniture, Pratap Suthar
CONCEPTUAL DESIGN AND CLIENT CO ORDINATION
Tarun Patel
DETAIL DESIGNING AND PROJECT COORDINATION
Kranti Desai
SITE CO ORDINTATION
Rahul Jariwala, Bharat Suthar
PRESEANTATION DRAWING
Krina Chauhan
PROGRAM / USE / BUILDING FUNCTION
Residence
PHOTOGRAPHS
Rockbrand Inc
AREA
14000 Ft²
YEAR
2023
LOCATION
Shela, India
CATEGORY
Houses
If we were to talk about a desirable, communal living space – one that is ingrained and thus, an integral part of our culture and growing up; where do we start?
Perhaps, we start with the stories that we have heard, the images and the thoughts we have from then – thoughts that built over time into inseparable, interconnected and congruous narratives and many more stories.
This way of life stimulated our senses and we experienced and explored expression – which resonated beyond just the visual sight or aesthetics. It appealed to us at many levels.
What if we were to manifest this expression through a built form? What would such a space entail? How can architecture instil a perpetual sense of celebration, utsav? How can we facilitate harmony between the built environment and its inhabitants?
How can the built form exploit light and wind and still minimize the harshness of weather. How can we recreate the same communal feeling? The answer lies where the question originates – the Indian traditions and vernacular forms.
Architecture, for us, is not just an assembly of functional built forms – it is a home, a dwelling that houses emotions and is built with gentleness and some degree of ingenuity. And that is also true for the client.
When we start with the basics – we simply ask the client and ourselves – why, what is the purpose behind building this house? And the answer to this question leads to stories, narratives, experiences, thoughts and imagery – from where it all started. This narrative is the journey of our design evolution.
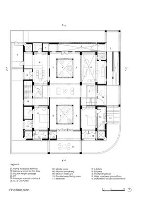
This house, as the name alludes, is created like a maze and borrows its core design philosophy from Wada – a traditional residential form from Maratha architecture. The built and unbuilt blocks of this house heighten curiosity and engagement.
The house appears from a somewhat hidden and inconspicuous entry; the stairs to the living if missed will bring you back to where you started! As you move about, the house gives a mixed feeling.
It comes across as a huge haveli with numerous courtyards, spacious rooms and a plethora of gathering spaces, balconies and sit-outs.
It also comes across as a warm, open, inviting and discerning home dotted with a story, a narrative, an emotion at every turn and in every corner. The space speaks for the users – a multi-generational family in coherence with the surroundings.
The intricate brickwork employs new bonds and interlocking geometries lowering the construction costs. The upper floor enjoys uninterrupted expanses and humungous rooms, thanks to the concrete vaults that drastically reduced vertical elements across the floor.
The vaults add to the aesthetic and volume dramatically and bring in the north light through the day. We have kept the playfulness quotient high with maze-like placement of rooms using level differences, connected organically by courtyards and verandas which form a natural flow between the inside and the outside.
These open spaces breathe life into the house and lend a unique sense of space and even time with the changing light and sounds of birds and visitors as they pass by; and then the house gradually blurs the boundaries between public and private as we move up the floors.
Your first visit here will start with an unapologetic abundance of surprise and piqued curiosity, and will end rewardingly with a satiated ‘joy of discovery’.
At a more metaphorical level, this house is a celebration and an interpretation of the “Indian” way of life. As architecture students, one of the first exercises we did was to move around and try and comprehend the way of life; the visible and invisible interactions between people and the built forms and the threshold between the natural and the built environment.
And this is what we have explored here. A house that responds to intuition, senses, memories, wandering and the inherent human quest to find answers.








































