One And A Half Co-Working Studio
ARCHITECTS
Trellik Design Studio
APPROVED BUILDING INSPECTOR
Quadrant Building Control
MANUFACTURERS
Ketley Brick, Refelt
LIGHTING CONSULTANT / ARTIST
Hortense Duthilleux
MAIN CONTRACTOR
Hmt Building Services Limited
PROJECT TEAM
Jean Dumas, Navjeet Ghuman
STRUCTURAL ENGINEER
Jero Works
JOINERY
Gustave Andre, Our Department
METAL WORKS
Harris Fabrications Ltd
PHOTOGRAPHS
Ed Dabney, Mariell Lind Hansen
AREA
124 M²
YEAR
2021
LOCATION
London ,united Kingdom
CATEGORY
Offices Interiors
London-based architecture practice Trellik Design Studio has transformed a former photography agent’s office into a co-working studio, maker’s workshop, and cafe for the creative community of East London.
Jean Dumas, founder of Trellik Design Studio purchased the building in 2019 to retrofit the space in the spirit of community engagement and cross-disciplinary collaboration.
Driven to deliver a home away from the home workplace, Trellik Design Studio has delivered a multi-purpose environment defined by natural materials elevated through the inclusion of color in unexpected places.
One and a Half is located in De Beauvoir, East London, and embodies the studio’s approach to playful architecture.
Looking to celebrate the raw character and charm of the earliest Victorian structure, Trellik Design Studio restored and exposed the original timber rafters, cleverly installing insulation and new roofing on the buildings’ exterior so as not to disrupt the interior character.
This intervention celebrates and opens the ceiling height significantly, with the new addition of skylights washing the previously dark and deep plan in natural light.
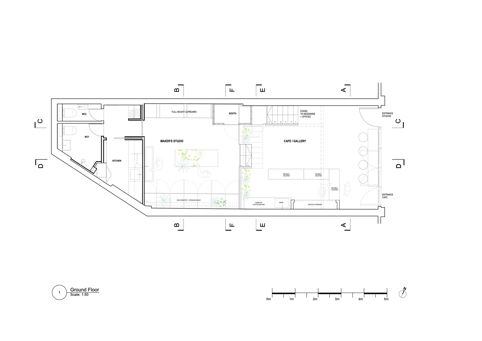
The building comprises three floors and a mezzanine level on the ground floor. Each floor offers great flexibility for different functions; work, meeting, creative studio, and utilities.
The entrance opens to a multi-functional cafe and events area which steps down into a sunken makers workshop, which is currently in use as a natural fabric dye atelier.
A communal kitchen and two gender-neutral toilets sit to the rear of the ground floor plan, next to a coat store. Original stairs up to the workspaces have been conserved and painted an uplifting cobalt blue, a color replicated on stairs between the first and second floors defining circulation paths.
A cornflower blue steel mezzanine hovers over the cafe, constructed with laser-cut perforated steel to allow light to permeate the lower levels.
The mezzanine operates as a breakout space, and library, and has also played host to exhibitions and pop-up shops supporting not-for-profit enterprises in the local area.
The private co-workspaces are located on the first and second floors behind secure doors, providing safe and separated zones between public and private areas of the building. Trellik Design Studio has defined an interior that contrasts recycled fabrics with pre-existing materials.
The architects have used the project as an opportunity to test the application of recycled materials such as acoustic PET felt panels made of waste plastic by ReFelt on the ceiling and walls.
The application of felt helps dampen the sound throughout the open-plan workspace, doubling as pin-up walls used by desk tenants.
Trelllik Design Studio’s commitment to material reuse is reflected in the retained original timber flooring, and in the repurposing of old floor joists to create characterful shelves on both upper floors.
Previously existing photographers' light boxes were also salvaged and modified with LED fittings for better energy performance, and illuminating the workspaces from their position on the ceilings.
Trellik Design Studio worked with a network of local suppliers to showcase a calm material and textural palette throughout the space. All joinery in the building is made by a local joiner in our Department, including desks in plywood, makers studio cupboard doors in Valchromat, and stained white tilly larch.
‘Bianco London Plane’ made and supplied by Foresso features a durable recycled kitchen worktop. ich hangs on the corner of the mezzanine wall.
To ensure more natural light is reflected into space, Trellik Design Studio collaborated with lighting designer Hortense Duthilleux to conceptualize a Mirror Halo Light fabricated by 3D Eye, wh
The studio is decorated with environmentally friendly and innovative furniture like algae pendant lights made of seaweed by Ty Syml, and glass lamp pendants made of crushed wine bottles by Potter's Thumb.
One and A Half Studios provides occupants with an energetic and collaborative working environment that offers a multitude of spaces across a stepped-level plan, creating different viewpoints and connections.
Generous desk spaces offer tenants a flexible environment, resulting in a studio home to photographers, animators, graphic designers, architects, and a public relations studio.
The communal environment and open plan layout lend themselves to tenants building strong relationships.
This space epitomizes Trellik Design Studio’s dynamic approach to doing, leaning into the challenges that come with design and architecture to create spaces that serve creative communities.
































