
KAMAKURA HOUSE
Roovice
MANUFACTURERS
Miele, COAT, Kohler, LIXIL , NEW LIGHT POTTERY, Nagoya Mosaic, Panasonic, Ragno, Rinnai, Runafaser, Sanei, Sangetsu, Sanwa, TOSHIBA, Tile Park"
LOCATION
Kamakura, Japan
CATEGORY
Houses, Renovation
Text description provided by the architects.
This private house was originally built back in 1991 and is situated in Ōmachi, a locality in the historical city of Kamakura in the Kanagawa Prefecture.
The building is placed on a hillside surrounded by nature, resulting in beautiful landscapes in every direction faced at.
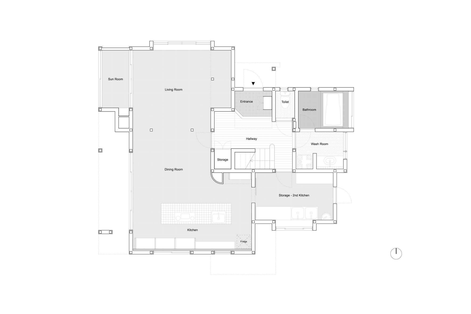
Before the modernization, the kitchen, living, and Japanese-style rooms were all separated in their own enclosed area. This fragmentation spoiled the efficiency of the surface and created a complicated circulation inside.
Hence, the renovation started by removing the dividing wall between the living and tatami rooms on the first floor. This shaped a spacious kitchen and living room that covers the whole north-south direction of the plan.
For the former one, an island has been installed near the south end of the plan, converting the previous kitchen into a hobby confectionery. Smoothing with a rounded plasterboard the corner in front of the counter improved the flow inside.
The new counter is covered with the typical 10x10cm white tile from the Japanese modern era, giving a touch of nostalgia amid the refurbished space.
The island is dimensioned to provide a secondary dining spot for the owners and it soon became the center for the family’s life.
Thanks to the new layout, the wide openings along the western wall provide plenty of natural light inside the plan. This allowed the two windows in the south end to be walled, in favor of a kitchen shelf.
Given the generous size of the house and the disproportionate budget available, the renovation prioritized those spaces needed the most, trying to blend old and new harmonically.
To achieve this, the age of the dwelling has to be visible, so the ceiling in the living room has been removed in favor of the exposed wooden structure.
Large-sized tiles were chosen for the pavement to match the texture and tone of the timber: those have a peculiar reflective surface similar to water, working in synergy with the surrounding.
The renovation brought the biggest changes to the previous first-floor Japanese-style room: besides its materiality which has been homogenized to the rest of the living, the storage became part of the space, widening the ambiance by a lot.
The sunroom (内縁 Uchien) in the inner engawa gained a bookshelf from the former storage. Now it’s used as a creative place of the house when closed behind the original Yukimi Shoji (雪見障子, lit. translated as “snow-watching shoji”).
A different approach characterized the upper-level renovation, where the limited budget combined with the existing well-preserved conditions required only some minimal changes.
The toilet received a wooden pavement reminiscent of the existing one in the hallway and the other bedrooms.The studio in the south-west corner replaced its floor too, but the owners entirely made it DIY with a woven texture. At last, the sliding doors in the Japanese-style bedroom were replaced with a darker tone to better match the materiality of the rest.















