MANUFACTURERS
DTile, Fermob, Intermex, Labra Sp. z o.o., Nestle Professional, Resintechs, Sto sp. z o.o.
LEAD ARCHITECTS
Paweł Tatara, Aleksandra Majdzik, Wojciech Nowak, Bogna Kawa-Nowak, Urszula Dachnij, Katarzyna Janczak, Anna Petryszyn
CONCEPTUAL DESIGN, EXECUTIVE PROJECT
Paweł Tatara, Aleksandra Majdzik, Wojciech Nowak, Bogna Kawa-Nowak, Urszula Dachnij, Katarzyna Janczak, Anna Petryszyn
LOCATION
Bydgoszcz, Poland
CATEGORY
Restaurants & Bars
Text description provided by the architects.
Is SOMETHING MORE a club inside a pastry shop or a pastry shop inside a club? It is a combination of two energies. Day and night, water and sun.
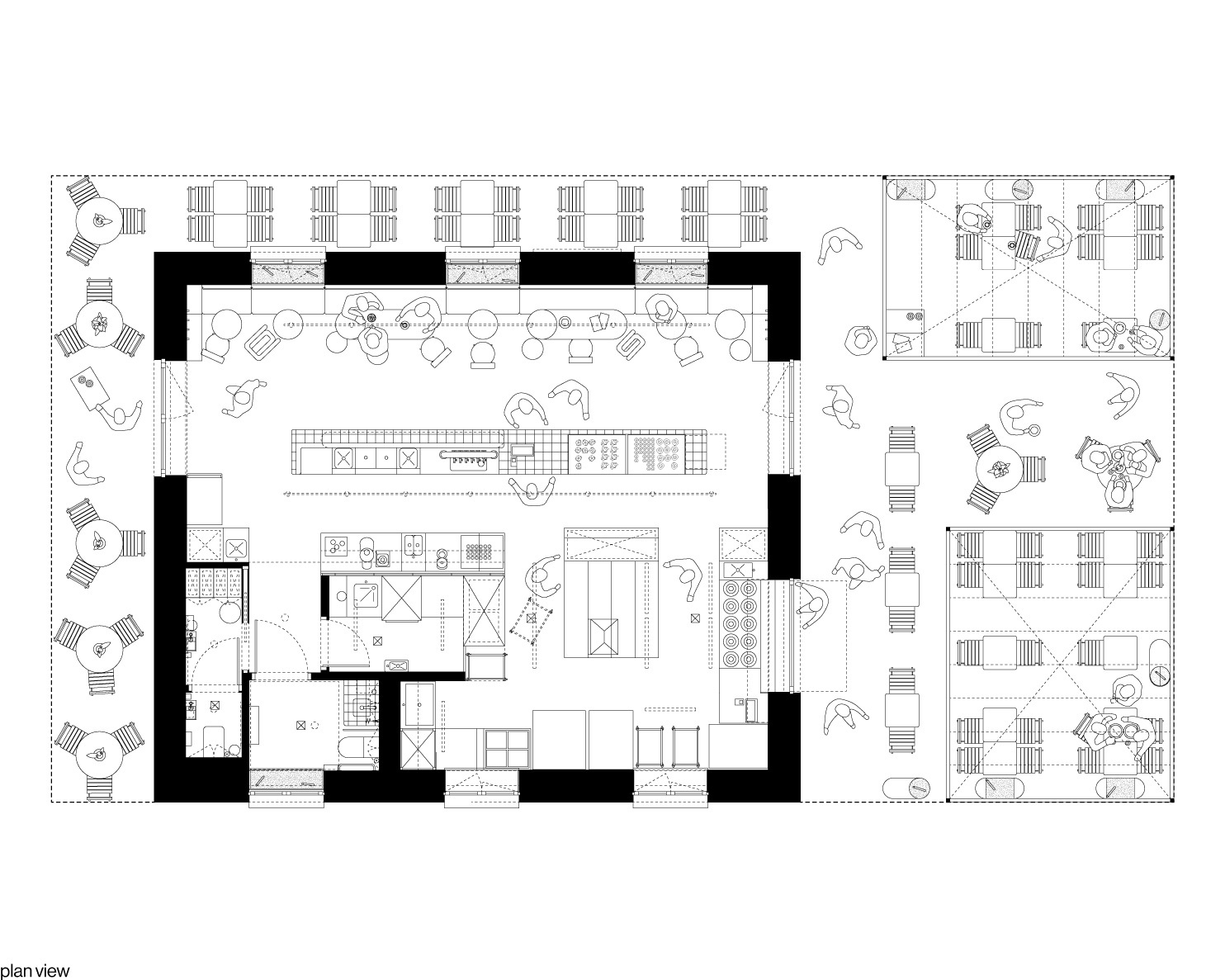
Pastry Club Woda is located in an old boilerhouse within the historic Rother’s Mill complex on Mill Island in Bydgoszcz. It is surrounded by water. It is a popular place that attracts people with cultural events. Mill Island is also closely related to the inland water transport of grain and the production of flour.
It was important to us to emphasise those aspects in the interior. For this reason, we decided to focus on colours. Cobalt-coloured floor, bar, and equipment make the water literally flow inside.
The streamlined cobalt bar divides the interior in half, this way it navigates the movement of the customers. Everyone flows freely inside to later flow out with the current.
The layout and the current do not allow for any sudden turn to the technological area; the direction of movement is as natural as the moving water.
Rother's Mills complex is composed of a grain and flour granary storehouse, as well as a middle section where the historic mill was located in the past. This is where the production of flour took place i.e., grinding, cooling, sifting, and packing, followed by the transport of the finished product to the flour granary. Different production processes took place on each floor by using modern machinery. The grinding required the use of millstones with characteristic grooves. Then machines called Hopper-boy were distributing the freshly milled flour in order to cool it.
Afterwards, the product went into steel bolters to be sifted into flour, middlings, and bran. Packing was the last process. When finished, the flour was transported to the flour granary.
Considering that production is such an integral aspect of this place, it was impossible not to highlight it in the project. The division between the space available for the customers and the technological part is immediately noticeable upon entering the establishment.
The open kitchen, equipment, and steel elements refer to the machines used in flour production. What's more, the distinct, vertical grooves in the structure of the plaster bring to mind associations with millstones and the raked traces of the milled grain distributed by the Hopper-boy machines.
Thanks to open technology, customers experience baked goods at every level of its production.
Those two complementary colours, cobalt and orange, predominate the interior. Cobalt is associated with water, rawness, the technology of flour production, and flow movement.
By day this establishment functions as a pastry shop. It is a bright, cool-coloured technical place that contrasts with the displayed pastries and warm orange.
Orange symbolises the setting sun, the beginning of the evening, fun, warmth and sweetness. In the evening, along with the sunset, this place changes its function and transforms into a club.
The prevailing warm lights cause the cold cobalt to change its colour, just like the water surface changes in the light of the setting sun.




















